Prodej domu 6+1 • 175 m² bez realitkyIm Wiesengrund 17, , Šlesvicko-Holštýnsko
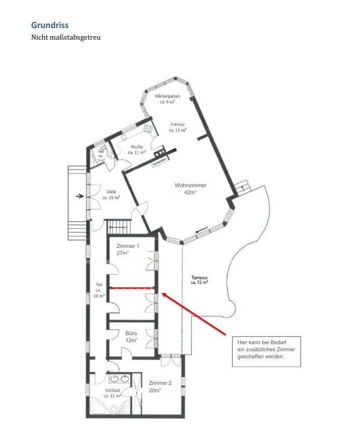
Im Wiesengrund 17, , Šlesvicko-HolštýnskoMHD 5 minut pěšky • GarážTento bungalow byl postaven v roce 1973 masivní zdivo a nachází se na přibližně 880 m² velkém pozemku orientovaném na jihozápad, v klidné vedlejší ulici, a svou velmi pečlivě udržovanou a průběžně modernizovanou kondicí zaujme na první pohled. Celková užitná plocha budovy činí 303 m², pro bydlení o velikosti cca 175 m² je k dispozici pět (s možností rozšíření na šest) prostorně uspořádaných pokojů, které jsou ideální pro rodinné bydlení.
Oddělením ložnice č. 1 můžete v oblasti spánkového bloku vytvořit další místnost. Z atraktivního vstupního prostoru, s přilehlým návštěvnickým WC, vstoupíte do obývacího pokoje s přístupem na částečně krytou jihozápadní terasu. Temné dřevěné trámy, vestavěná stropní světla typu downlight a cihlový kamín s elegantními zdobnými prvky dodávají této oblasti zvláštní šarm. Radiátory v oblasti jídelny a obývacího pokoje jsou vestavěné do podlahy. Propojením obývacího pokoje s jídelnou, ke které navazuje masivně postavená zimní zahrada, získají obě místnosti díky podlahovým oknům se svislými límci obzvlášť světlý charakter. Kvalitní vestavěná kuchyně SieMatic v stylu venkovského domu je vybavena veškerými technickými spotřebiči značek Siemens a Neff a disponuje dostatkem prostoru pro společné vaření s rodinou.
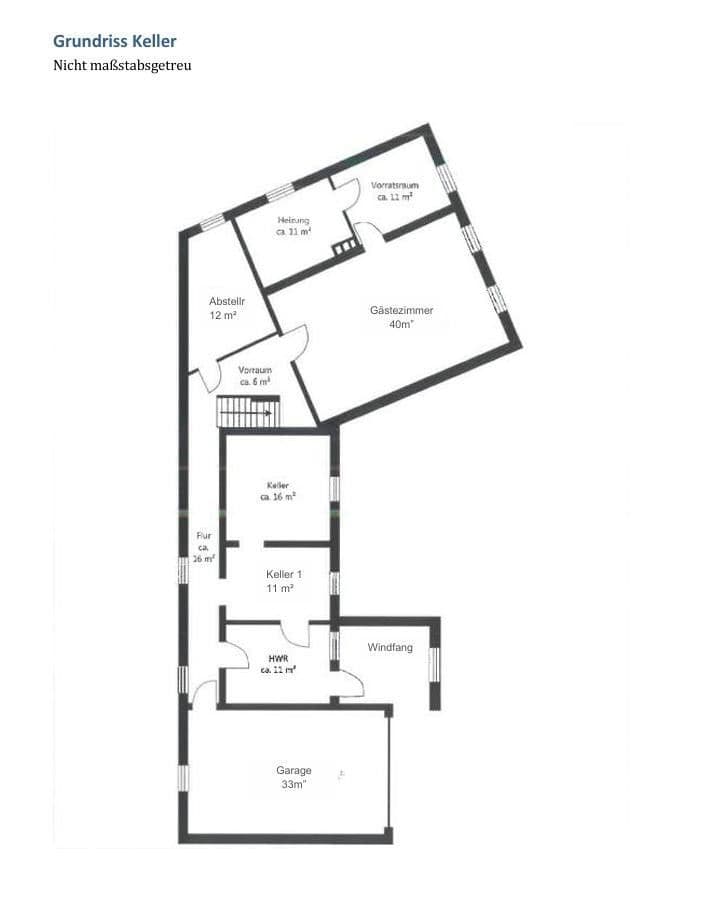
Spací část je oddělena samostatným koridorem, což zajišťuje příjemné soukromí. Všechny pokoje – jeden s vlastní koupelnou – mají přímý přístup k velké terase. Dostatek úložného prostoru najdete v dlažbeném sklepním patře; jedna z místností, vybavená laminátovou podlahou, může být pohodlně využita jako obytný prostor, kancelář či pokoj pro hosty. Celou nabídku doplňuje jeden prostorný garážový parkovací stůl.
Poslední modernizační práce proběhly v letech 2017–2021: čištění a nátěr střechy včetně nanesení ochranné vrstvy, měděný okap, zateplení půdního prostoru, malířské práce na omítce a podpěrách apod. Staré topení na olej bylo v roce 2017 vyměněno za novou topnou jednotku; od té doby je dům napájen přes místní teplovodní síť Energetické družstva Steinburg eG.
Informace o dodavateli energie naleznete na: energiegenossenschaft-steinburg.de
Mollhagen patří do obce Steinburg, která se skládá ze tří osad, přičemž Mollhagen tvoří její centrum. Dobře dostupná vesnice se nachází severovýchodně od Hamburku a jižně od Bad Oldesloe. Tato klidná vesnice je výjimečná především svou krásnou krajinou. Potoky, louky a pole, stejně jako „dlažebnice se letním chodníkem“ a „Dánský most“, lákají k procházkám a cyklistickým výletům.
Pro sportovní aktivity nabízí TSV Mollhagen širokou škálu možností, jako jsou badminton, tenis, volejbal, stolní tenis, judo, jóga, zumba a gymnastika. Kromě toho se v sousední obci nachází SV Eichede, který je obzvlášť známý svou úspěšnou fotbalovou sekcí a nabízí další sporty, jako je házená a stolní tenis. Pro milovníky jezdeckého sportu nabízí jezdecký klub Mollhagen e.V. pestrou nabídku aktivit.
Mollhagen má vynikající infrastrukturu pro rodiny: během několika minut chůze se dostanete k různým lékařským ordinacím, základní škole a mateřské škole (vzdálenost cca 800 m). Do konce roku 2026 by měl vzniknout nový supermarket (probíhají jednání se společností EDEKA). Střední školy jsou pohodlně dostupné školní dopravou. Mnoho jezer a lesů v okolí – mezi nimi Lütjensee, Beimoorwald a Trittauer Wald – láká k odpočinku a volnočasovým aktivitám.
Autobusová linka spojuje Mollhagen s Ahrensbúrgem a Bargteheide. Z Ahrensbúrgu se dostanete přibližně za 20 minut do centra Hamburku. Nedaleké dálnice A1 a A21 zajišťují velmi dobrou dostupnost. Hamburské letiště je dosažitelné za cca 45 minut.
Nemovitost se prodává včetně družstevních podílů a vybavení (kuchyně, nábytek, mrazák, lampy, televizor Bang & Olufsen, orientální koberce, šatní skříně, zahradní nábytek, markýza, zahradní nářadí).
Celkovou cenu lze rozdělit následovně:
• Kupní cena nemovitosti (předmět daně z nemovitostního majetku)
• Hodnota movitých věcí (nepodléhá dani z převodu nemovitostí)
Přesný rozpis nábytku, zahradního nářadí a jejich časové hodnoty lze při zájmu o koupi společně dohodnout a vyúčtovat samostatně. Hodnota družstevních podílů a vybavení činí cca 40 000 €, na kterou se nevztahuje daň z převodu nemovitostí.
Realitním makléřům se neobracejte. Podle § 7 UWG je nevyžádané kontaktování makléřů bez výslovného souhlasu příjemce zakázáno!
V okolí nemovitosti najdete
Stále hledáte to pravé?
Nastavte si hlídacího psa. Nabídky vybrané na míru dostanete souhrnně 1× denně e-mailem. S Premium profilem máte k ruce hlídačů rovnou 5 a když se něco objeví, informují vás obratem.






































