Pronájem bytu 4+1 • 68 m² bez realitkyStuttgart Bad Cannstatt Baden-Württemberg 70372
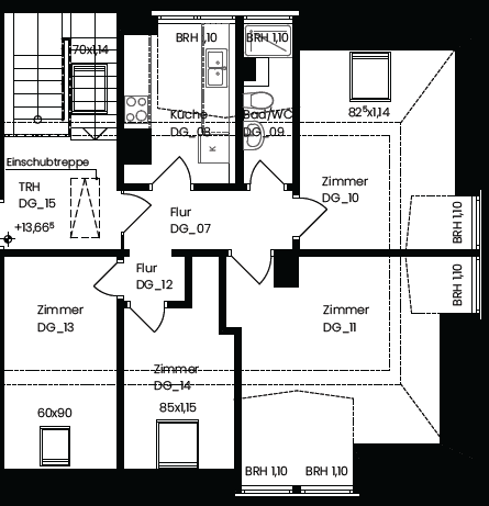
Stuttgart Bad Cannstatt Baden-Württemberg 70372MHD 3 minuty pěškyDiese helle 4-pokojový podkrovní byt o přibližné obytné ploše 68 m² se nachází v 5. patře udržovaného domu pro 16 domácností ve Stuttgart-Bad Cannstatt. Byt zaujme svým funkčním dispozicemi se čtyřmi samostatně přístupnými pokoji a je ideální zejména pro malou sdílenou domácnost nebo pro osoby, které ocení několik oddělených obytných či pracovních prostor.
Všechny obytné místnosti jsou vybavené dlažbou a působí díky četným okením přívětivě a světlostní. Šikmé stropy dodávají bytu příjemnou obytnou atmosféru.
Koupelna s dostatkem denního světla je vybavena sprchou, toaletou a umyvadlem; sanitární zařízení byla nedávno renovována. Navíc byl byt zrekonstruován a předán čerstvě natřený.
Samostatná kuchyně nabízí místo pro kuchyňskou linku i malý jídelní kout.
Vytápění je zajištěno prostřednictvím plynového podlažního vytápění.
Byt je k nastěhování ihned.
Byt se nachází v centrální části Stuttgart-Bad Cannstatt v ulici Martin-Luther-Straße – vyvinuté rezidenční a obchodní oblasti s velmi dobrou infrastrukturou.
Obchody pro každodenní potřeby, pekárny, kavárny, lékárny a ordinace lékařů jsou dosažitelné pěšky. Také četné restaurace a malé obchody dotvářejí živé okolí.
Dopravní spojení s veřejnou dopravou je vynikající: autobusové a metro zastávky a nádraží Bad Cannstatt se nachází jen pár minut chůze, odkud jsou zajištěna rychlá spojení do centra Stuttgartu i na letiště.
Možnosti odpočinku nabízí nedaleké zelené plochy a procházkové stezky podél řeky Neckar – ideální pro volný čas, sport nebo relaxaci po pracovním dni.
• 4-pokojový podkrovní byt o přibližné obytné ploše 68 m²
• Funkční dispozice se čtyřmi samostatně přístupnými pokoji
• Dlažební podlaha ve všech obytných místnostech
• Koupelna s dostatkem denního světla se sprchou, toaletou a umyvadlem (sanitární vybavení nedávno renovováno)
• Samostatná kuchyně s oknem a dlažebním obložením
• Připojení pro pračku v kuchyni
• Volitelně: vybavená kuchyňská linka za měsíční příplatek 50 €
• Vlastní sklepní místnost v suterénu
• Bez balkonu, bez parkovacího místa
Byt je ideální pro maximálně 1–3 osoby. Domácí mazlíčci nejsou povoleni. Byt je určen pro nekuřáky. Před podpisem nájemní smlouvy bude vyžadováno potvrzení o soběstačnosti nájemce, doklady o příjmu a výpis ze Schufa.
V okolí nemovitosti najdete
Stále hledáte to pravé?
Nastavte si hlídacího psa. Nabídky vybrané na míru dostanete souhrnně 1× denně e-mailem. S Premium profilem máte k ruce hlídačů rovnou 5 a když se něco objeví, informují vás obratem.













