Prodej bytu 2+1 • 54 m² bez realitkyBrandenburg an der Havel Brandenburg an der Havel Brandenburg 14770
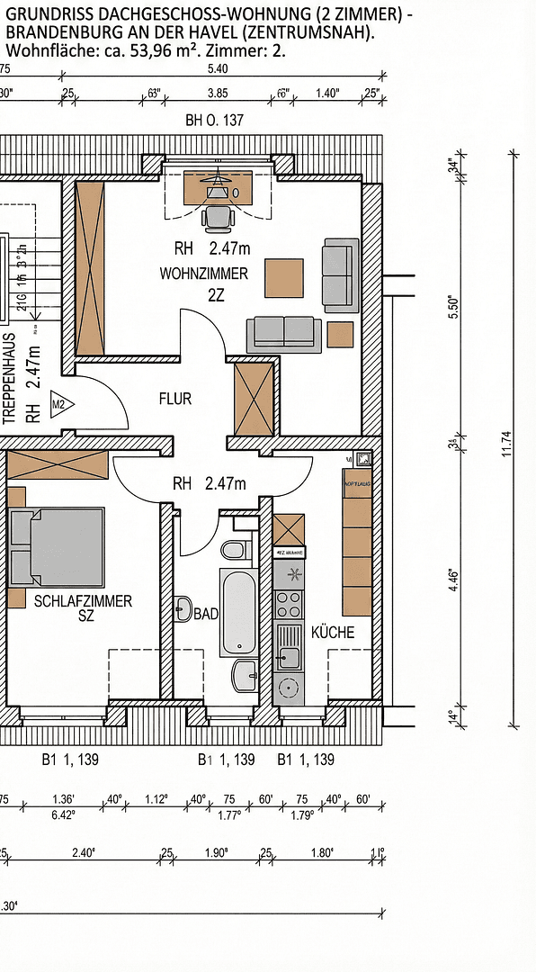
Na prodej je atraktivní 2-pokojový byt v klidné boční ulici v Brandenburg an der Havel. Byt se nachází ve 2. patře (podkroví) upraveného rodinného domu. Na cca 54 m² nabízí tato jednotka ideální dispozici pro jednotlivce nebo páry. Nemovitost je krátkodobě k dispozici a na základě dohody ji lze převzít i plně zařízenou.
Centrální poloha v historickém městě Havel
Nemovitosti se nacházejí v jedné z nejatraktivnějších obytných lokalit Brandenburg an der Havel, města známého svou historickou architekturou a přímou dostupností k rozsáhlé vodní krajině řeky Havel.
Městská infrastruktura a krátké vzdálenosti
Blízkost centra: Byty se nacházejí v samotném srdci nebo na okraji historických městských jader (staré město/nové město), což zaručuje výbornou dostupnost obchodů denní potřeby.
Dobrá dopravní dostupnost: Lokality se vyznačují skvělou dostupností městské veřejné dopravy, což je činí obzvláště atraktivními pro dojíždějící.
Historické městské prostředí: Okolí je charakterizováno půvabnými uličkami s částečně zrekonstruovanými historickými budovami, které odrážejí typický charakter města.
Volný čas a relaxace
Blízkost vody: Během několika minut chůze jsou dostupná různá ramena řeky Havel a promenády podél břehu, které nabízejí vysokou hodnotu pro volnočasové aktivity.
Zelené okolí: Parky a zelené plochy se nacházejí v bezprostřední blízkosti a poskytují ideální únik z městského shonu.
Atraktivita pro nájemce a vlastníky
Díky kombinaci centrální polohy a blízkosti k kulturním a vzdělávacím zařízením v Brandenburg an der Havel jsou tyto jednotky velmi atraktivní jak pro vlastní bydlení, tak i pro investory, kteří hledají příležitosti k pronájmu.
Chcete, abych tuto popis lokality specifikoval ještě konkrétněji pro jeden z jednotlivých bytů (např. byt v podkroví)?
Prostorný, světlý obývací pokoj
Oddělená ložnice, ideální pro individuální využití
Kuchyň s nenáročnou dlažbou a praktickou vestavěnou kuchyňskou linkou
Stylová koupelna s vanou, ručníkovým topením a připojením pro pračku
Celoplošně kvalitní laminátová podlaha pro moderní obytné prostředí
Tepelně izolovaná dřevěná okna pro příjemnou atmosféru bydlení
KLÍČOVÉ ÚDAJE:
Místo: Brandenburg an der Havel (blízkost centra)
Pokoje: 2
Bytová plocha: cca 53,96 m²
Patro: Podkroví (2. patro)
Dostupnost: Krátkodobě / Ihned k nastěhování
Kupní cena: 139 000 EUR
Provize: Soukromý prodej – žádné makléřské poplatky
KONTAKT:
V případě zájmu nám prosím zašlete zprávu s vašimi kontaktními údaji.
V okolí nemovitosti najdete
Stále hledáte to pravé?
Nastavte si hlídacího psa. Nabídky vybrané na míru dostanete souhrnně 1× denně e-mailem. S Premium profilem máte k ruce hlídačů rovnou 5 a když se něco objeví, informují vás obratem.


