
Prodej domu • 165 m² bez realitky, Bádensko-Württembersko
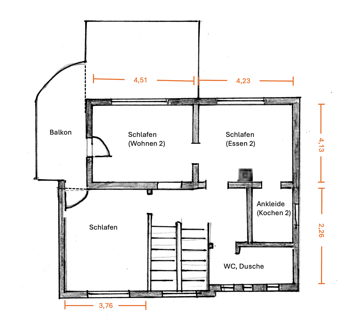
, Bádensko-WürttemberskoMHD 1 minuta pěšky • Parkování • GarážTento udržovaný a prostorný rodinný dům nabízí spoustu prostoru pro bydlení a život. Na dvou plnohodnotných podlažích a částečně dokončeném půdním podlaží vás čeká funkční dispozice a řada možností využití. Tři koupelny s toaletami, dvě sprchy a jedna vana zajišťují komfort bydlení. Pěkně upravená zeleninová zahrada, trávník, zastřešená terasa, kůlna, letní kuchyně a dílna vás zve k relaxaci i kutění. Dlažbený sklep s denním světlem, kůlna, prádelna a velká garáž navíc rozšiřují dostupný prostor. Půdní podlaží je dále rozšiřitelné – ideální pro další obytné nebo pracovní prostory. Krbový kamna, terazzo schody, parketové, korkové a dlažební podlahy a vestavěná kuchyň dodávají domu výjimečnou atmosféru.
Dům se nachází v klidné, slunné lokalitě ve čtvrti Eschelbach města Sinsheim. Samostatně stojící nemovitost je umístěna v příjemné, vyvinuté obytné čtvrti s udržovanými rodinnými domy a přátelským sousedstvím. Zde si užijete klid a soukromí, aniž byste se museli vzdát dobrého spojení se Sinsheim a okolními místy. Obchody, mateřská škola a základní škola jsou snadno dostupné, stejně jako přípojky na dálnici směřující k Heidelbergu a Heilbronnu.
Fotovoltaická elektrárna
Fotovoltaická elektrárna
Parametry nemovitosti
| Stáří | Nad 50 let |
|---|---|
| Stav | Dobrý |
| PENB | G - Mimořádně nehospodárná |
| Plocha pozemku | 650 m² |
| Cena za jednotku | 2 667 € / m2 |
| Dostupné od | 9. 3. 2026 |
|---|---|
| Číslo inzerátu | 993316 |
| Užitná plocha | 165 m² |
| Celkem podlaží | 2 |
Co tato nemovitost nabízí?
| Balkón | |
| Garáž | |
| Parkování | |
| Terasa |
| Sklep | |
| MHD 1 minuta pěšky |
V okolí nemovitosti najdete
Stále hledáte to pravé?
Nastavte si hlídacího psa. Nabídky vybrané na míru dostanete souhrnně 1× denně e-mailem. S Premium profilem máte k ruce hlídačů rovnou 5 a když se něco objeví, informují vás obratem.
























