Prodej domu 6+1 • 120 m² bez realitkyHauptstr. 80, , Severní Porýní-Vestfálsko
Atraktivní rodinný dům pro dvě rodiny
Adresa: 41372 Niederkrüchten Elmpt, Hauptstr. 80 – na prodej od soukromé osoby.
V současnosti pronajímaný dům je vhodný pro vlastní bydlení jako rodinný dům nebo jako investice – dům pro dvě rodiny s okamžitými příjmy.
Přes společný vstup do domu se dostanete:
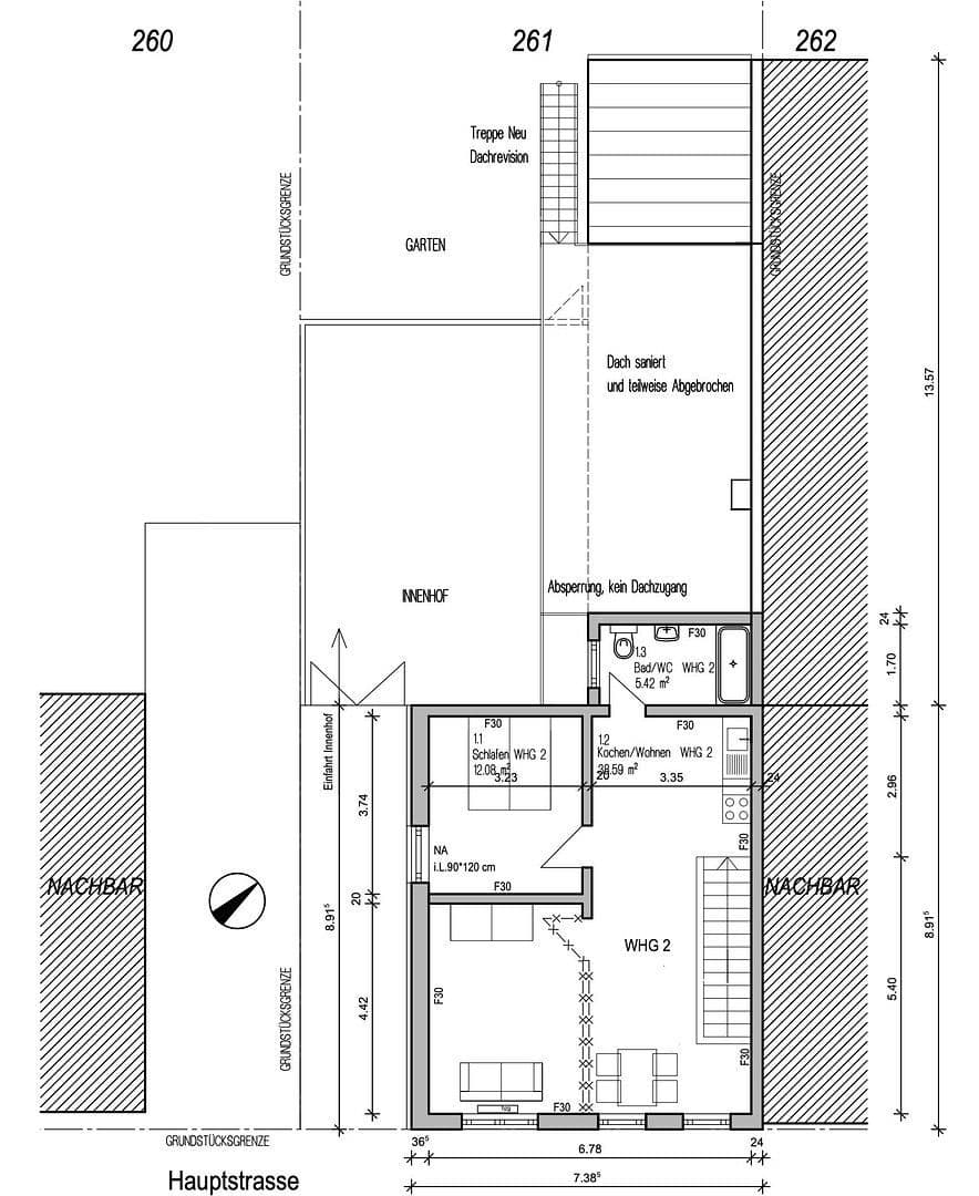
1. Do moderní, světlé a kvalitně zrekonstruované bytu v přízemí s terasou, zrekonstruovaného v roce 2014, o rozloze cca 60 m².
- Ložnice s trojitým zasklením a elektrickými rolety
- Obývací pokoj s elektrickými rolety a připojením pro krb, 2× satelitní přípojkou
- Velká kuchyňsko-jídelna (s LED stropními lampami) s východem na terasu vnitřního nádvoří o cca 47 m²
- Terasa vnitřního nádvoří se samostatnou branou
- Samostatná prádelna s vchodem z terasy, vybavená plošinou pro pračku a sušičku, umyvadlem, pisoárem a WC
- Malá skladovací místnost vedle kuchyně s klenutým sklepem určeným pro uskladnění vína
- Bílá koupelna s bezpodlahovou sprchou, WC, umyvadlem se zrcadlem a ručníkovým radiátorem (s LED stropními lampami)
- Všechny místnosti jsou nově obklady, topení a ohřev vody jsou zajištěny novou plynovou kondenzací, všechny dveře, stropy i stěny jsou bílé.
2. Do bytu v horním patře o přibližné obytné ploše 63 m², kompletně zrekonstruovaného v roce 2014, vše v bílé, s plastovými okny s dvojitým i trojitým zasklením.
- Velká slunná střešní terasa o rozloze cca 45 m² se schodištěm vedoucím do zahrady
- Ložnice o velikosti 16 m²
- Obývací-jídelna s otevřenou vestavěnou kuchyní, vybavená LED stropními svítidly
- Výjimečná atmosféra bydlení s krbovým kamenem v obývacím pokoji
- Světlá, moderní bílá koupelna se sprchou, WC, ručníkovým radiátorem a prostorem pro pračku, s designovým umyvadlem s dolní skříňkou, zrcadlem a osvětlením, a opět LED stropním osvětlením
- Podkroví bylo v roce 2025 izolováno a slouží jako sklad; dále je možnost vybudovat zhruba 40 m² rozšiřitelný prostor
- Slunná zahrada o rozloze cca 300 m² s prostorem pro společenské aktivity, sklad a kůlnu
Užitná plocha domu: 151 m²
Energetická fasádní izolace a izolace střešního podkroví proběhla v roce 2025.
Rok výstavby domu: 1966, kompletní rekonstrukce v roce 2010.
Na podkroví se nachází centrální plynové topení.
Energetický průkaz: spotřební průkaz z 7/2025, s hodnotou 84,9 kWh/m² za rok.
Roční údržba topení je zajištěna.
Dům je vybaven samostatnými elektroměry, vodoměry a měřiči tepelné energie.
Plocha pozemku: 470 m²
Čistý nájem v přízemí: €838;
Čistý nájem v horním patře: €720;
Roční celkový příjem: €18 696 – což představuje současný výnos cca 5,8 %.
Pevná cena: €324 000
Rádi obdržíme poptávky s uvedením jména, adresy, telefonního čísla a e-mailové adresy.
Prohlídka se uskuteční až po předložení dokladu o bonitě (doklad o kapitálu nebo potvrzení o financování)!
Dopravní dostupnost je komfortní a umožňuje rychlý přístup do okolních měst.
Po dálnici A52 se krátce dostanete do Mönchengladbachu, Düsseldorfu nebo do Roermondu v Nizozemsku.
Dvě expresní autobusové linky do Mönchengladbachu nebo do okresního centra Viersen vás dovezou na místo během půl hodiny.
Kromě toho je k dispozici také dobré napojení na letiště Düsseldorf a Weeze.
V cca 500 metrech se nachází mateřská škola, další pak v přibližně 1,5 km.
Základní škola se nachází v cca 2,1 km.
Střední školy jsou umístěny v Brüggen (3,9 km), Niederkrüchten (6,9 km) a Waldniel (12 km).
Velké nákupní centrum se nachází v bezprostřední blízkosti (cca 3 km) – například Rossmann, Aldi, Edeka, Lidl, obchod s nápoji, pekárna a další.
Ve městě samotném a jeho okolí (zmíněná města) je k dispozici dostatek restaurací.
Dále je k dispozici kalendář kulturních akcí a přírodní park Schwalm-Nette.
Prosíme: žádní makléři.
Bez dokladu o bonitě není prohlídka možná!!!
Nepotřebujeme krádeže času ani turistické prohlídky.
V okolí nemovitosti najdete
Stále hledáte to pravé?
Nastavte si hlídacího psa. Nabídky vybrané na míru dostanete souhrnně 1× denně e-mailem. S Premium profilem máte k ruce hlídačů rovnou 5 a když se něco objeví, informují vás obratem.













































