Prodej domu 3+1 • 50 m² bez realitky, Bavorsko
Předběžné oznámení:
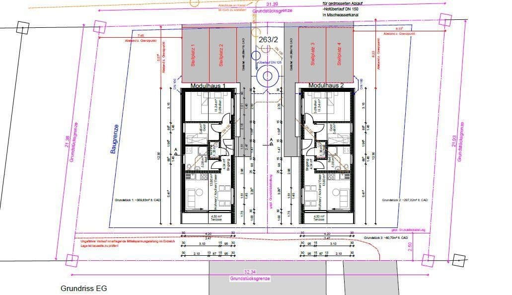
50 m² designové prefabrikované domu s přibližně 300 m² pozemku u jezera v Brucku v Horní Pálzsku.
Jsou plánovány 2 prefabrikované domy. Ty jsou projektovány na dokončení přibližně v červnu / červenci 2026.
Pozemky lze zakoupit i bez prefabrikovaných domů. Pokud již vlastníte pozemek, můžete si samozřejmě pořidit naše prefabrikované domy i bez pozemku.
Vizualizace prefabrikovaných domů jsou pouze příklady. Prefabrikované domy mohou být postaveny podle vašich představ a na přání mohou být dodány i s vnitřním vybavením.
Kupní cena 220 000 eur se vztahuje na nezávaznou orientační hodnotu prefabrikovaného domu dle EH 55 (podle GEG) se standardním vybavením, standardními okny a podlahovým vytápěním, bez vnitřního vybavení a s pozemkem o velikosti přibližně 300 m² ve výše popsané lokalitě. Prefabrikované domy lze přizpůsobit podle přání zákazníka a mohou být také dodány dle EH 40. Pro další podrobnosti a konkrétní nabídky nás neváhejte kontaktovat.
Toto je nabídka od MeinDesignhaus powered by DEGOS Immobilien Projektentwicklung.
DEGOS Immobilien Projektentwicklung je pobočkou DEGOS Dental GmbH, Bayernstr. 10a, 93128 Regenstauf.
Pozemek u jezera v Brucku v Horní Pálzsku
Vybavení může být přizpůsobeno podle přání zákazníka.
V okolí nemovitosti najdete
Stále hledáte to pravé?
Nastavte si hlídacího psa. Nabídky vybrané na míru dostanete souhrnně 1× denně e-mailem. S Premium profilem máte k ruce hlídačů rovnou 5 a když se něco objeví, informují vás obratem.

