
Prodej bytu 3+1 • 80 m² bez realitkyWestendstrasse 266a München Laim Bayern 80686
Byt se nachází v horním přízemí (Hochparterre) a je bezbariérově přístupný výtahem. Bytový komplex, postavený v roce 1981, zahrnuje celkem 89 bytových jednotek. Bytu je přidělen přízemní, dobře přístupný parkovací stání v podzemní garáži. V současné době je byt pronajatý a bude volný od 01.07.2026.
Westendstrasse 266, čtvrť Westend (Laim), nedaleko WESTPARK
Ulice Westendstraße jednou protíná čtvrť Westend v Mnichově. Ulice začíná na sever od Theresienwiese a končí po přejetí vjezdů na dálnici A96 u školního a sportovního zařízení na západním konci Westparku. Oblíbený Westpark je parková oblast v mnichovské části Sendling-Westpark. Byl zřízen pro Mezinárodní zahradní výstavu (IGA) v roce 1983 a od té doby je volně přístupný. Po rozšíření o přibližně 2,4 kilometru ve směru východ-západ zabírá Westpark 69 hektarů. Mezi možnosti volnočasových aktivit v parku u jezera patří dětská hřiště a sportoviště, grilovací zóny a pěší či cyklistické stezky. Oblíbeným místem konání akcí je Seebühne, půlkruhové amfiteátrum, otevřený prostor pro pořádání festivalů a oblíbené venkovní kino Mond und Sterne. Na západní straně se nachází pivní zahrada a hospoda am Rosengarten, na východní straně pivní zahrada Hopfengarten a alternativní kavárna Gans am Wasser. Tramvaj linky 18 se zastávkou Säulingstraße je přímo před domem. Centrum města a mnichovský Oktoberfest jsou během několika minut pohodlně dosažitelné. Stanice metra Westendstraße je vzdálena přibližně 1 km.
Dopravní spojení: Na stanici metra Westendstraße jezdí linky U4 a U5 a také tramvajová linka 18. Pro řidiče jsou významné dopravní tahy: dálnice A96 (Lindauer Autobahn) – spojka München-Laim se nachází jen asi 600 m jižně od čísla domu 266. Vjezd na silnici B2 / Mittleren Ring (Garmischer Straße) je vzdálen přibližně 1,5 km. Přes tento jihozápadní kvadrant je přímé spojení na dálnici A95 (směr Starnberg a Garmisch-Partenkirchen) a A99 (mnichovský okruh dálnic). Oblast pěti jezer se svým vysokým volnočasovým potenciálem je proto dosažitelná během 20–30 minut jízdy autem. Rušná nákupní ulice Fürstenrieder Straße s čtvrtí Laim je vzdálena asi 800 m.
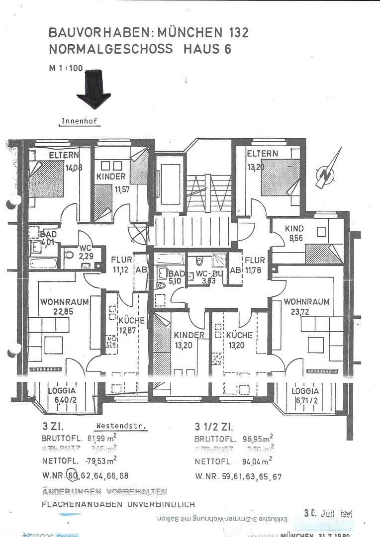
Obývací pokoj 22,85 m², kuchyň 12,87 m², ložnice 14,08 m², dětský pokoj 11,57 m², chodba/vestibul 11,12 m², lodžie 6,40/2 m².
V okolí nemovitosti najdete
Stále hledáte to pravé?
Nastavte si hlídacího psa. Nabídky vybrané na míru dostanete souhrnně 1× denně e-mailem. S Premium profilem máte k ruce hlídačů rovnou 5 a když se něco objeví, informují vás obratem.



























