
Prodej bytu 3+1 • 86 m² bez realitkyCarl-Appel-Straße 7 Wien 10. Bezirk Wien 1100
Diese hochwertige, lichtdurchflutete Eigentumswohnung im renommierten Delugan-Meissl-Tower am Wienerberg vereint modernes Wohnen, spektakuläre Fernblicke und eine der vielversprechendsten Zukunftslagen Wiens. In der 12. Etage gelegen, genießen Sie ein beeindruckendes Panorama über die Stadt sowie Sonnenauf- und -untergänge aus drei Himmelsrichtungen.
Tento kvalitní, světlem zalitý byt ve vlastnictví se nachází v renomovaném Delugan-Meissl-Tower na Wienerbergu a kombinuje moderní bydlení, ohromující výhledy a jednu z nejperspektivnějších lokalit pro budoucnost ve Vídni. Nacházející se v 12. patře si můžete užívat impozantní panoráma města a východy i západy slunce ze tří stran nebe.
Ein besonderer Zukunftsvorteil ist die geplante U2-Station direkt gegenüber dem Gebäude (Fertigstellung geplant ca. 2035). Die U2 wird künftig eine direkte Verbindung zu zentralen Wiener Hotspots wie Mariahilfer Straße, Rathaus, MuseumsQuartier, Prater, Messe Wien und Seestadt Aspern bieten. Diese massive Infrastrukturaufwertung macht den Standort besonders attraktiv und bietet ausgezeichnetes langfristiges Wertsteigerungspotenzial.
Velkou výhodou do budoucna je plánovaná stanice U2, která bude umístěna přímo naproti budově (dokončení je plánováno přibližně na rok 2035). U2 zajistí v budoucnu přímé spojení s centrálními vídeňskými atrakcemi, jako jsou Mariahilfer Straße, radnice, MuseumsQuartier, Prater, veletržní areál Messe Wien a Seestadt Aspern. Toto výrazné zlepšení infrastruktury činí lokaci obzvlášť atraktivní a nabízí vynikající dlouhodobý potenciál růstu hodnoty.
Der Verkauf erfolgt provisionsfrei direkt vom Eigentümer - keine Makleranfragen erwünscht!
Prodej probíhá bez provize přímo od majitele – makléřské dotazy nejsou vítány!
Lage & Infrastruktur – urban, grün und zukunftssicher
Die Wienerberg City zählt zu den dynamischsten Wohnlagen Wiens und verbindet perfekte Infrastruktur mit hohem Freizeitwert:
Lokalita & infrastruktura – městská, zelená a připravená na budoucnost
Wienerberg City patří mezi nejdynamičtější obytné oblasti ve Vídni a spojuje bezchybnou infrastrukturu s vysokou atraktivitou pro volnočasové aktivity:
• Naherholungsgebiet Wienerberg, Golfplatz und Grünflächen direkt vor der Haustür
• Rekreační oblast Wienerberg, golfové hřiště a zelené plochy doslova za dveřmi
• Einkaufsmöglichkeiten, Ärzte, Schulen und Gastronomie fußläufig erreichbar
• Obchody, lékaři, školy a restaurace jsou dosažitelné pěšky
• Sehr gute Verkehrsanbindung (Bus, U1, U6, Individualverkehr)
• Výborné dopravní spojení (autobus, linky U1, U6, individuální doprava)
• Zukünftige U2-Station direkt gegenüber dem Gebäude als wesentlicher Werttreiber
• Budoucí stanice U2 přímo naproti budově, která bude klíčovým faktorem zvyšujícím hodnotu
Diese Kombination macht die Wohnung sowohl für Eigennutzer als auch für Anleger besonders attraktiv.
Tato kombinace činí byt mimořádně atraktivním jak pro osobní bydlení, tak pro investory.
In der Nähe:
Umgebungskarte siehe Bildergalerie
V blízkosti:
Pro detailní mapu okolí viz galerie fotografií
50m
• Geplante U2 Station - ab 2035 (C)
• 65A - Bus (C)
• 7B - Bus (C)
50 m
• Plánovaná stanice U2 - od roku 2035 (C)
• Linka 65A – autobus (C)
• Linka 7B – autobus (C)
100m
• Gesundheitszentrum ÖGK (B)
• 7A - Bus (B)
• 15A - Bus (B)
• 63A - Bus (B)
• Loving Hut - Restaurant (E)
• Friseur (E)
• Zahnarzt (F)
• Kindergarten (F)
• Greichisches Restaurant (G)
• Cineplexx - Kino (H)
• Burger King - Restaurant (H)
• Speed Fit - Fitnessstudio (H)
• Som Kitchen - Restaurant (H)
• Vienna Twin Towers - MyHive (H)
100 m
• Zdravotní centrum ÖGK (B)
• Linka 7A – autobus (B)
• Linka 15A – autobus (B)
• Linka 63A – autobus (B)
• Loving Hut – restaurace (E)
• Kadeřnictví (E)
• Zubař (F)
• Mateřská škola (F)
• Řecká restaurace (G)
• Cineplexx – kino (H)
• Burger King – restaurace (H)
• Speed Fit – fitness centrum (H)
• Som Kitchen – restaurace (H)
• Vienna Twin Towers – MyHive (H)
200m
• Lidl - Supermarkt (A)
• Volksschule (D)
• Billa - Supermarkt (I)
• Bipa - Drogeriemarkt (I)
• The Roast - Restaurant (I)
• Anker - Bäckerei (I)
• Post (I)
• Bank Austria (I)
• Twenty Two - Restaurant (I)
• Holiday Inn - Hotel (I)
• NKD (I)
• Friseur (I)
• Trafik (I)
• Apotheke (J)
• Allgemeinmediziner (K)
200 m
• Lidl – supermarket (A)
• Základní škola (D)
• Billa – supermarket (I)
• Bipa – drogerie (I)
• The Roast – restaurace (I)
• Anker – pekárna (I)
• Pošta (I)
• Bank Austria (I)
• Twenty Two – restaurace (I)
• Holiday Inn – hotel (I)
• NKD (I)
• Kadeřnictví (I)
• Trafik (I)
• Lékárna (J)
• Praktický lékař (K)
500m
• Billa Plus - Supermarkt (L)
• Erste Bank SB - (L)
• Hofer - Supermarkt (L)
• Ebi Sushi - Restaurant (L)
• Mc Fit - Fitnessstudio (L)
• Golfplatz (M)
• BP - Tankstelle mit Shop (N)
• Mc Donalds - Restaurant (O)
• Müller Bräu - Restaurant (P)
• Naherholungsgebiet Wienerberg (Q)
500 m
• Billa Plus – supermarket (L)
• Erste Bank SB – (L)
• Hofer – supermarket (L)
• Ebi Sushi – restaurace (L)
• Mc Fit – fitness centrum (L)
• Golfové hřiště (M)
• BP – čerpací stanice s obchodem (N)
• McDonald’s – restaurace (O)
• Müller Bräu – restaurace (P)
• Rekreační oblast Wienerberg (Q)
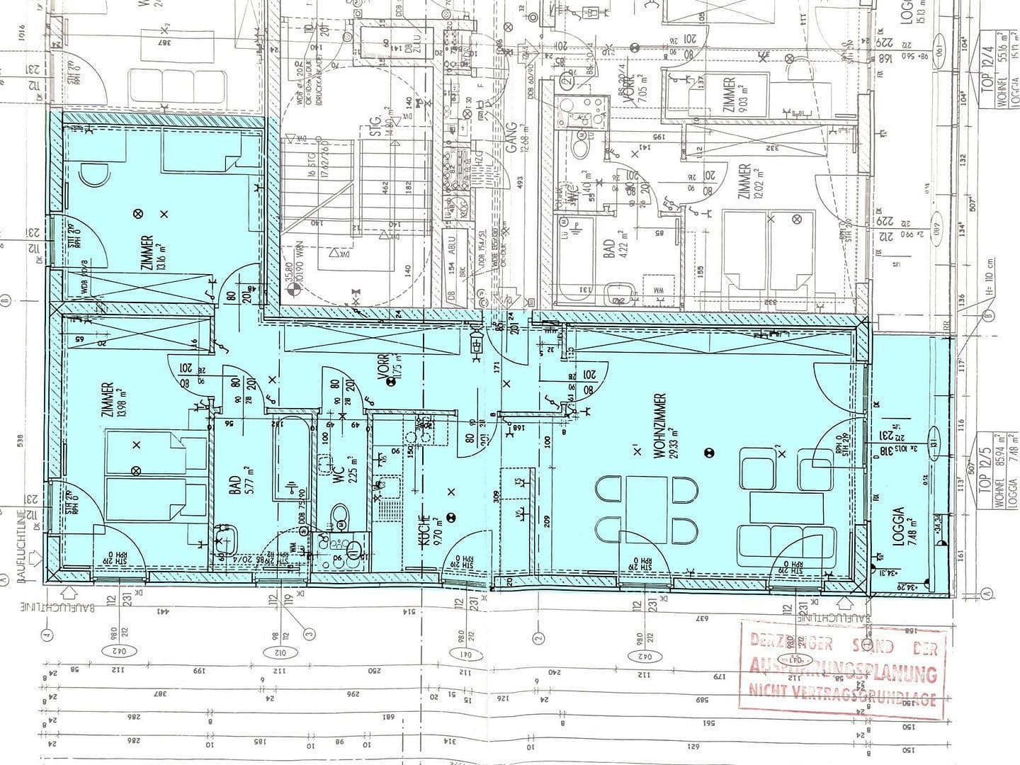
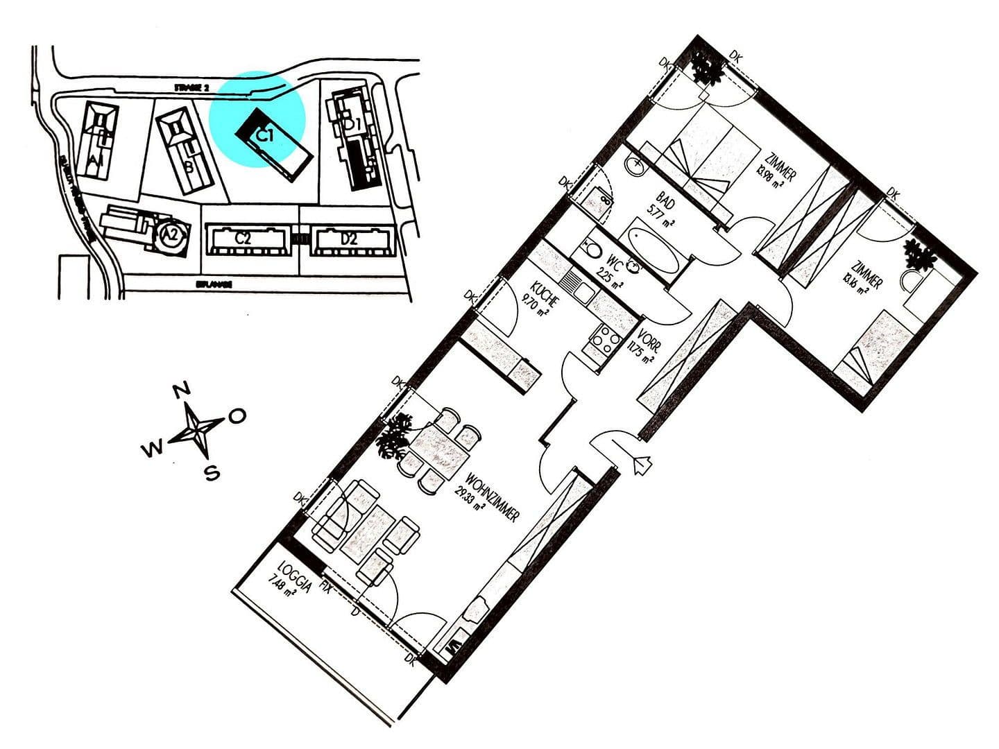
ca. 86 m² Wohnfläche + 7 m² verglaste Loggia
12. Stock mit Blick in 3 Himmelsrichtungen)
Großzügiger Wohn- und Essbereich mit Loggiazugang
Zwei helle Schlafzimmer
Hochwertige DAN-Einbauküche mit Geräten
Badezimmer mit Badewanne
Separates WC
Zentral begehbarer, optimaler Grundriss
Fernwärme, Video-Gegensprechanlage, Innenjalousien
Die verglaste Loggia erweitert den Wohnraum und ermöglicht ganzjährig nutzbaren Freiraum mit außergewöhnlicher Aussicht.
cca 86 m² obytné plochy + 7 m² prosklené loggie
12. patro s výhledem do tří stran
Prostorný obývací a jídelní prostor s přístupem na loggiu
Dvě světlé ložnice
Vysoce kvalitní vestavěná kuchyň DAN s kompletním vybavením
Koupelna s vanou
Samostatné WC
Centrálně přístupný, optimální půdorys
Centrální vytápění, video interkom, vnitřní žaluziové krytiny
Prosklená loggia rozšiřuje obytný prostor a umožňuje celoroční využití venkovního prostoru s výjimečným výhledem.
Gebäude – Wohnen mit Komfort und Qualität
Der architektonisch markante Delugan-Meissl-Tower bietet exklusiven Wohnkomfort:
Budova – bydlení s komfortem a kvalitou
Architektonicky výrazný Delugan-Meissl-Tower nabízí exkluzivní komfort bydlení:
• Concierge-Service
• Recepční služby
• Fitnessraum und Sauna im Gebäude
• Fitness centrum a sauna přímo v budově
• Gepflegte Allgemeinbereiche
• Udržované společné prostory
• Liftanlage und professionelle Hausverwaltung
• Výtah a profesionální správa budovy
• Optional ist ein Tiefgaragenstellplatz im Haus verfügbar.
• Volitelně je k dispozici parkovací místo v podzemní garáži.
V okolí nemovitosti najdete
Stále hledáte to pravé?
Nastavte si hlídacího psa. Nabídky vybrané na míru dostanete souhrnně 1× denně e-mailem. S Premium profilem máte k ruce hlídačů rovnou 5 a když se něco objeví, informují vás obratem.



















































