
Pronájem bytu 2+1 • 69 m² bez realitkyLeipziger Straße 19, , Sasko
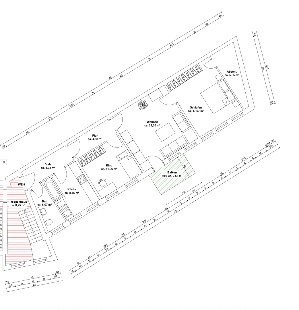
Leipziger Straße 19, , SaskoMHD 6 minut pěškyVítáme vás na Leipziger Straße 19–23 ve Schkeuditz: Tento dobře řešený 3-pokojový byt (WE03) v přízemí vpravo nabízí na přibližně 80,52 m² příjemné bydlení s balkonem – ideální pro páry, malé rodiny nebo pro každého, kdo ocení další místnost pro domácí kancelář.
Půdorys zaujme jasným rozdělením prostor: centrální obytná část tvoří srdce bytu, zatímco další dvě místnosti lze flexibilně využít jako ložnici, dětský pokoj, kancelář nebo pokoj pro hosty. Balkon rozšiřuje obytný prostor do exteriéru a zve k pokojným chvilám na čerstvém vzduchu.
Budova pochází z roku 1990 a je vytápěna pomocí jednotlivých vytápěcích jednotek (plyn/elektrika), což umožňuje individuální řízení tepelné potřeby bytu. Energetický stav je označen energetickou třídou D.
V současnosti není uzavřena žádná aktivní nájemní smlouva. Rádi vám byt při prohlídce osobně představíme a objasníme všechny detaily týkající se stavu, vybavení a možných termínů nastěhování.
Schkeuditz spojuje blízkost k velkému městu s snadnou dostupností v každodenním životě. Leipziger Straße má výborné dopravní spojení a nabízí praktickou infrastrukturu: obchody pro denní potřeby, poskytovatele služeb a další nabídky každodenního života jsou v dosahu.
Dopravní dostupnost je výraznou výhodou lokality: městskou hromadnou dopravou a díky blízkosti významných silničních spojení se rychle dostanete do Lipska i do okolního regionu. Rodiny ocení také nabídku mateřských školek, škol a volnočasových aktivit ve Schkeuditz a jeho okolí.
Jednotka: WE03 (přízemí vpravo)
Bytová plocha: cca 69 m²
Pokoje: 3
Balkon: ano
Nemovitost: Leipziger Straße 19–23 (kód: LS19), 04435 Schkeuditz
Rok výstavby: 1990
Vytápění: jednotlivé jednotky (plyn/elektrika)
Energetická třída: D
Památkově chráněná: ne
Parkovací místa: neuvedeno
Domácí zvířata: po dohodě
Dostupnost: ihned
V okolí nemovitosti najdete
Stále hledáte to pravé?
Nastavte si hlídacího psa. Nabídky vybrané na míru dostanete souhrnně 1× denně e-mailem. S Premium profilem máte k ruce hlídačů rovnou 5 a když se něco objeví, informují vás obratem.















