
Prodej domu 4+1 • 152 m² bez realitkyFreybergstr. 13 Zorneding Zorneding Bayern 85604
Střední řadový dům, rok výstavby 1991, EIWOBAU
Orientace na jih, zdiva, kompletní sklepování
Udržovaná předzahrada i zadní zahrada, pečlivě udržovaná vnější fasáda
Velikost pozemku 250 m²
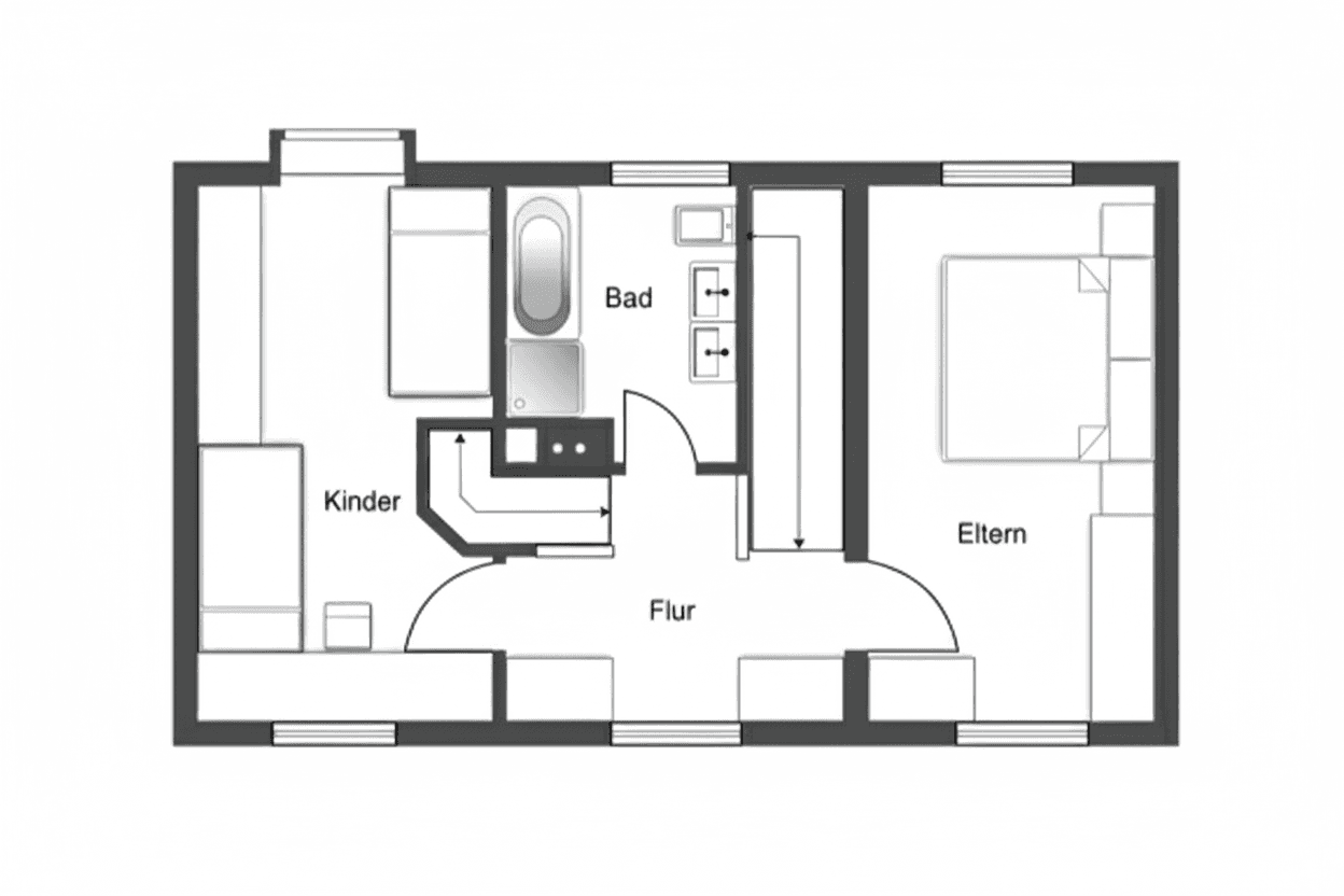
Bytová plocha 152 m² s užitnou plochou 46 m²
4 pokoje, 3 koupelny/toalety, 4 podlaží se sklepem
Garáž integrovaná v domě (ideální pro připojení elektrického vozidla) a 2 parkovací místa na vlastním pozemku před domem
Stavební konstrukce a energie: zdiva, sklepování, zemní plyn s podlahovým vytápěním v přízemí/koupelně a v 1. patře, dřevěná kuchyňská pec z roku 2023 s funkcí trouby, okna z masivního dřeva, světlý laminát/světlé obklady, zrekonstruovaná vestavěná kuchyně s novým sporákem/troubou/umyvadlem/pracovní deskou
Prostorná a otevřená jídelna s obývacím prostorem a kuchyní (oddělitelná skleněnými posuvnými dveřmi)
Zahrada: Oplocení vůči sousedům – ideální pro děti a psy
Volné posezení: Možnost využití jako zahradní domek nebo skladovací prostor pro zahradní nábytek, zahradní náčiní, dětské hračky, kola, gril apod.
Lokalita:
Tento moderní a světlý řadový dům se nachází v klidné, dopravně omezené části Pöringu, vedle Zornedingu, v slepé uličce.
Pěšky 3 minuty od vlakové stanice, 15 minut chůze k průmyslové zóně Pöring s různými obchodními možnostmi, 15 minut chůze do centra Zornedingu, 10 minut chůze do parku s rybníkem v novém stavebním areálu Zornedingu.
Rychlé spojení do centra Mnichova, ale také k bavorské přírodě – horám a jezerům.
K okamžitému nastěhování a obývání.
Není zařízen, ale je vybaven lampami.
Obrázky vygenerované umělou inteligencí slouží pouze jako příklad zařizování.
Kontakt a informace prosím převážně večer od 18:00 hodin z důvodu pracovních závazků!
Rádi Vaše zprávy přijmeme přes WhatsApp/SMS na čísle 017625243180.
Prohlídky jsou možné o víkendech.
Mnohokrát děkujeme
Rodina Fuchs
V okolí nemovitosti najdete
Stále hledáte to pravé?
Nastavte si hlídacího psa. Nabídky vybrané na míru dostanete souhrnně 1× denně e-mailem. S Premium profilem máte k ruce hlídačů rovnou 5 a když se něco objeví, informují vás obratem.

















