
Pronájem nebytového prostoru • 300 m² bez realitkyBaden-Baden Baden-Baden Baden-Württemberg 76532
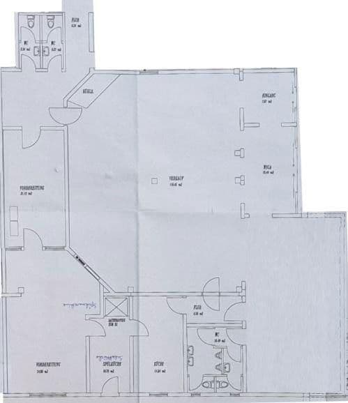
Baden-Baden Baden-Baden Baden-Württemberg 76532MHD 1 minuta pěškyZákazníci vcházejí do obchodní jednotky automatickými skleněnými dveřmi a jsou přivítáni přitažlivě uspořádaným a velmi pečlivě udržovaným prodejním prostorem o rozloze 160 m². Vzhledem k dosavadnímu využití jako řeznictví s prodejem a bistro nabízejícím denní obědy se zde v současnosti nacházejí chladicí a ohřívací vitríny, které však budou při jiném způsobu využití odstraněny. Řada oken a zimní zahrada zajišťují dostatek světla. Samozřejmě jsou zde také toalety pro hosty.
V zadní části se zpravidla nacházely prostory využívané jako kuchyně, stejně jako toalety pro zaměstnance a skladovací prostory.
Kromě dosavadního využití pro gastronomii je možný také provoz prodejní plochy, fitness centra či podobného zařízení.
NEJSOU povoleny kasina ani sázkové kanceláře.
Celá plocha bude uvolněna od ledna 2027, prodejní prostor lze uvolnit i dříve po vzájemné domluvě.
Obchodní jednotka se nachází v atraktivní lokalitě Baden-Baden-Oos poblíž mnoha podniků. Všechny prostory jsou bezbariérově přístupné. K dispozici je řada parkovacích míst. V bezprostředním okolí se nachází také diskontní obchod a rychlonabíjecí stanice pro elektromobily, které rovněž přitahují zákazníky. V těsné blízkosti jsou další diskonty a také lékárna. Železniční stanice Baden-Baden je vzdálena přibližně 500 m.
Nemovitost byla pravidelně udržována a nabízí velmi dobrou vybavenost. Nově v roce 2022 instalovaná tepelná čerpadla zajišťují ekologické vytápění za výhodnou cenu. Další skladovací prostory jsou k dispozici dle potřeby.
Parametry nemovitosti
| Stáří | Nad 50 let |
|---|---|
| Číslo inzerátu | 1002102 |
| Cena za jednotku | 0 € / m2 |
| Stav | Dobrý |
|---|---|
| Plocha nebytového prostoru | 300 m² |
Co tato nemovitost nabízí?
| Bezbariérový přístup | |
| MHD 1 minuta pěšky |
| Terasa |
V okolí nemovitosti najdete
Stále hledáte to pravé?
Nastavte si hlídacího psa. Nabídky vybrané na míru dostanete souhrnně 1× denně e-mailem. S Premium profilem máte k ruce hlídačů rovnou 5 a když se něco objeví, informují vás obratem.

















