
Prodej bytu 2+1 • 98 m² bez realitkyDarmstadt Darmstadt Hessen 64283
Výjimečný dvoupokojový byt, přímo v zadní části pěší zóny Darmstadtu
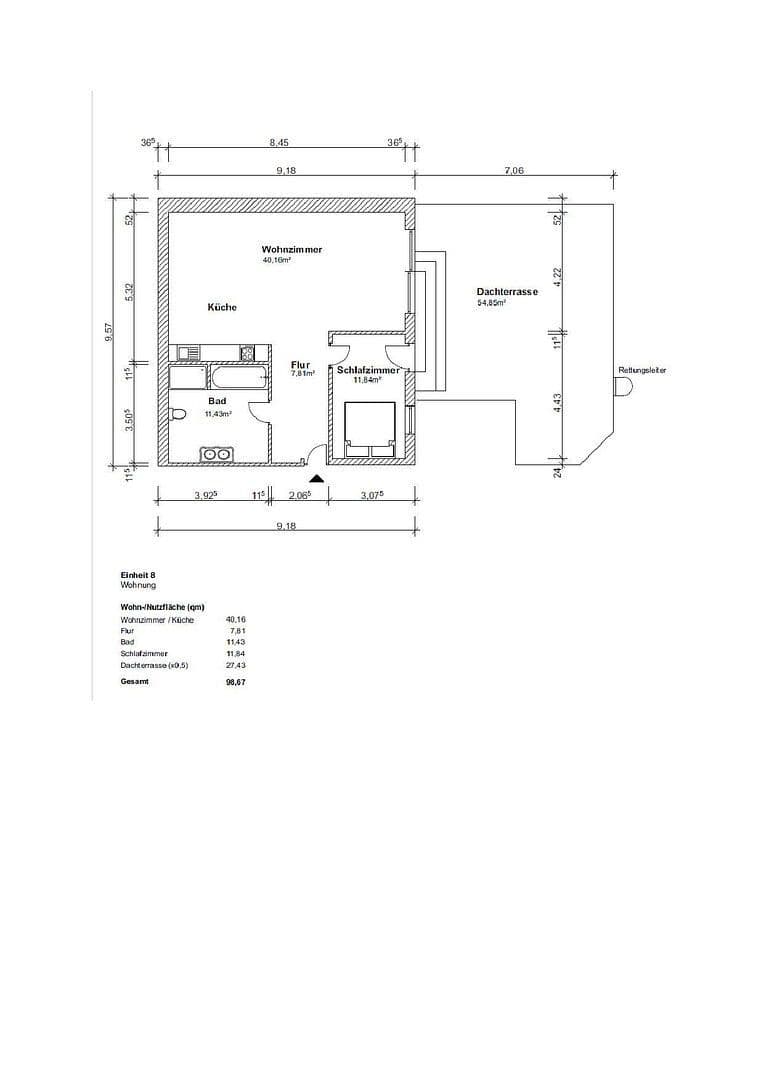
K 70 m² obytné plochy uvnitř máte navíc k dispozici jedinečnou, slunnou střešní terasu o rozloze 54 m².
Městský byt nabízí dostatek prostoru pro jednotlivce nebo páry a je také dobrou volbou pro investory.
Velká koupelna s dešťovou sprchou a vanou splňuje veškeré nároky.
Otevřený koncept obývacího a jídelního prostoru vytváří příjemnou atmosféru.
Byt byl kompletně zmodernizován v roce 2020 a vybaven vysoce kvalitní vestavěnou kuchyňskou linkou.
Byt je ihned k nastěhování – další výhoda, zejména pro zájemce, kteří chtějí rychle nastěhovat.
Vědecké město Darmstadt je atraktivní místo k bydlení, zejména pro lidi, kteří si cení vysoké kvality života. Kombinace městského šarmu a zelených oáz dělá z města výjimečné místo k životu. Centrální poloha bytu nabízí dobrou infrastrukturu s obchody, kavárnami, restauracemi i s blízkostí škol a školek, což je velice praktické pro rodiny i pracující.
Volnočasové možnosti jsou také atraktivní, s krásnými parky jako Rosenhöhe a Herrngarten, které jsou ideální pro odpočinek a sportovní aktivity.
Dopravní dostupnost je dalším plusem: Tramvaje, autobusy a nádraží zajišťují výborné spojení, a dálnice A5 a A67 jsou snadno dosažitelné. Také letiště ve Frankfurtu je vzdáleno jen asi 30 minut, což činí město zvláště atraktivním pro dojíždějící.
Blízkost škol a nemocnice doplňuje nabídku a činí z Darmstadtu ideální místo k bydlení pro různé životní situace.
• Vestavěná kuchyň s vysoce kvalitními elektrospotřebiči;
• Elektrické rolety;
• Síťová kabeláž v celém obytném prostoru;
• Koupelna s dešťovou sprchou a vanou.
V okolí nemovitosti najdete
Stále hledáte to pravé?
Nastavte si hlídacího psa. Nabídky vybrané na míru dostanete souhrnně 1× denně e-mailem. S Premium profilem máte k ruce hlídačů rovnou 5 a když se něco objeví, informují vás obratem.













