
Prodej bytu 2+1 • 55 m² bez realitkyWaldstraße 10 Eichenau Eichenau Bayern 82223
Nachází se v klidné obytné ulici v Eichenau, tento udržovaný dvoupokojový byt se nachází ve druhém patře bytového domu z roku 1983.
Bytový komplex se rozkládá na prostorném, velmi udržovaném pozemku ve stylu parku (7381 m²) s hojnou zelení, společnými plochami, grilovacím místem a hřištěm – ideální pro odpočinek a klidné bydlení.
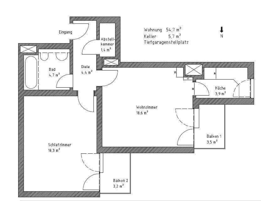
Byt disponuje dvěma téměř stejně velkými pokoji (každý přibližně 19 m²), ze kterých má každý přístup na jeden ze dvou slunných západních balkonů – perfektní pro pohodové chvíle na čerstvém vzduchu. Výtah zajišťuje bezbariérový přístup do bytu.
Vstupní hala bytu zahrnuje prostornou předsíň, ze které je přístup do praktického úložného prostoru, koupelny, ložnice a obývacího pokoje. Samostatná kuchyně je vybavena moderním vestavěným vybavením a přímo navazuje na obývací pokoj.
K bytu dále náleží velký uzamykatelný sklep.
Bytovému družstvu je k dispozici společně využívaná místnost na kola v přízemí, společný sklep na kola, společná prádelna s mincovým pračkou a sušičkou a několik sušicích sklepů.
K bytu také patří snadno přístupné podzemní parkovací místo s přímým vstupem do obytné budovy.
Na pozemku bytového komplexu se dále nachází velké společné parkoviště.
Byt se nachází v klidné vedlejší ulici v Eichenau, oblíbené obci západně od Mnichova.
Infrastruktura je vynikající:
• Nákupní možnosti, mateřské školy, školy i spoje S-Bahn a autobusů jsou dosažitelné pěšky během několika minut.
• Centrum Mnichova je dostupné linkou S-Bahn S4 přibližně za 25 minut.
• Bytová plocha: cca 55 m²
• Druhé patro
• Dva prostorné pokoje s přístupem ke každému západnímu balkoně
• Samostatná kuchyně s vestavěným vybavením
• Koupelna s vanou
• Předsíň
• Úložný prostor
• Bezbariérový přístup (včetně výtahu)
• Plynové ústřední vytápění
• Rok výstavby 1983
• Klidná lokalita na pozemku ve stylu parku (7381 m²)
• Podzemní parkovací místo za 25 000,- € navíc
• Společné náklady: 251 € měsíčně
Klidná lokalita na pozemku ve stylu parku (7381 m²)
Zahrada s možností společného využití:
• Hřiště
• Grilovací zóna
• Stolní tenis
Tento byt je ideální k vlastnímu užívání, například pro jednotlivce nebo páry, ale také jako investice s pevnou hrubou výnosem cca 2,8–3,2 %. Kombinace klidné lokality, bezbariérového přístupu a vynikající infrastruktury z ní činí udržitelnou investici.
V okolí nemovitosti najdete
Stále hledáte to pravé?
Nastavte si hlídacího psa. Nabídky vybrané na míru dostanete souhrnně 1× denně e-mailem. S Premium profilem máte k ruce hlídačů rovnou 5 a když se něco objeví, informují vás obratem.




















