
Prodej bytu 3+1 • 87 m² bez realitkyGervinusstraße 1b Berlin Charlottenburg Berlin 10629
Gervinusstraße 1b Berlin Charlottenburg Berlin 10629MHD 2 minuty pěšky • Výtah**Dokončeně zařízeno. Ihned k bydlení.**
Tento byt nebyl jen postaven – byl promyšlen do posledního detailu. Každý prvek, od FENIX designérské kuchyně až po přírodní kámen v koupelně, je výsledkem profesionálního návrhového konceptu z roku 2016. Nemusíte nic plánovat, ani nic renovovat či zařizovat. Stačí otevřít dveře a ihned začít žít.
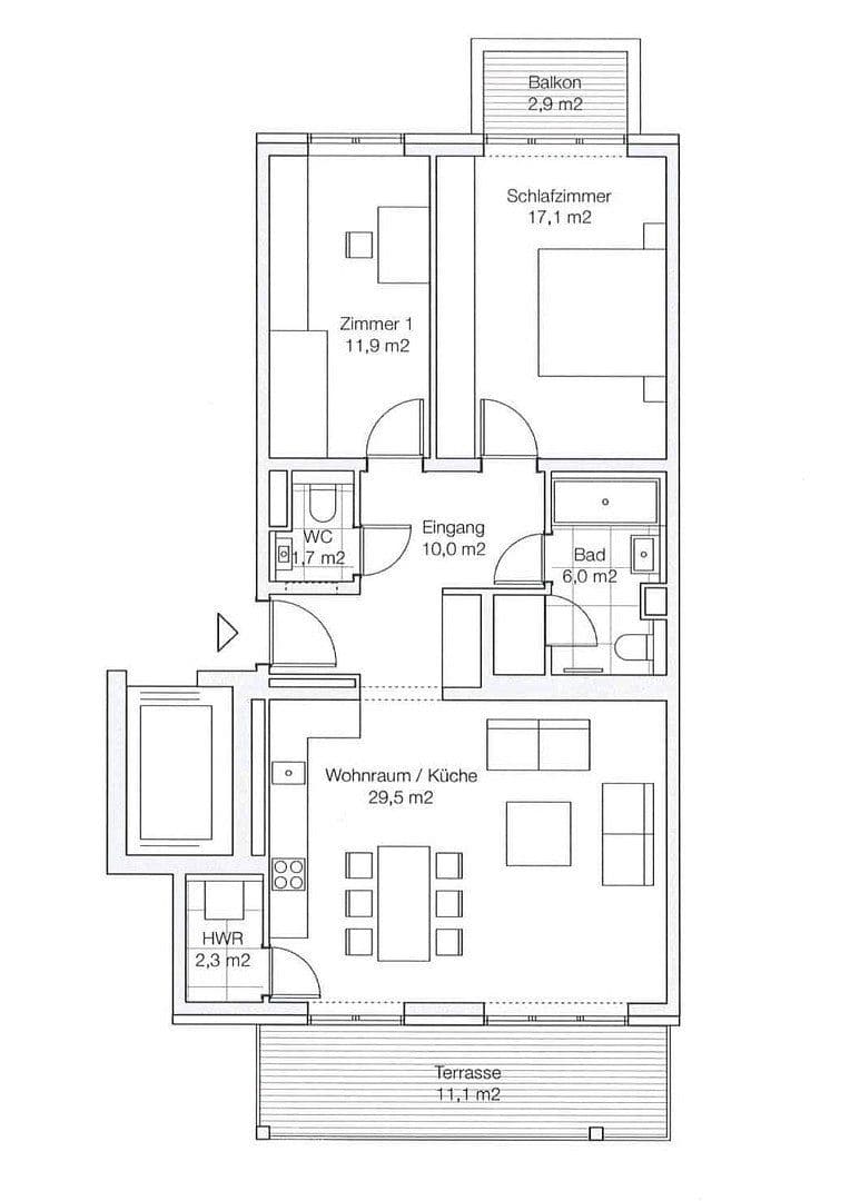
Rozložení místností:
• Kuchyňský obývací pokoj (29,5 m²): Otevřený půdorys s okny od podlahy až ke stropu orientovanými na jih, FENIX designérská kuchyně v matovém odstínu šampaňského, integrované spotřebiče značek Siemens a Bosch, dubové parkety s podlahovým vytápěním
• Ložnice (17,1 m²): Vestavěné skříně vyrobené na míru, zatemňovací závěsy, vlastní balkon
• Pracovna (11,9 m²): Ideální jako domácí kancelář, knihovna nebo pokoj pro hosty – využití dle vašich představ
• Hlavní koupelna: Samostatně stojící vana, walk-in sprchový kout, přírodní kámen
• Samostatné návštěvnické WC s vlastní umyvadlem
• Terasa na jih (11,1 m²): Celodenní sluneční světlo nad střechami Charlottenburgu
Vybavení:
• Dubové parkety a podlahové vytápění v celém bytě
• Energetická třída A (55 kWh/m²a), dálkové vytápění
• Ethernetové kabeláž v každé místnosti
• Výtah, bezbariérový přístup, sklep
• Novostavba z roku 2016, v původním stavu
Lokalita – Charlottenburg, 10629:
Blízko ulic Kantstraße a Savignyplatz, pouhých pět minut chůze od Ku'dammu. Stanice U7 Wilmersdorfer Straße 2 minuty pěšky, S-Bahn Charlottenburg 3 minuty.
Bez provize – přímý prodej bez realitky.
Další informace: gervinusstrasse.rubyre.de
Berlin-Charlottenburg, také zvaný City West, je již přes století jednou z nejvyhledávanějších rezidenčních lokalit Berlína. Kultura, gastronomie, architektura a pohoda, kterou jinde nenajdete.
Ulice Gervinusstraße se nachází poblíž Savignyplatz a Kantstraße, jen pět minut chůze od Kurfürstendammu – v srdci čtvrti 10629.
Dopravní spojení:
• Metro (U-Bahn) Wilmersdorfer Straße (U7): 2 minuty pěšky
• S-Bahn Charlottenburg: 3 minuty
• S-Bahn Westkreuz (okružní trať): 5 minut
• Výstaviště Messe Berlin: 8 minut
• Hlavní nádraží: 15 minut
• Letiště BER: 40 minut
V okolí: Německá opera, zámek Charlottenburg, KaDeWe, Lietzensee-Park, Technická univerzita v Berlíně, Sophie-Charlotte Gymnázium.
Kompletně designově vybavené interiéry (2016), profesionálně navržené a v původním stavu. FENIX designérská kuchyně v matovém odstínu šampaňského s integrovanými spotřebiči značek Siemens a Bosch. Dubové parkety a podlahové vytápění v celém bytě. Hlavní koupelna se samostatně stojící vanou, walk-in sprchou a přírodním kamenem. Vestavěné skříně vyrobené na míru v ložnici. Technická místnost s pračkou a sušičkou. Ethernetové rozvody (LAN) v každé místnosti. Terasa na jih 11,1 m² + balkon 2,9 m². Výtah, sklep, bezbariérový přístup.





























