
Prodej domu 5+1 • 131 m² bez realitkyBahnhofstraße 36, , Bádensko-Württembersko
Bahnhofstraße 36, , Bádensko-WürttemberskoMHD 2 minuty pěšky • ParkováníJen pár set metrů za vjezdem do čtvrti Oberrottweil obce Vogtsburg se nachází pozemek přiléhající ke klidnému, jemně bublajícímu potůčku Krottenbach, na němž bude nyní realizován tento projekt novostavby se čtyřmi dvojdomky, tedy osmi samostatnými obytnými jednotkami.
Tyto dvojdomky jsou ideální pro mladé rodiny, které touží po cenově dostupném vlastním bydlení v prestižním vinařském sídle na malebném Kaiserstuhlu. Nabízený „Dům 6“ má rozlohu pozemku 216,84 m² a kromě samotné stavby poskytuje dostatek prostoru pro terasu se zahradou, která zve ke společnému posezení s rodinou a přáteli i k dětským hrám.
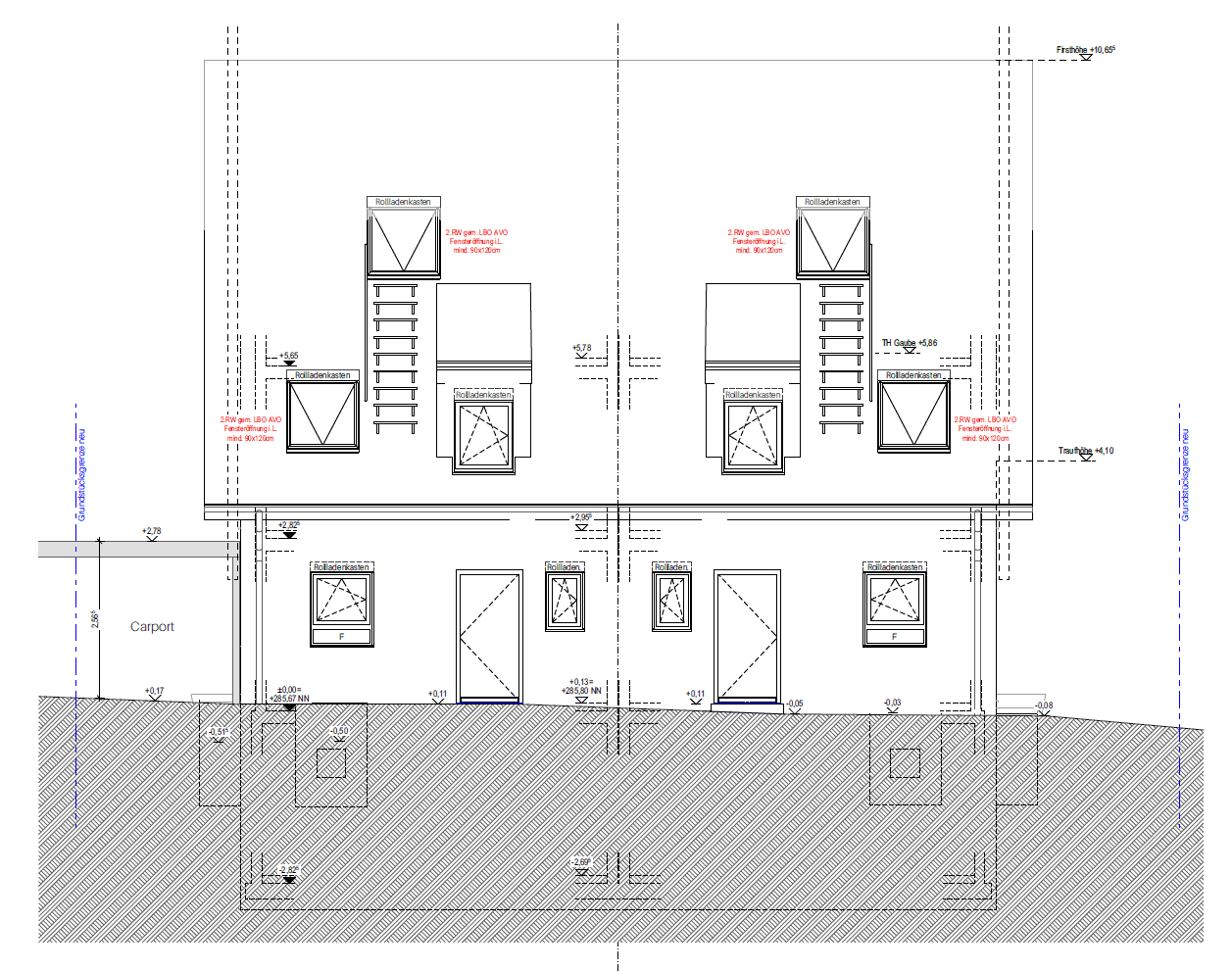
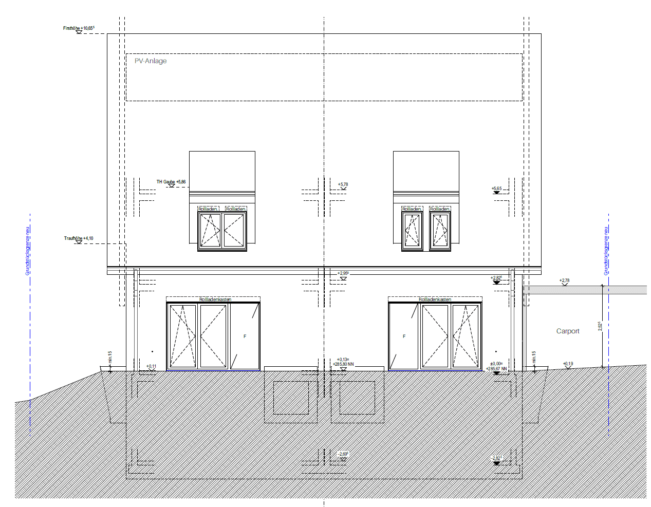
Budovy budou postaveny v moderní ocel–dřevěné konstrukci. To přináší hned několik výhod: zaprvé se dosáhne udržitelného standardu KfW-40, díky čemuž kupující profitují z úrokově zvýhodněných podmínek financování. Navíc se zkracuje doba výstavby, neboť již v továrně vyrobené prvky jsou prakticky dopravovány nákladním vozidlem a sestavovány pomocí jeřábu.
To rovněž šetří náklady, což se odráží v cenově dostupných kupních cenách. Nakonec budou stavební objekty především v porovnání s klasickými dřevěnými domy běžných dodavatelů montovaných domů vynikat obrovskou dlouhověkostí. Ocelová konstrukce je masivní – když za několik desetiletí nastane potřeba rekonstrukce, izolace spolu s dřevěným obkladem lze jednoduše odstranit a nahradit novými materiály.
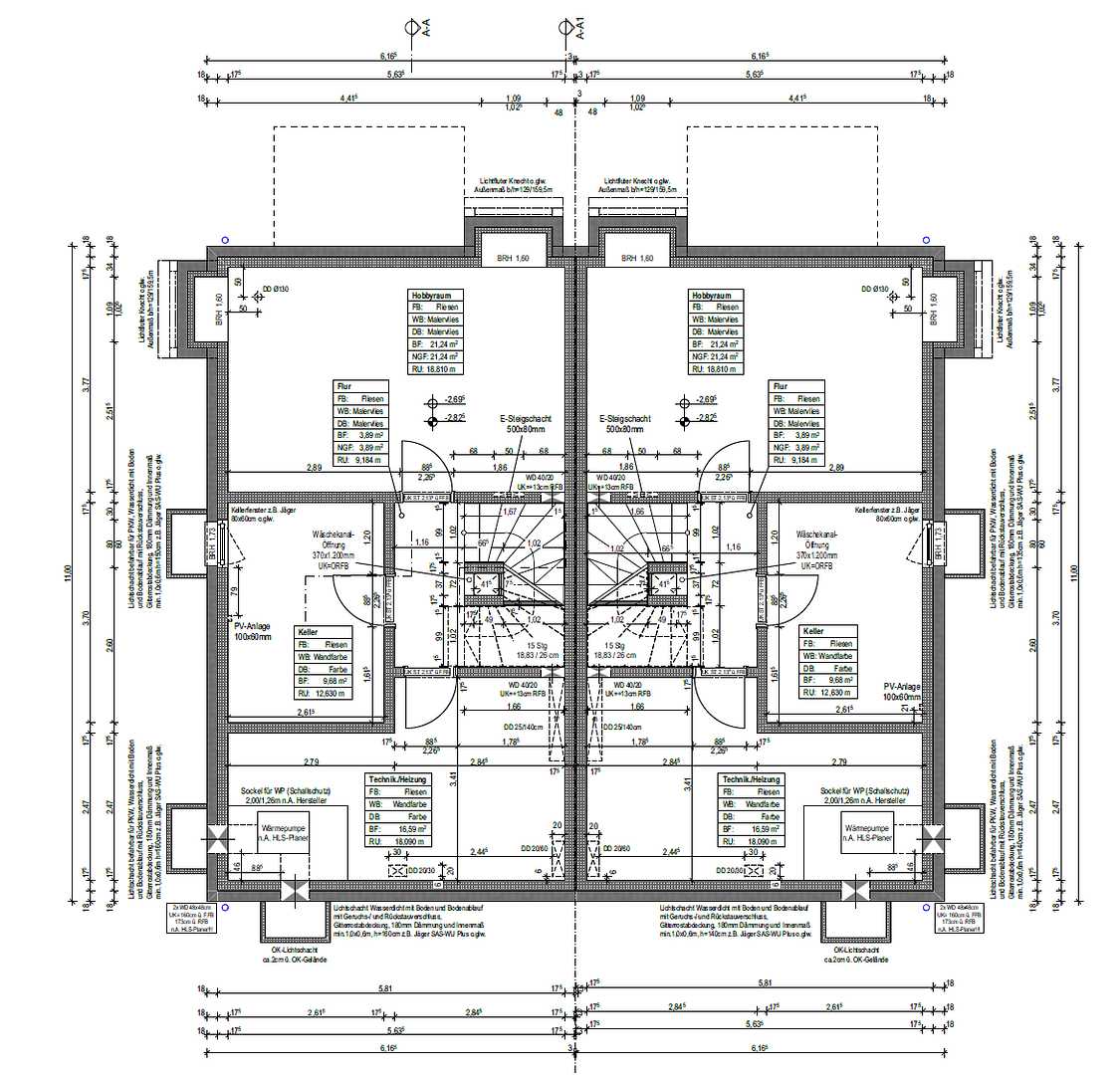
Všechny domy sdílejí společný dvůr s vjezdem. Volitelné přístřešky typu carport poskytují místo pro dvě vozidla, stejně tak pro jízdní kola, a zde mohou být uloženy i odpadkové koše. Přes širokou halu, která zároveň slouží jako věšák na kabáty, se dostanete do interiéru svého domova. Hned napravo se nachází toaleta pro hosty a úložný prostor pro domácí přístroje.
Průchod jedněmi dveřmi vás zavede přímo do srdce vašeho domova: přes 31 m² obytné plochy se rozprostírá prostorný obývací a jídelní prostor s útulnou světlostí díky podlahovým oknům. Hned za rohem se nachází otevřená kuchyň ve tvaru písmene U. Díky své velikosti zde nenajdete žádnou výmluvu – může se do přípravy jídla zapojit celá rodina.
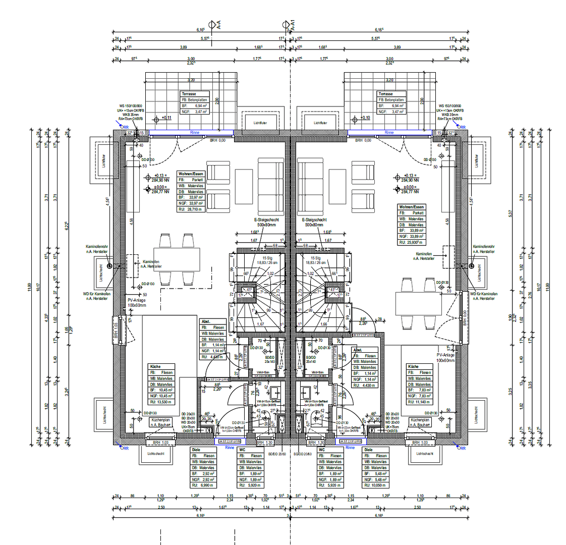
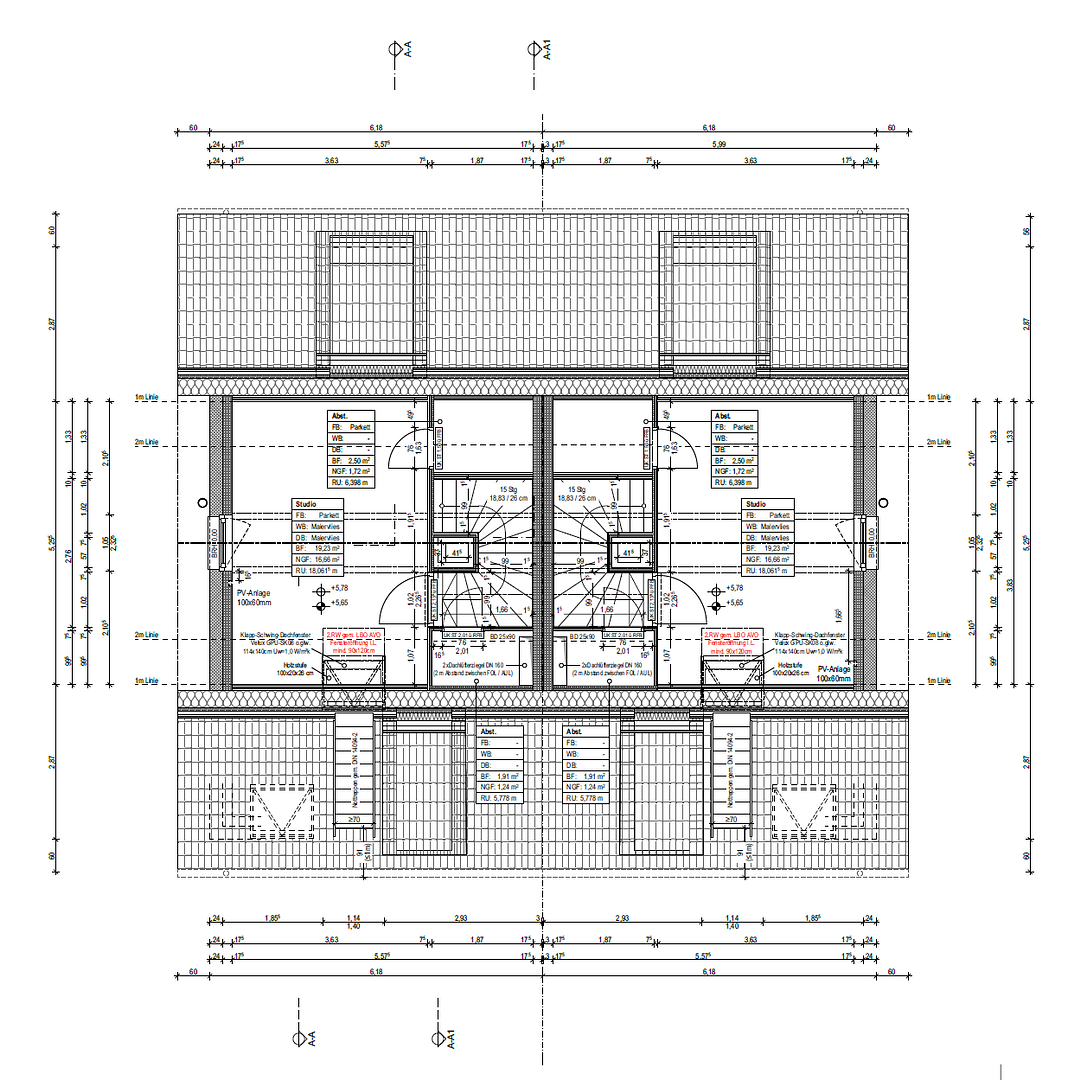
Po schodech se dostanete do podkroví. Tam na vás čekají tři zhruba stejně velké ložnice (9 m² až 11,5 m²). Prostorný dispozice je zajištěna využitím nízkopodlažních střešních okapnic. Všechny pokoje jsou přístupné přes širokou chodbu – ať je využijete pro děti, jako kancelář nebo rodičovskou ložnici, rozhodnutí je na vás.
Pro rodičovskou ložnici však připravený vybudovaný šikmý střešní prostor skrývá ještě jedno speciální překvapení. Navíc se na této úrovni nachází koupelna s toaletou, umyvadlem, bezbariérovou sprchou a dokonce i vanou, kde si můžete večer odpočinout, pokud byl den opět poněkud stresující. Velké okno zajišťuje dostatek denního světla i možnosti větrání.
Dalšími schody se dostanete k již zmíněnému vybudovanému šikmému střešnímu prostoru. S více než 15 m² obytné plochy může být tento prostor alternativně využit jako rodičovská ložnice – způsob využití je zcela na vás.
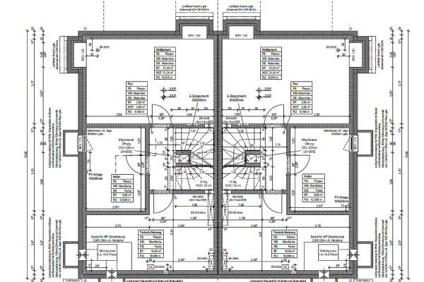
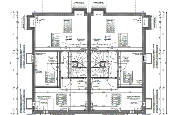
Závěrečné upozornění: Dvojdom je kompletně podsklepen. Kromě topné místnosti (tepelné čerpadlo podporované fotovoltaickou elektrárnou na střeše) zde najdete připojení pro pračku a sušičku i samostatný sklep, například pro zahradní nářadí. Další místnost s rozlohou přes 20 m² je vytápěná a disponuje dostatkem přirozeného světla, a proto se počítá do obytné plochy. Výborně se hodí například jako koníčková místnost.
Oberrottweil je oblíbená čtvrť zejména u rodin, nacházející se přímo u centra obce Vogtsburg. S přímým výhledem na typické révové vinice Kaiserstuhlu se v okolí nachází četná vinařství a hostince s renomovanou gastronomií.
Přímo v přírodě se volnočasová nabídka neomezuje – ať už jde o pěší túry, cyklistiku, odpočinek na dětských hřištích nebo návštěvu místního bazénu, každý si zde přijde na své. Ať už se jedná o hudbu, sport nebo společenské akce, komunitní život zde skvěle kvetie.
Obec navíc disponuje vynikající infrastrukturou. Z novostavby je pěšky dosažitelné zdravotnické centrum, supermarket, banky i malá místní autobusová zastávka.
V obci jsou k dispozici jak mateřská škola, tak základní škola; střední školy pak naleznete v přilehlých obcích regionu Kaiserstuhl. Nejbližší velké město je Freiburk im Breisgau, který leží přibližně 20 km daleko.
• Udržitelná ocel–dřevěná konstrukce podle energeticky efektivního standardu KfW 40
• Fasadní obklad jako tepelně izolační systém opatřený vápno–cementovou omítkou
• Podlahové vytápění ve všech místnostech (systém vzduch–voda s tepelným čerpadlem)
• Velká plastová okna (trojitě zasklená) s elektrickými hliníkovými rolovacími okenicemi
• Centrální větrací systém ve všech místnostech
• Moderní koncepce bydlení s otevřenou kuchyní
• Podlahové krytiny: parketová podlaha v obytných a ložnicových prostorech a dlaždice 60×60 cm v koupelně
• Nástěnné obklady: malířská textilie v obytných a ložnicových prostorech a dlaždice 60×30 cm v koupelně
• Nadčasový design koupelny s bezbariérovou sprchou a oknem propouštějícím denní světlo
• Koupelnové sanitární vybavení a armatury od renomovaných značek Duravit a Hansgrohe




















