
Prodej domu 5+1 • 131 m² bez realitkyBahnhofstraße 36, , Bádensko-Württembersko
Bahnhofstraße 36, , Bádensko-WürttemberskoMHD 2 minuty pěšky • ParkováníPouze několik set metrů za vjezdem do části Oberrottweil obce Vogtsburg se nachází pozemek přiléhající k tiše bublajícímu potoku Krottenbach, kde se nyní realizuje tento novostavbový projekt se čtyřmi dvojdomky, tedy osmi samostatnými obytnými jednotkami.
Dvojdomky jsou ideální pro mladé rodiny, které touží po dostupném vlastním bydlení v prestižní vinařské obci na malebném Kaiserstuhlu. Nabízený „Dům 1“ má pozemek o rozloze 198,87 m² a kromě samotné stavby poskytuje dostatek místa pro terasu se zahradou, která zve k posezení s rodinou a přáteli či ke hře dětí.
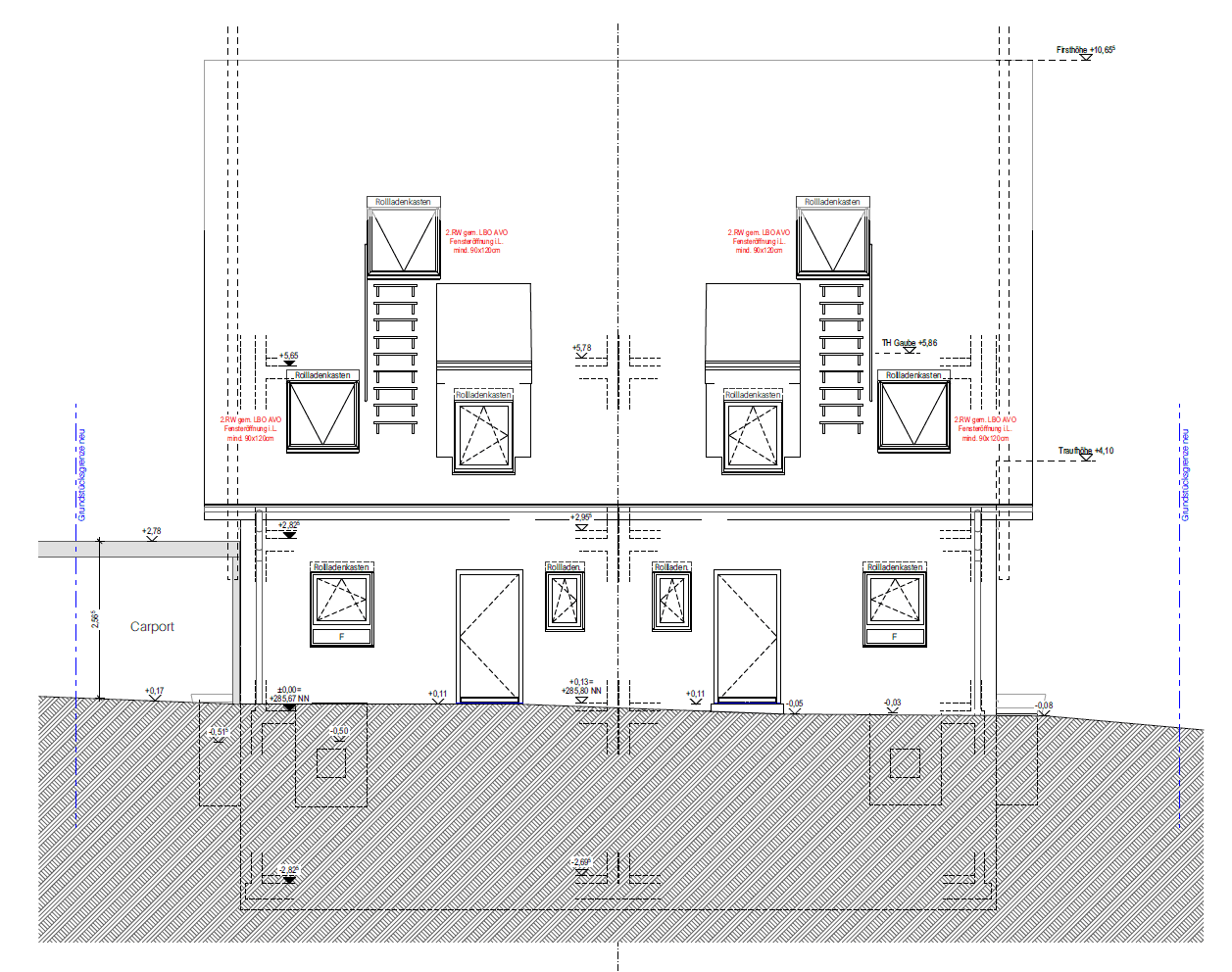
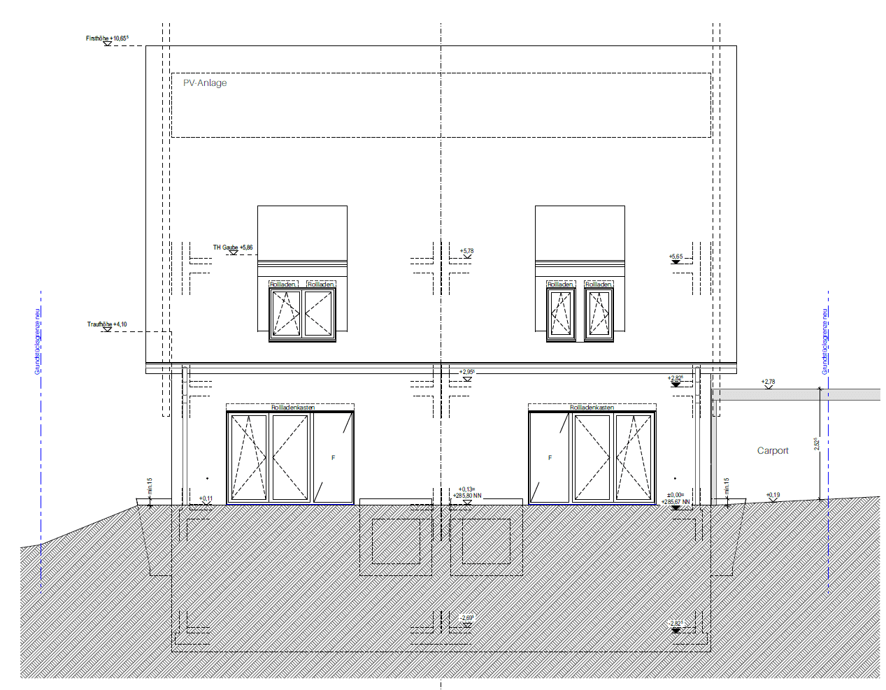
Budovy budou postaveny moderní ocelovo-dřevěnou technikou, což přináší několik výhod: zaprvé se dosáhne udržitelného standardu KfW-40, díky němuž kupující mohou těžit z úrokově zvýhodněného financování. Navíc se zkracuje doba výstavby, protože již v továrně vyrobené prvky jsou prakticky doručeny nákladním vozidlem a následně zdvižené jeřábem.
Tím se také šetří náklady, což se odráží v dostupných kupních cenách. Konečně se stavby, především v porovnání s klasickými dřevěnými domy běžných prefabrikovaných dodavatelů, vyznačují mimořádnou dlouhověkostí. Ocelová konstrukce je masivní a v případě, že za mnoho desetiletí přijde na rekonstrukci, lze izolaci a její dřevěné obložení snadno odstranit a nahradit novým materiálem.
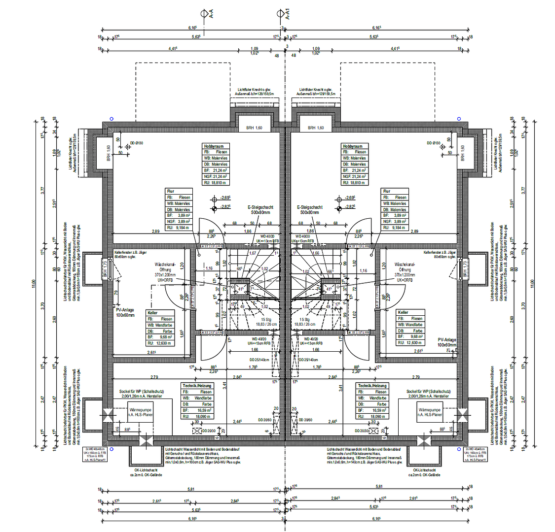
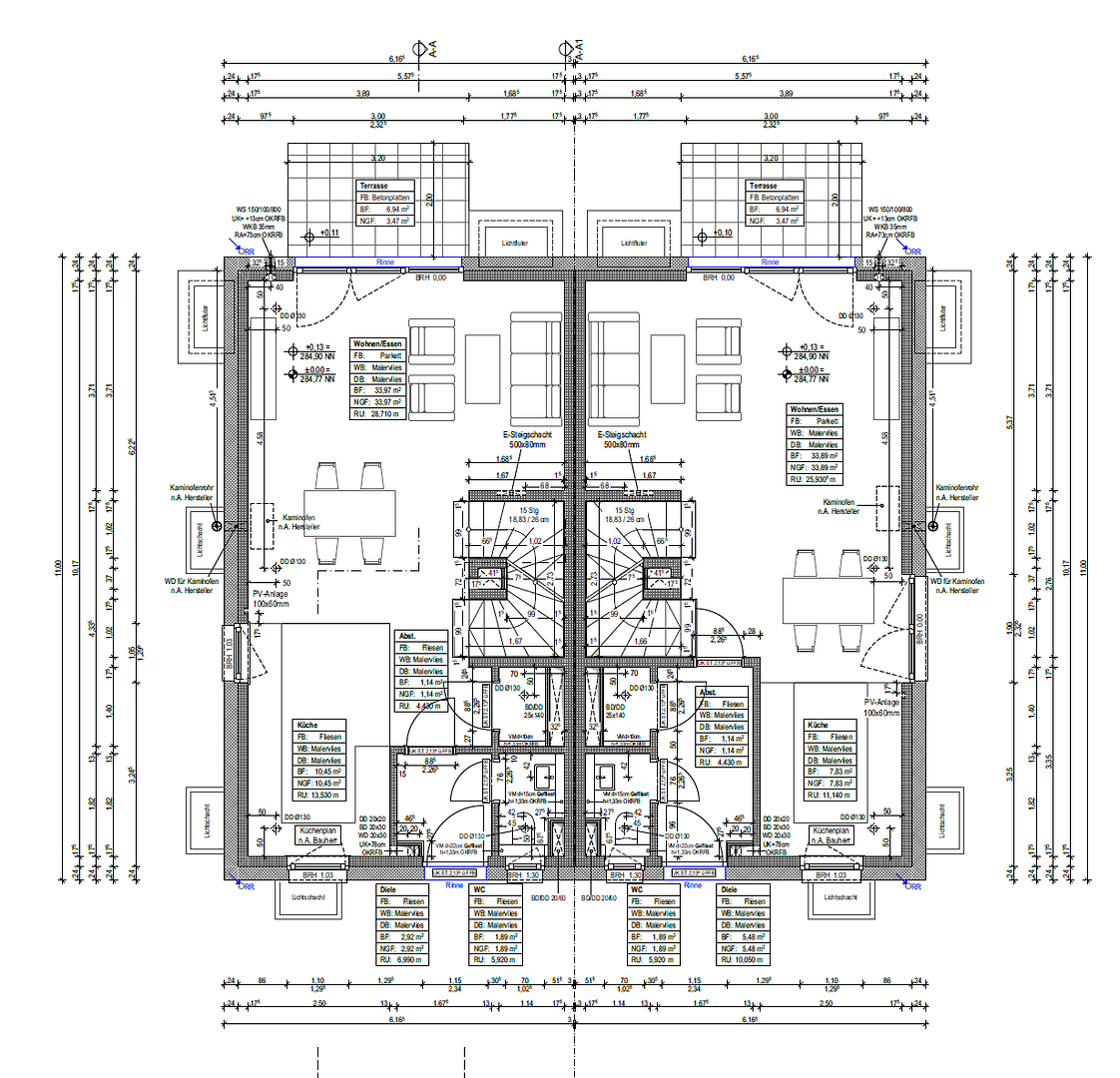
Všechny domy sdílejí společný vjezd do dvora. Volitelné carporty nabídnou místo pro dvě vozidla, kola, a zde lze umístit i odpadkové kontejnery. Prostorným halou, která zároveň slouží jako šatna, vstoupíte do vašeho vlastního domova. Na pravé straně se hned nachází hostinská toaleta a úložný prostor pro domácí zařízení.
Překročením dveří se dostanete přímo do srdce svého domova: obrovský obývací a jídelní prostor o více než 31 m² s útulnou světelností umožněnou podlahovými skleněnými stěnami. Hned za rohem se nachází otevřená kuchyně ve tvaru U. Díky své velikosti už neexistují žádné výmluvy – sem se může zapojit celá rodina při vaření.
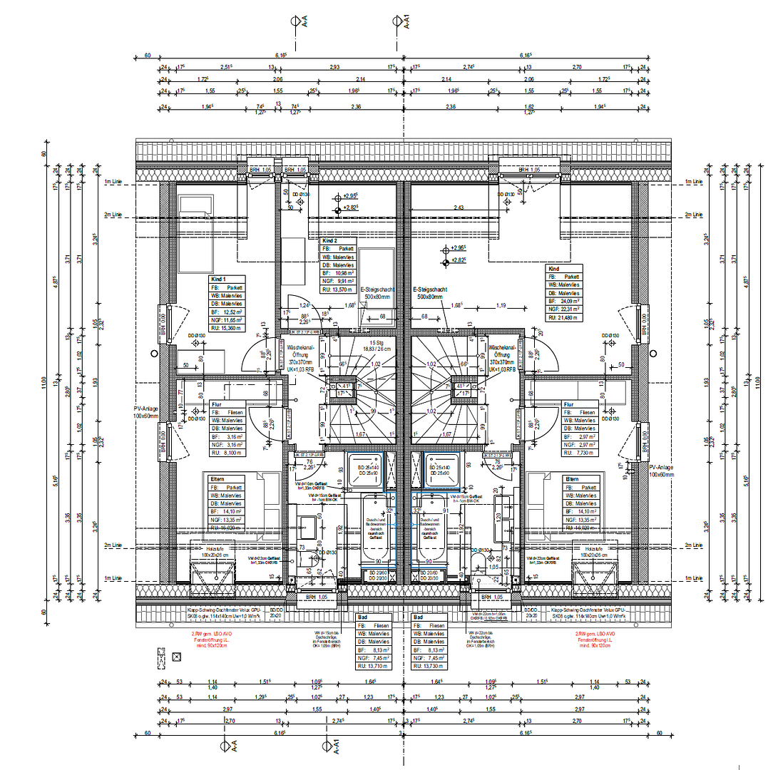
Schody vás zavedou do podkroví, kde naleznete tři přibližně stejně velké ložnice (9 m² až 11,5 m²). Prostorný dispozice je dosažitelná použitím přízemních vikýřů. Všechny pokoje jsou přístupné přes široký sál, a zda je využijete pro děti, jako kancelář nebo rodičovskou ložnici, záleží jen na vás.
Pro tyto poslední však rozvinutá střešní šikma připravila ještě speciální překvapení. Na této úrovni se dále nachází koupelna se záchodem, umyvadlem, bezbariérovou sprchou a dokonce i vanou, kde si můžete večer odpočinout, pokud byl den opět trochu stresující. Velké okno zajišťuje dostatek denního světla a možnosti větrání.
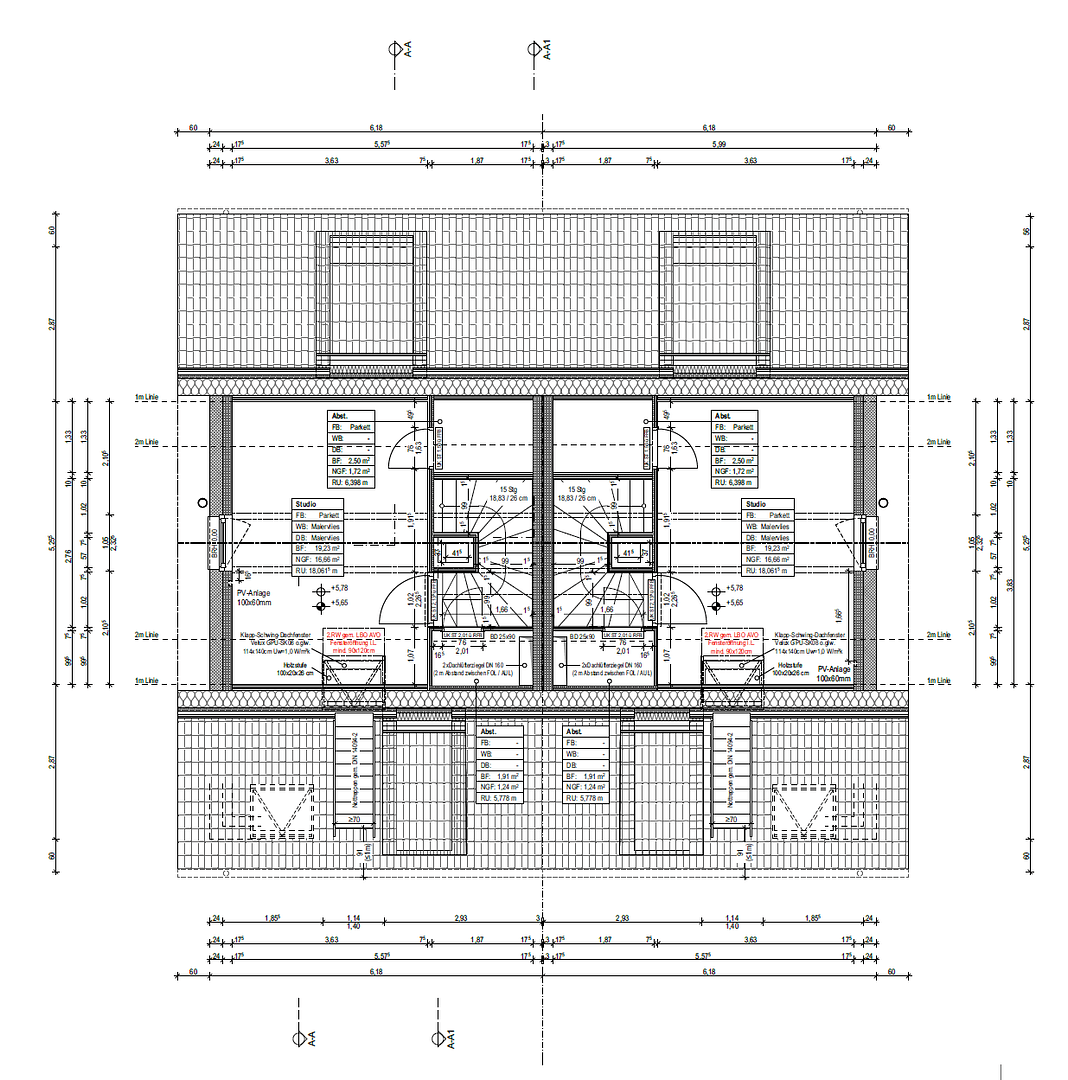
Další schodiště vede k již zmiňované dokonale využitelné střešní šikmě. Na více než 15 m² obytné plochy lze alternativně zařídit rodičovskou ložnici, a způsob využití je na vás.
Je třeba dodat, že dvojdomky jsou kompletně podkrovněny. Kromě kotelny (tepelná čerpadla podporována fotovoltaickou elektrárnou na střeše) zde najdete připojení pro pračku a sušičku, stejně jako samostatnou sklepní místnost například pro zahradní nářadí. Další místnost o rozloze přes 20 m² je vytápěná a má dostatek přirozeného světla, a proto se počítá do obytné plochy. Ideálně se hodí jako hobby místnost.
Oberrottweil je velmi oblíbená čtvrť zejména u rodin, přímo sousedící s centrem obce Vogtsburg. S přímým výhledem na typické vinice Kaiserstuhlu se v okolí nachází řada vinařství a hostinců s renomovanou gastronomií.
Obec leží přímo v přírodě, takže nabídka volnočasových aktivit nedává nic na zmar – ať už jde o pěší túry nebo cyklistiku, posezení na hřištích nebo využití místního koupaliště, každý najde to své. Ať už se jedná o hudbu, sport nebo zábavu, zde kvetou spolky.
Obec také disponuje vynikající infrastrukturou. V docházkové vzdálenosti od nového projektu jsou centrum pro lékaře, supermarket, banky a malá místní autobusová zastávka.
V obci se nachází mateřská i základní škola, dále jsou pak střední školy v okolních obcích Kaiserstuhlu. Nejbližším větším městem je Freiburg im Breisgau, vzdálený přibližně 20 km.
• Udržitelná ocelovo-dřevěná výstavba v energeticky efektivním standardu KfW 40
• Fasáda vybavená tepelně izolačním systémem s vápence-cementovou omítkou
• Podlahové vytápění ve všech místnostech (vzduch-voda tepelná čerpadla)
• Velká plastová okna (trojitě zasklená) s elektrickými hliníkovými žaluzie
• Centrální ventilační systém ve všech místnostech
• Moderně navržený obytný koncept s otevřenou kuchyní
• Podlahová krytina: parket v obytném a ložnicovém prostoru a dlaždice 60x60 cm v koupelně
• Stěnová krytina: malířské vlákno v obytném a ložnicovém prostoru a dlaždice 60x30 cm v koupelně
• Nadčasový design koupelny s bezbariérovou sprchou a denním oknem
• Sanitární vybavení / armatury renomovaných značek Duravit a Hansgrohe




















