
Prodej domu 5+1 • 131 m² bez realitkyBahnhofstraße 36, , Bádensko-Württembersko
Bahnhofstraße 36, , Bádensko-WürttemberskoMHD 2 minuty pěšky • ParkováníPouze několik set metrů za vjezdem do části Oberrottweil obce Vogtsburg se nachází pozemek přiléhající k tiše bublajícímu potoku Krottenbach, kde se nyní realizuje novostavba se čtyřmi dvojdomky, tedy osmi samostatnými obytnými jednotkami.
Dvojdomky jsou ideální pro mladé rodiny, které touží po cenově dostupném vlastním bydlení v prestižní vinařské obci na malebném Kaiserstuhle. Nabízený "Dům 2" má pozemek o rozloze 197,07 m² a kromě samotné stavby nabízí dostatek místa pro terasu se zahradou, která zve k posezení s rodinou a přáteli i k dětským hrám.
Budovy budou postaveny v moderním ocelovo-dřevěném systému. To přináší hned několik výhod: nejprve se dosáhne udržitelného standardu KfW-40, díky čemuž mohou kupující těžit z výhodně zvýhodněných úrokových sazeb při financování. Navíc se zkracuje doba výstavby, neboť již vyrobené díly jsou prakticky dovezeny náklaďákem a následně zvednuty pomocí jeřábu.
To šetří náklady, což se odráží v dostupných kupních cenách. Navíc budou stavby oproti klasickým dřevěným domům běžných prefabrikovaných dodavatelů nesmírně odolné. Ocelová konstrukce je masivní a až za několik desetiletí, když bude třeba rekonstrukce, lze izolaci a dřevěné obklady snadno odstranit a nahradit novými.
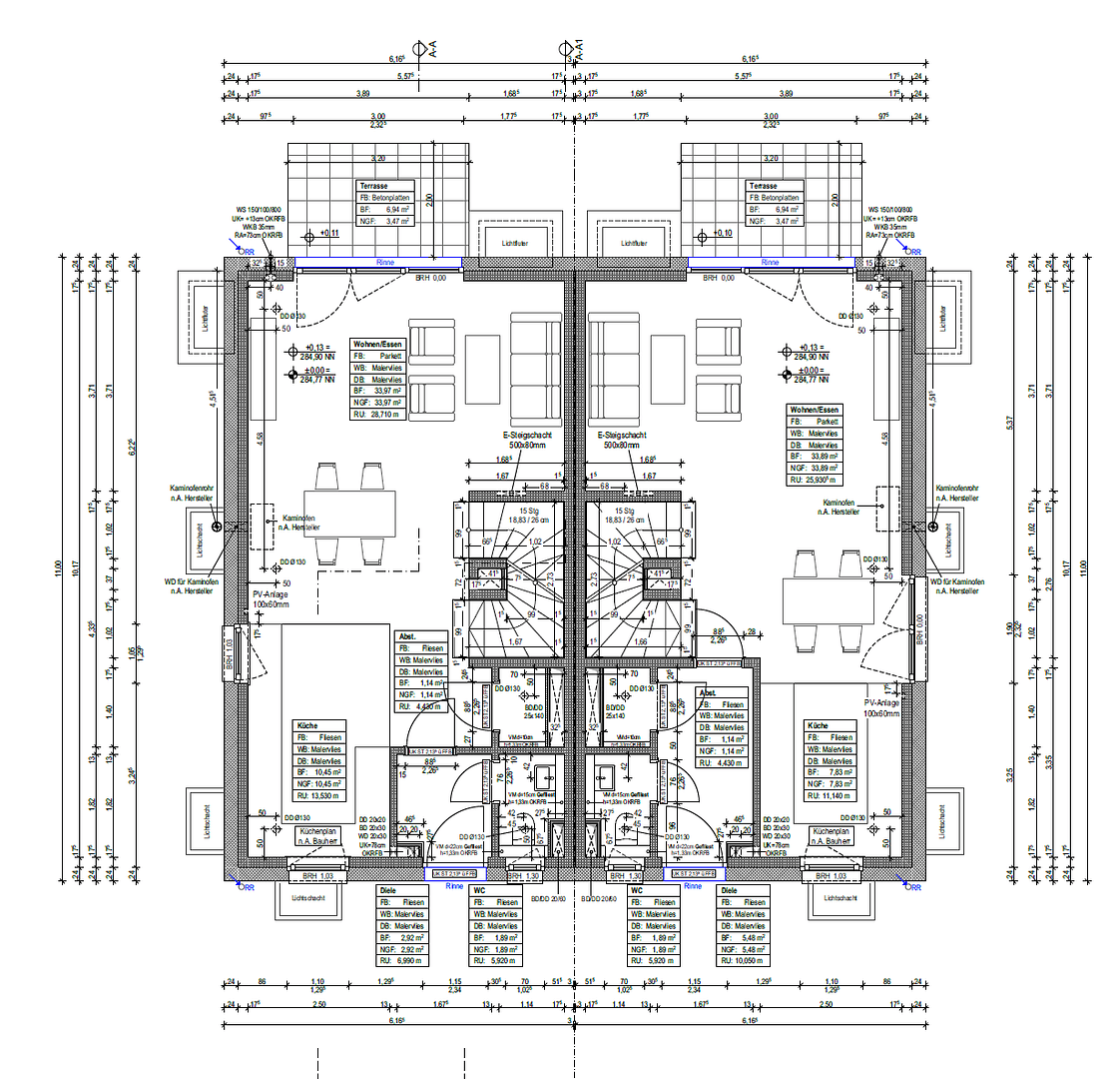
Všechny domy sdílejí společný vjezd do dvora. Volitelné carporty poskytují místo pro dvě vozidla, stejně jako pro kola, a zde lze také uskladnit odpadkové kontejnery. Ze široké haly, která zároveň slouží jako šatna, vstoupíte do svého domova. Na pravé straně se hned nachází toaleta pro hosty a úložný prostor pro domácí spotřebiče.
Přes dveře se dostanete přímo do srdce domu: přes více než 31 m² obytné plochy se rozprostírá impozantní obývací a jídelní prostor s útulným osvětlením díky do podlahy sahajícím oknům. Hned za rohem je otevřená kuchyně ve tvaru U. Díky své velikosti není žádná výmluva – zde může celá rodina pomáhat při vaření.
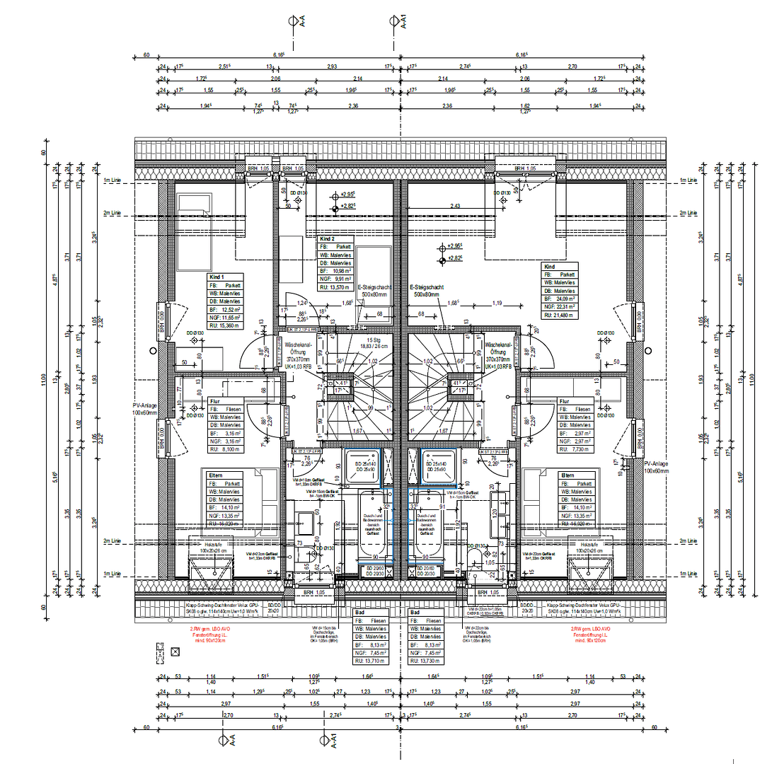
Po schodech se dostanete do podkroví. Zde naleznete tři zhruba stejně velké ložnice (9 m² až 11,5 m²). Prostornost místností zajišťují i přístupné půdorysy se vstupními okapnicemi přímo na úrovni podlahy. Všechny místnosti jsou přístupné širokým chodbou – zda je využijete jako dětské pokoje, kancelář nebo rodičovskou ložnici, záleží jen na vás.
Pro rodiče však zrekonstruované šikmé patro skrývá ještě jedno překvapení. Na této úrovni se navíc nachází koupelna s WC, umyvadlem, bezbariérovou sprchou a dokonce vanou, kde se po náročném dni můžete večer uvolnit. Velké okno zajišťuje dostatek denního světla a možnosti větrání.
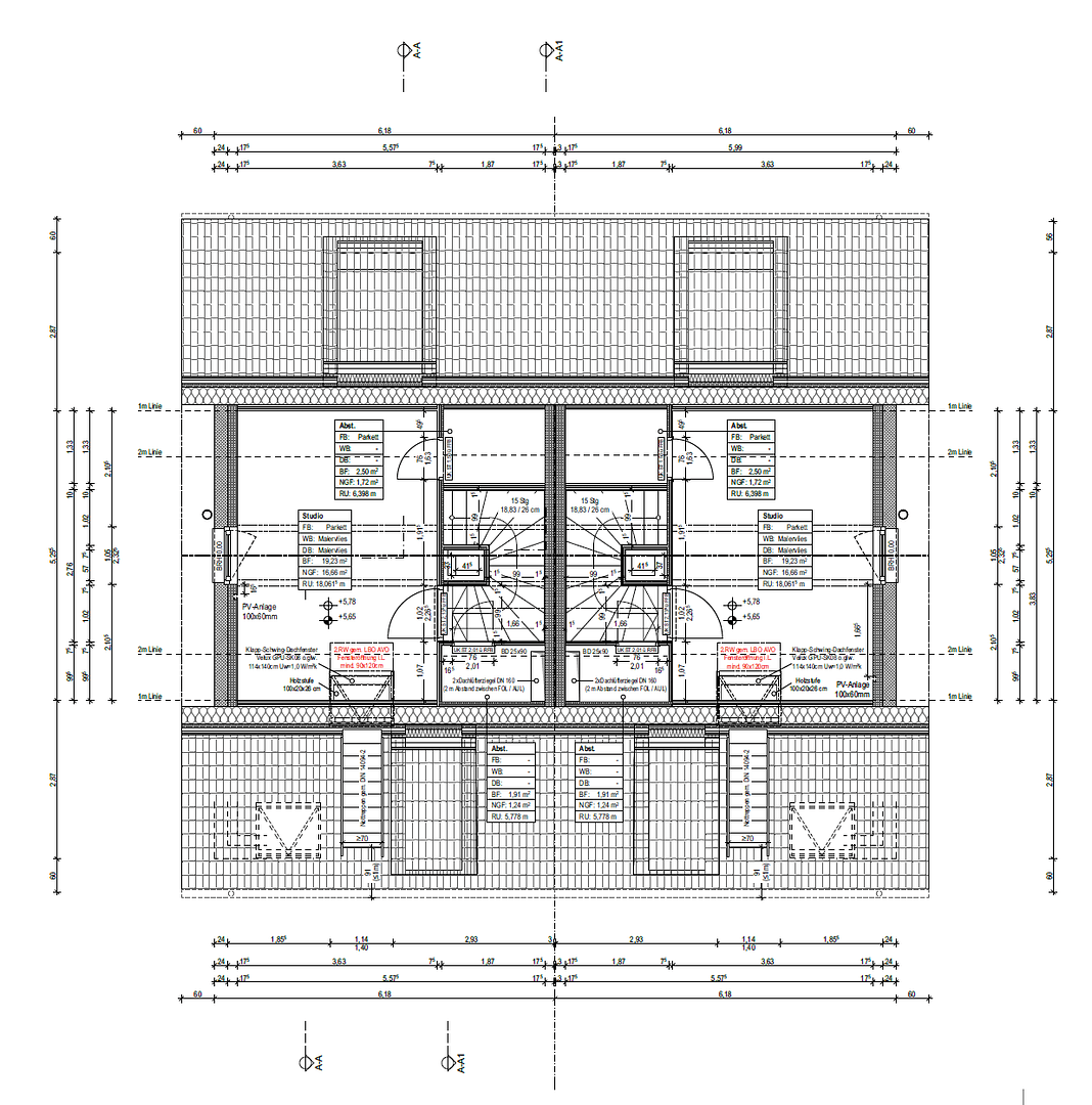
Dalšími schody se dostanete do již zmíněného zrekonstruovaného šikmého patra. Na více než 15 m² obytné plochy lze alternativně zařídit rodičovskou ložnici, jejíž využití je nakonec na vás.
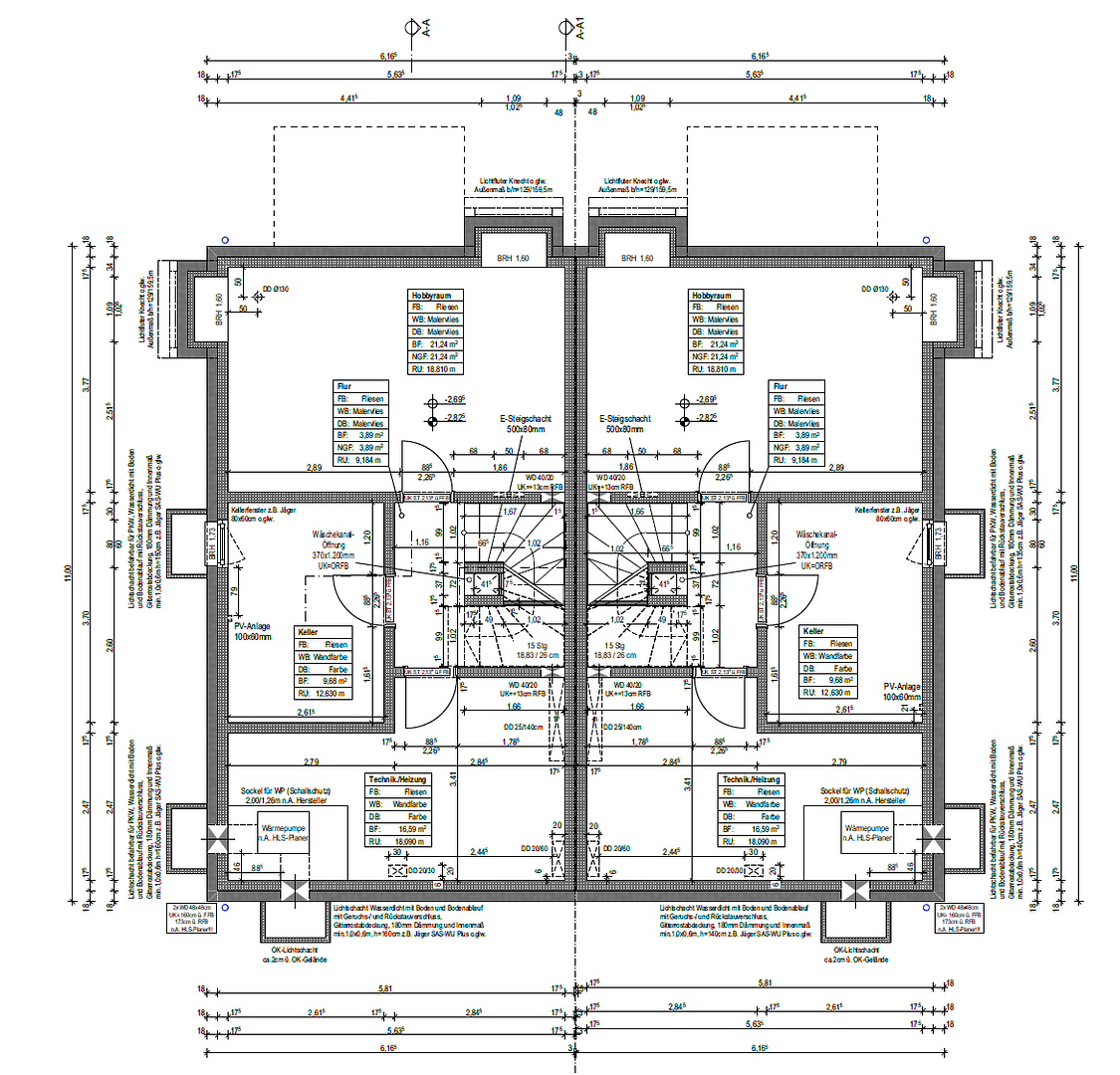
Závěrečná poznámka: Dvojdům je kompletně podsklepený. Kromě kotelny (s tepelným čerpadlem podporovaným fotovoltaickou elektrárnou na střeše) se zde nacházejí přípojky pro pračku a sušičku a samostatný sklepní pokoj, například na zahradní nářadí. Další místnost o rozloze přes 20 m² je vytápěná a má dostatek světla, takže se rovněž započítává do obytné plochy. Ideálně poslouží také jako hobby místnost.
Oberrottweil je obzvlášť oblíbenou částí mezi rodinami, přímo sousedící se středem obce Vogtsburg. S přímým výhledem na typické révy Kaiserstuhle se v okolí nachází řada vinařství a hostinců s renomovanou gastronomií.
Nachází se přímo v přírodě, takže volnočasové aktivity neskládají žádné kompromisy. Ať už jde o pěší túry, cyklistiku, odpočinek na dětských hřištích nebo návštěvu místního bazénu, zde si každý najde to své. Hudba, sport či společenské akce a spolky zažívají zde svůj rozkvět.
Obec zároveň disponuje vynikající infrastrukturou. Z novostavby je pěšky dosažitelné lékařské centrum, supermarket, banky a malá místní autobusová zastávka.
Mateřská škola i základní škola jsou v obci zastoupeny, na střední školu pak stačí do okolních obcí Kaiserstuhle. Nejbližším větším městem je Freiburk im Breisgau, který se nachází přibližně 20 km daleko.
• Udržitelná ocel-dřevěná výstavba v energeticky účinném standardu KfW 40
• Fasáda s tepelnoizolační omítkou s vápno-cementovým nátěrem
• Podlahové vytápění ve všech místnostech (vzduch-voda, tepelná čerpadla)
• Velká plastová okna (trojitě zasklená) s elektrickými hliníkovými žaluzie
• Centrální ventilační systém ve všech místnostech
• Moderní obytný koncept s otevřenou kuchyní
• Podlahové krytiny: parket v obytné a ložnicové oblasti a dlaždice 60x60 cm v koupelně
• Stěnové obklady: malířské vlákno v obytné a ložnicové oblasti a dlaždice 60x30 cm v koupelně
• Nadčasový design koupelny s bezbariérovou sprchou a oknem pro denní světlo
• Sanitární zařízení a armatury od renomovaných firem Duravit a Hansgrohe




















