
Prodej domu 5+1 • 131 m² bez realitkyBahnhofstraße 36, , Bádensko-Württembersko
Bahnhofstraße 36, , Bádensko-WürttemberskoMHD 2 minuty pěšky • ParkováníNur wenige hundert Meter hinter der Einfahrt zum Ortsteil Oberrottweil der Gemeinde Vogtsburg befindet sich das Grundstück angrenzend an den sanft plätschernden Krottenbach, wo nun dieses Neubauvorhaben mit insgesamt vier Doppelhäusern, also acht separaten Wohneinheiten realisiert wird.
Pár set metrů za vjezdem do části Oberrottweil obce Vogtsburg se nachází pozemek sousedící s klidně bublajícím potokem Krottenbach, kde bude nyní realizován tento novostavby projekt se čtyřmi dvojdomky, tedy osmi samostatnými obytnými jednotkami.
Die Doppelhaushälften eignen sich ideal für junge Familien, die sehnsüchtig nach einem bezahlbaren Eigenheim in dem renommierten Winzerort am schönen Kaiserstuhl Ausschau halten.
Dvojdomky jsou ideální pro mladé rodiny, které touží po dostupném vlastním bydlení v renomované vinařské obci u malebného Kaiserstulu.
Das hier angebotene "Haus 4" hat eine Grundstücksgröße von 202,44 m² und bieten damit neben dem Baukörper noch genügend Platz für eine Terrasse mit Garten, was zum Verweilen mit Familie und Freunden sowie Spielen für die Kinder einlädt.
Nabízený „Dům 4“ disponuje pozemkem o rozloze 202,44 m² a kromě samotné stavby nabízí dostatek místa pro terasu se zahradou, která zve k posedávání s rodinou a přáteli i ke hře pro děti.
Die Gebäude werden in einer modernen Stahl-Holzbauweise errichtet. Dies birgt gleich mehrere Vorteile: zunächst wird der nachhaltige KfW-40-Standard erreicht, wodurch Käufer von zinsvergünstigten Konditionen bei der Finanzierung profitieren.
Budovy budou postaveny v moderní ocelově-dřevěné technologii. To přináší hned několik výhod: nejprve je dosažen udržitelný standard KfW-40, díky čemuž kupující mohou těžit z výhodných úrokových podmínek při financování.
Hinzu kommt eine reduzierte Bauzeit, da die bereits im Werk produzierten Elemente praktisch mit dem LKW angeliefert und mit einem Kran aufgebaut werden.
Další výhodou je zkrácená doba výstavby, protože již v továrně vyrobené prvky jsou prakticky dopraveny nákladním vozem a sestaveny pomocí jeřábu.
Dies spart auch Kosten, was sich in den bezahlbaren Kaufpreisen widerspiegelt.
To také šetří náklady, což se odráží v dostupných kupních cenách.
Zu guter Letzt werden sich die Baukörper gerade im Vergleich zu den klassischen Holzhäusern der gängigen Fertighausanbietern einer enormen Langlebigkeit erfreuen.
Nakonec se stavby, zejména ve srovnání s klasickými dřevěnými domy běžných prefabrikovaných řešení, mohou pochlubit mimořádně dlouhou životností.
Das Stahlkonstrukt ist massiv. Wenn in vielen Jahrzehnten einmal eine Sanierung ansteht, können die Dämmung und deren Holzverkleidung einfach abgenommen und durch neue ersetzt werden.
Ocelová konstrukce je masivní. Když za mnoho desetiletí přijde čas na renovaci, lze izolaci i dřevěnou obložení snadno odstranit a vyměnit za nové.
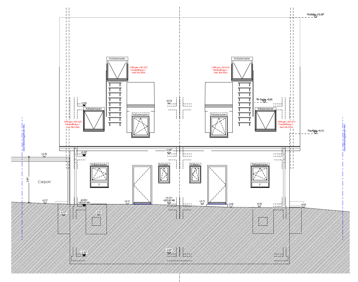
Alle Häuser teilen sich die gemeinsame Hofeinfahrt. Die optionalen Carports bieten Platz für zwei Fahrzeuge, auch Fahrräder und die Mülltonnen können hier untergestellt werden.
Všechny domy sdílejí společný příjezd do dvora. Volitelné carporty umožňují parkování pro dvě vozidla, ale lze tam umístit i kola a odpadkové koše.
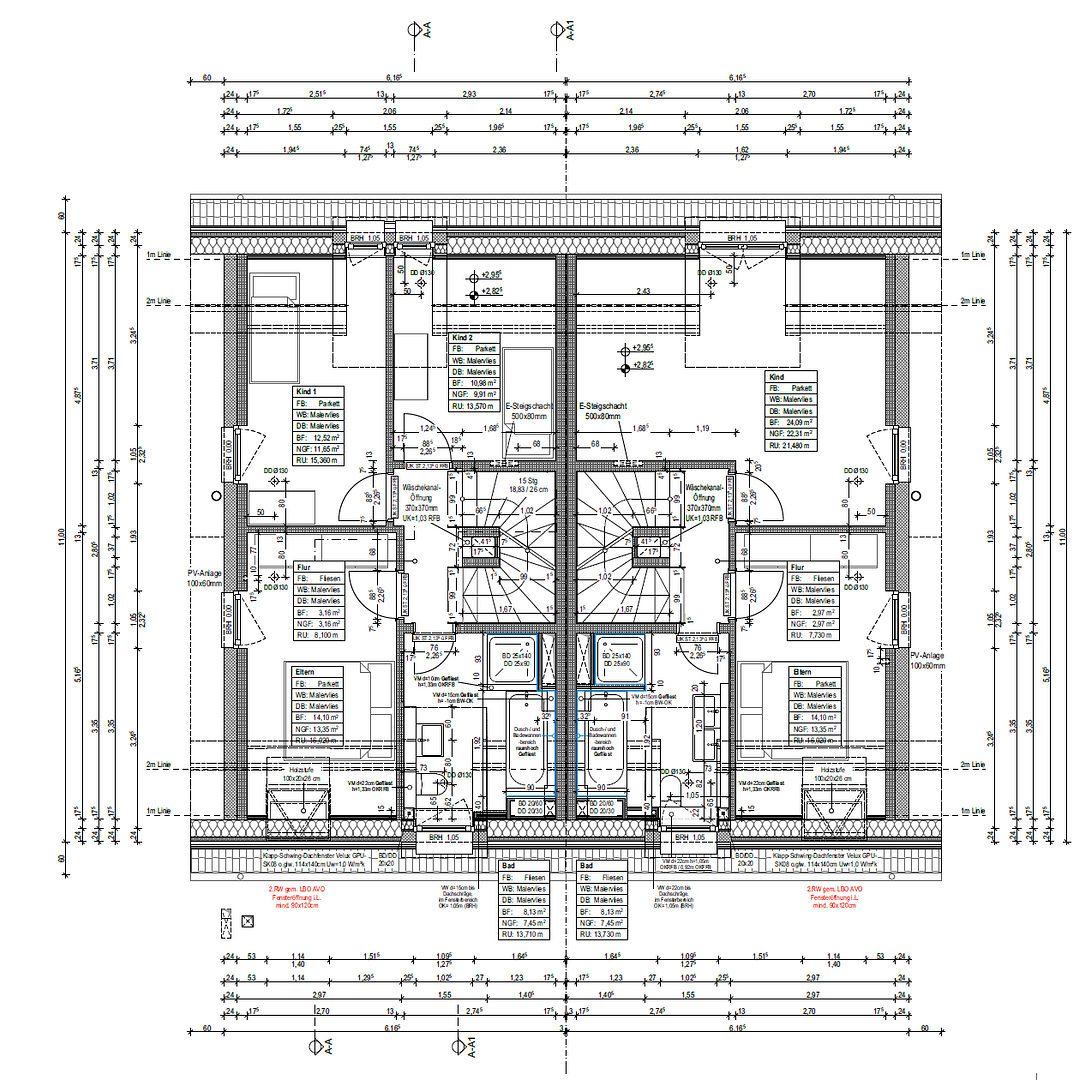
Über die breite Diele, welche gleichzeitig als Garderobe dient, gelangen Sie ins Innere Ihrer eigenen vier Wände.
Přes širokou chodbu, která zároveň slouží jako šatna, se dostanete do interiéru svého domova.
Rechter Hand befindet sich gleich das Gäste-WC und ein Abstellraum für Haushaltsgerätschaften.
Na pravé straně se hned nachází návštěvnické WC a komora pro domácí spotřebiče.
Durch eine Tür gehend gelangen Sie direkt ins Herzstück Ihres Zuhauses: auf über 31 qm Wohnfläche erstreckt sich der gigantische Wohn- und Essbereich, mit einer gemütlichen Helligkeit dank der bodentiefen Fensterfront.
Za dveřmi se dostanete přímo do srdce vašeho domova: přes 31 m² obytného prostoru se rozprostírá obrovská obývací a jídelna s útulnou světlostí díky stěnám od podlahy až ke stropu vybaveným okny.
Gleich um die Ecke befindet sich die offen gestaltete Küche in U-Form. Dank deren Größe gibt es keine Ausreden mehr – hier kann die ganze Familie beim Kochen mit anpacken.
Ihned za rohem se nachází otevřená kuchyně ve tvaru U. Díky své velikosti již není žádná výmluva – celá rodina se může zapojit do vaření.
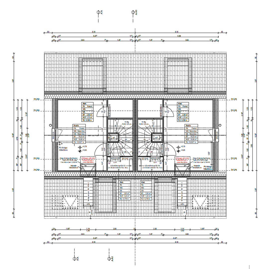
Über die Treppe gelangen Sie ins Dachgeschoss. Dort finden Sie drei ähnlich (9 qm - 11,5 qm) große Schlafzimmer vor.
Schody vás zavedou do podkroví. Zde najdete tři přibližně stejně velké (9 m² - 11,5 m²) ložnice.
Das großzügige Raumangebot wird durch die Verwendung ebenerdiger Gauben gewährleistet.
Prostornost místností je zajištěna použitím nízko položených okenních výčnělků.
Die Zimmer sind alle über den breiten Flur zugänglich, ob die Nutzung durch die Kinder, als Büro oder Elternschlafzimmer erfolgt, obliegt ihnen.
Do všech pokojů se lze dostat přes širokou chodbu; ať už slouží dětem, jako kancelář nebo rodičovská ložnice, rozhodnutí je na vás.
Für letztere hält der ausgebaute Dachspitz allerdings noch eine besondere Überraschung parat.
Pro ty, kdo si vyberou rodičovskou ložnici, však vybudovaný půdní prostor skrývá ještě jedno speciální překvapení.
Zusätzlich befindet sich auf dieser Etage noch das Badezimmer mit WC, Waschbecken, ebenerdiger Dusche und sogar einer Badewanne, wo es sich abends entspannen lässt, sollte der Tag mal wieder etwas stressiger verlaufen sein.
Navíc se na této úrovni nachází koupelna s WC, umyvadlem, bezbariérovou sprchou a dokonce i vanou, kde si můžete večer odpočinout, pokud byl den opět trochu náročný.
Ein großes Fenster sorgt für ausreichend Tageslicht und Lüftungsmöglichkeiten.
Velké okno zajišťuje dostatek denního světla a možnosti větrání.
Über eine weitere Treppe erreichen Sie den bereits angekündigten ausgebauten Dachspitz.
Dalšími schody se dostanete do již zmíněného zrekonstruovaného půdního prostoru.
Auf über 15 qm Wohnfläche kann alternativ das Elternschlafzimmer eingerichtet werden, die Verwendung obliegt am Ende ganz Ihnen.
S více než 15 m² obytného prostoru lze alternativně zařídit rodičovskou ložnici, přičemž způsob využití je nakonec zcela na vás.
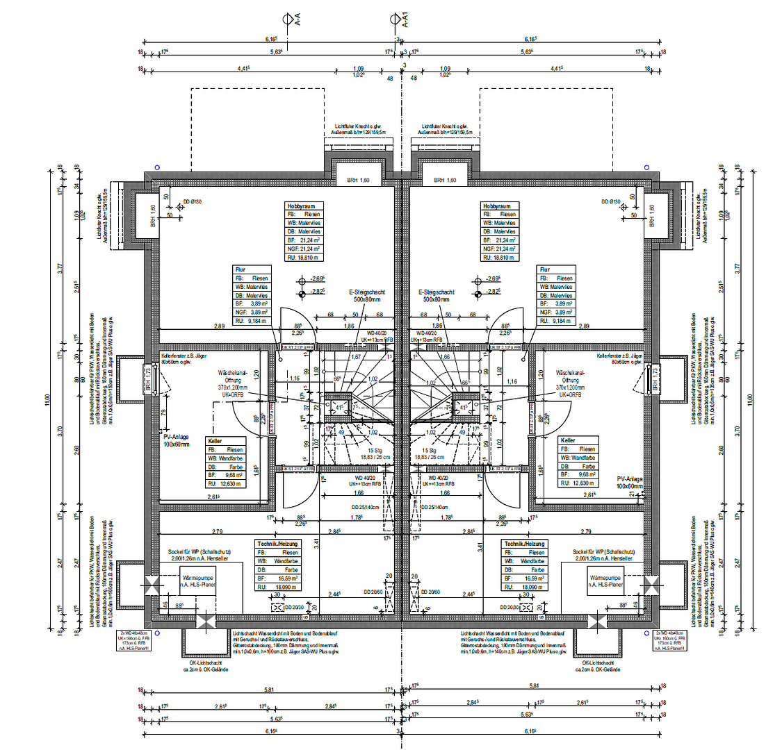
Abschließender Hinweis für Sie: Die Doppelhaushälfte ist vollständig unterkellert.
Závěrečná poznámka: Dvojdomov je kompletně s podkrovím/sklepem.
Neben dem Heizungsraum (Wärmepumpe unterstützt durch eine PV-Anlage auf dem Dach) finden Sie hier Anschlüsse für Waschmaschine und Trockner sowie einen separaten Kellerraum beispielsweise für Gartengerätschaften vor.
Kromě topné místnosti (tepelné čerpadlo podporované fotovoltaickou instalací na střeše) zde najdete také připojení pro pračku a sušičku a samostatný sklep, například určený pro zahradní nářadí.
Ein weiteres Zimmer mit über 20 qm ist beheizt und verfügt über ausreichend Lichteinfall, sodass es ebenso als Zimmer und mit zur Wohnfläche zählt. Es eignet sich ideal als Hobbyraum.
Další místnost o rozloze přes 20 m² je vytápěná a má dostatek přirozeného světla, takže se počítá jako obytný prostor. Je ideální například jako koníčková místnost.
Oberrottweil ist ein besonders bei Familien beliebter Ortsteil, direkt angrenzend an das Zentrum der Gemeinde Vogtsburg.
Oberrottweil je obzvlášť oblíbená část, zejména u rodin, a sousedí přímo se středem obce Vogtsburg.
Mit direktem Ausblick auf die für den Kaiserstuhl typischen Reben gibt es in der Nachbarschaft zahlreiche Weingüter und Gasthäuser mit renommierten Gastronomien.
S přímým výhledem na vinice typické pro Kaiserstuhl se v okolí nachází řada vinařství a hostinců s uznávanou gastronomií.
Direkt in der Natur gelegen, lässt das Freizeitangebot keine Wünsche offen.
Nacházející se přímo v přírodě, volnočasové aktivity zde opravdu nemají nic, na co by si člověk stěžoval.
Egal ob Wanderungen oder Radtouren, Verweilen auf Spielplätzen oder im örtlichen Schwimmbad, hier ist für jeden etwas dabei.
Ať už jde o pěší túry, cyklovýlety, odpočinek na dětských hřištích nebo v místním bazénu, zde si každý najde to své.
Ob ob Musik, Sport oder Narren, hier floriert das Vereinsleben.
Ať už hudba, sport nebo oslavy, zde kvetou spolky a komunitní život.
Demüber hinaus verfügt die Ortschaft ebenso über eine hervorragende Infrastruktur.
Navíc obec disponuje výbornou infrastrukturou.
Vom Neubauprojekt fußläufig erreichbar ist das Ärztezentrum, der Supermarkt sowie Banken und der kleine örtliche Busbahnhof.
Z novostavby je pěšky dosažitelné lékařské centrum, supermarket, banky a malá místní autobusová zastávka.
Sowohl Kindergarten als auch Grundschule sind in der Gemeinde vertreten, weiterführende Schulen gibt es dann in den umliegenden Kaiserstuhl-Gemeinden.
V obci jsou zastoupeny jak mateřská škola, tak základní škola, přičemž střední školy se nacházejí v okolních obcích Kaiserstulu.
Die nächste Großstadt ist Freiburg im Breisgau mit einer Entfernung von circa 20 km.
Nejbližší větší město je Freiberg im Breisgau, které je vzdálené přibližně 20 km.
- Nachhaltige Stahl-Holz-Bauweise im energieeffizienten KfW 40-Standard
- Udržitelná ocelově-dřevěná konstrukce dle energeticky účinného standardu KfW 40
- Fassade als Wärmedämmverbundsystem versehen mit Kalk-Zementputz
- Fasáda opatřená tepelně izolačním systémem s vápeno-cementovým omítkou
- Fußbodenheizung in allen Räumen (Luft-Wasser-Wärmepumpe)
- Podlahové topení ve všech místnostech (vzduch-voda tepelné čerpadlo)
- Große Kunststofffenster (3x verglast) mit elektrischen Aluminiumrollladen
- Velká plastová okna (trojitě zasklená) s elektrickými hliníkovými rolety
- Zentrales Lüftungssystem in allen Räumen
- Centrální ventilační systém ve všech místnostech
- Modern gestaltetes Wohnkonzept mit offener Küche
- Moderně navržený obytný koncept s otevřenou kuchyní
- Bodenbelag: Parkettboden im Wohn- und Schlafbereich und 60x60 cm Fliesen im Bad
- Podlahové krytiny: parketová podlaha v obytné a ložnicové části a dlaždice 60x60 cm v koupelně
- Wandbelag: Malervlies im Wohn- und Schlafbereich und 60x30 cm Fliesen im Bad
- Stěnová úprava: malířská textilie v obytné a ložnicové části a obklady 60x30 cm v koupelně
- Zeitlose Badgestaltung mit ebenerdiger Dusche und Tageslichtfenster
- Nadčasový design koupelny s bezbariérovou sprchou a oknem propouštějícím denní světlo
- Sanitärgegenstände / Armaturen der namhaften Firmen Duravit und Hansgrohe
- Sanitární zařízení / armatury renomovaných značek Duravit a Hansgrohe




















