
Prodej bytu 3+1 • 73 m² bez realitkyMünchen Maxvorstadt Bayern 80796
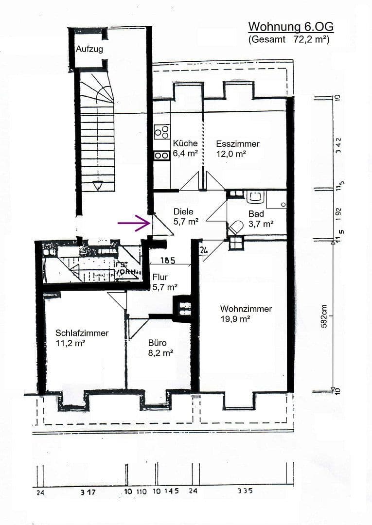
München Maxvorstadt Bayern 80796MHD 2 minuty pěšky • VýtahTento světlý byt v podkroví se 3 pokoji a čistou obytnou plochou 72,2 m² se nachází ve 6. nadzemním podlaží (s výtahem) udržovaného bytového domu v Mnichově, čtvrti Maxvorstadt, přímo u zastávky U-Bahn Josephsplatz (linka U2). K bytu náleží sklep a podkrovní sklep, které poskytují další úložný prostor.
Byt se nachází v centrální oblasti, přímo u stanice metra U2 (Josephsplatz). Před domem jezdí dvě autobusové linky. Mnichovské vysoké školy (LMU, TU, Hochschule München) a muzejní čtvrť jsou snadno dostupné MHD, pěšky nebo na kole. V přilehlé ulici Augustenstraße se nachází mnoho barů, kaváren a restaurací. Ačkoli byt nemá balkon, několik minut chůze od něj se nachází starý severní hřbitov, který obyvatelé využívají jako park. Také Anglická zahrada není daleko. Možnosti nákupu (pekařství, řeznictví, obchod s papírenským zbožím, supermarkety a drogerie) jsou k dispozici v bezprostřední blízkosti. Lékařské centrum a několik lékáren se rovněž nachází přímo u Josephsplatz; základní škola a střední škola jsou v bezprostřední blízkosti.
Byt je vybaven jídelnou, chodbou a kanceláří či dětským pokojem s bílými vestavěnými skříněmi. Všechny dveře jsou skleněné (ložnice a koupelna mají zasklení se zajištěnou ochranou soukromí). Vestavěná kuchyň je na míru a je vybavena mikrovlnnou troubou, varnou deskou, troubou, myčkou nádobí a vestavěnou ledničkou (vše od Siemens/Neff). Kuchyň a jídelna jsou otevřeně propojené a z obou místností je krásný výhled na kostel sv. Josefa (Josephskirche). V sousedním domě nabízí prádelna (s pračkou umístěnou v koupelně) možnost placeného využití sušiček, stejně jako služby čistírny a žehlení prádla. Lékařské centrum a několik lékáren se také nachází přímo u Josephsplatz.
Nemovitost je vhodná jak k vlastnímu bydlení, tak i jako investice, jelikož je pronájem velmi výhodný. Po dohodě může být byt zakoupen i plně zařízený.
Pro zlepšení energetické účinnosti budovy existuje plán rekonstrukce, který v prvním kroku zahrnuje opatření na zateplení střechy a sklepa a výměnu oken ve vstupní chodbě.
















