
Pronájem bytu 3+kk • 93 m² bez realitkyJaromíra Vejvody, Praha - Zbraslav
Máte o nabídku zájem?
Ušetřete 30 000 Kč na provizi a komunikujte se všemi majiteli.
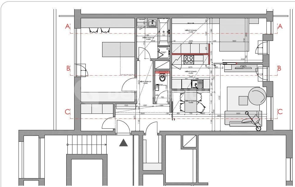
Nabízený byt má dispozici 3+kk + 2 prostorné komory + 2 terasy. Nachází se ve 4. patře bytového domu z roku 2005. Užitná plocha bytu je 93m2, obytná plocha bez teras 78m2. V domě je k dispozici prostorný výtah. Součástí bytu je garážové stání v podzemích garážích domu (přístupné výtahem). Detailní plánek místností je součástí přiložených fotografií (dispozice koupelny odpovídá fotografiím, na plánku je jinak).
V bytě zůstává plně vybavená kuchyně (indukční varná deska, myčka, mikrovlnná trouba, trouba, kombinovaná chladnička), pračka a velký počet prostorných vestavěných skříní. Mezi chodbou a obývacím pokojem jsou velké posuvné dveře. Na terase navazující na obývací pokoj a ložnici je k dispozici velká stahovací markýza a elektrická zásuvka. V oknech v ložnici a ve dveřích z obývacího pokoje na terasu jsou stahovací moskytiéry. Na druhé straně bytu jsou směrem na terasu dálkově ovládané venkovní rolety. Na zadní terase je zároveň přístřešek na kola.
V bytě, kromě dětského pokoje a komor je dřevěná plovoucí podlaha. V dětském pokoji je koberec, v komorách a koupelně dlažba. Koupelna je vybavena vanou a sprchovým koutem s termostatickou baterií a hlavovou sprchou. Celý dům má sdílené vytápění plynovým kotlem. Uvedené poplatky zahrnují služby spojené s bytem, garáží a elektřinu, možnost internetu od Vodafone (kabel).
Jde o velmi pěknou lokalitu v blízkosti nově zrekonstruovaného parku s výborným dopravním spojením (autem cca 5 minut na jižní okruh Prahy a Strakonickou, autobusy na Smíchovské nádraží, vlak na Kačerov). Autobusová zastávka cca 3 minuty pěšky, vlaková cca 10 minut autobusem. Těsně u Zbraslavi z jedné strany prochází cyklostezka podél Vltavy, z druhé strany cyklostezka podél Berounky. Samotná Zbraslav má veškerou občanskou vybavenost (tj. Základní škola, poliklinika, Lidl, Albert, restaurace apod.).
Byt bude dostupný cca od 1. dubna 2026.
Parametry nemovitosti
| Stáří | 10 - 30 let |
|---|---|
| Stav | Velmi dobrý |
| Dispozice | 3+kk |
| Podlaží | 4. podlaží z 5 |
| Vytápění | Ústřední |
| Vlastnictví | Osobní |
| Umístění | Klidná část |
| Cena za jednotku | 323 Kč / m2 |
| Dostupné od | 1. 4. 2026 |
|---|---|
| Konstrukce budovy | Cihla |
| Vybaveno | Částečně |
| Provedení | Standardní |
| Číslo inzerátu | 640348 |
| PENB | C - Úsporná |
| Užitná plocha | 93 m² |
Co tato nemovitost nabízí?
| Bezbariérový přístup | |
| MHD 2 minuty pěšky |
| Garáž | |
| Výtah | |
| Terasa 15 m² |
V okolí nemovitosti najdete
Máte o nabídku zájem?
Ušetřete 30 000 Kč na provizi a komunikujte se všemi majiteli.
Stále hledáte to pravé?
Nastavte si hlídacího psa. Nabídky vybrané na míru dostanete souhrnně 1× denně e-mailem. S Premium profilem máte k ruce hlídačů rovnou 5 a když se něco objeví, informují vás obratem.
















































