
Pronájem bytu 1+kk • 31 m² bez realitkyFořtova, Praha - Čimice
Fořtova, Praha - ČimiceMHD 3 minuty pěšky • Částečně vybaveno • Parkování • Sklep 6 m²Máte o nabídku zájem?
Ušetřete 15 500 Kč na provizi a komunikujte se všemi majiteli.
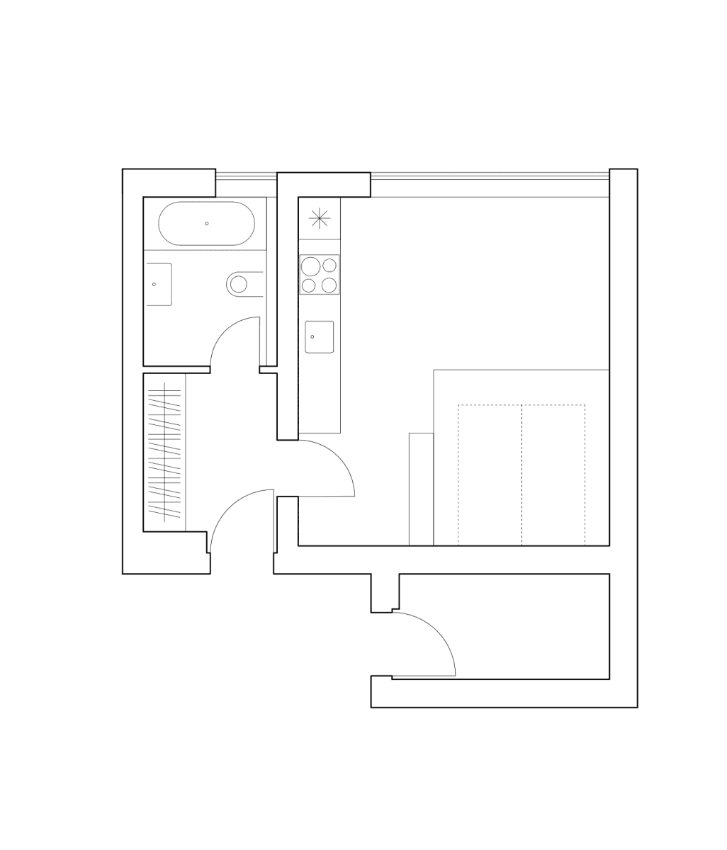
Pronajmu prostor k bydlení
+ je útulný a promyšlený: 31 m², rekuperace vzduchu,
+ má velkou vanu a okno v koupelně,
+ je tady myčka a pračka se sušičkou,
+ má věstavěné skříně a úložné prostory,
+ patří k němu 6m² sklep,
+ celý dům i jednotka jsou nekuřácké,
+ slunce vás ráno budit nebude,
+ možnost parkování na dvoře (+ 1.000,-Kč)
Nájemné činí 15.500,- Kč/měs. Záloha na elektro a vodu 2.000,-Kč/měs. Kauce 30.000-, Kč.
Parametry nemovitosti
| Stáří | Do 10 let |
|---|---|
| Stav | Novostavba |
| Dispozice | 1+kk |
| Provedení | Luxusní |
| Číslo inzerátu | 662002 |
| PENB | A - Mimořádně úsporná |
| Umístění | Klidná část |
| Cena za jednotku | 500 Kč / m2 |
| Dostupné od | 7. 7. 2025 |
|---|---|
| Konstrukce budovy | Smíšená |
| Vybaveno | Částečně |
| Vytápění | Ostatní |
| Vlastnictví | Osobní |
| Rekonstrukce | Kompletní |
| Užitná plocha | 31 m² |
Co tato nemovitost nabízí?
| Sklep 6 m² | |
| Parkování |
| MHD 3 minuty pěšky |
V okolí nemovitosti najdete
Máte o nabídku zájem?
Ušetřete 15 500 Kč na provizi a komunikujte se všemi majiteli.
Stále hledáte to pravé?
Nastavte si hlídacího psa. Nabídky vybrané na míru dostanete souhrnně 1× denně e-mailem. S Premium profilem máte k ruce hlídačů rovnou 5 a když se něco objeví, informují vás obratem.
























