
Inzerát již není v nabídce
Pronájem bytu 2+kk • 61 m² bez realitkyPatočkova, Praha - Břevnov
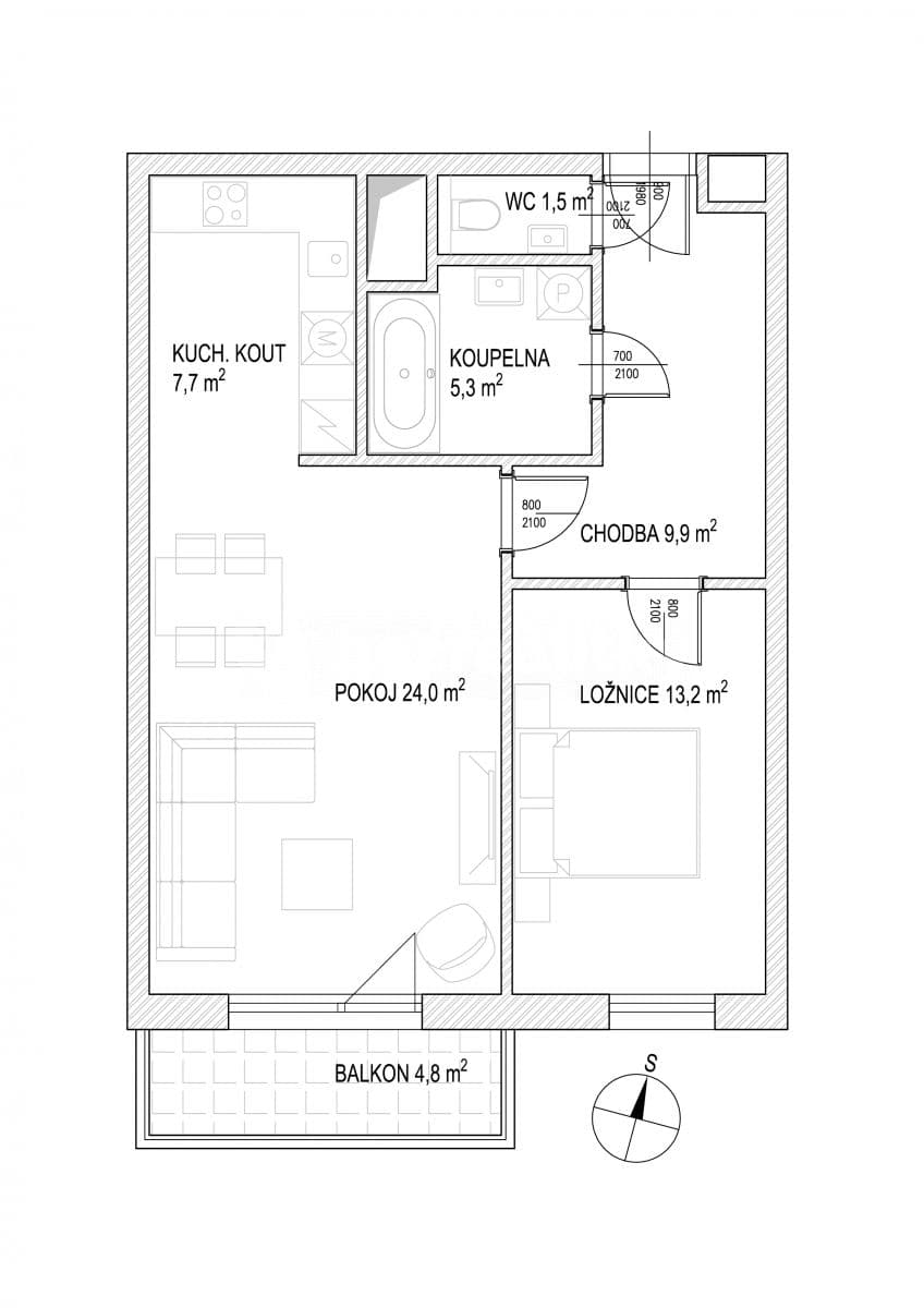
Patočkova, Praha - BřevnovMHD do minuty pěšky • Částečně vybaveno • Výtah • Garáž • Balkón 5 m² • Sklep 8 m²Pronajmu hezký, částečně zařízený (nábytek můžeme odvézt) byt s balkonem, ve 4. patře (5.NP) moderního domu (postaven r.2004) s výtahem. K bytu náleží příslušenství - parkovací stání v garáži a sklep 8m2. K dispozici je také místnost na kola / kočárky.
Dům je na třídě Patočkova, je orientovaný na jih do udržovaného vnitrobloku. Balkon je prostorný, okna jsou opatřena předokenními roletami. V okolí je plná občanská vybavenost (školy, pošta, restaurace, kavárny, obchody, lékaři, dětská hřiště), zastávka autobusu je přímo před domem, zastávka tramvaje 3min pěšky. Dům je v blízkosti Břevnovského kláštera, nedaleko Ladronky a obory Hvězda s možností sportovního vyžití.
K vybavení bytu patří kompletní kuchyňská linka vč. el. varné desky, trouby, myčky, lednice a digestoře, v případě zájmu je k dispozici pračka. Byt má samostatnou koupelnu s vanou a samostatné WC s umývadlem.
Byt je k dispozici ihned, POUZE PRO NEKUŘÁKY.
Odhad nákladů na bydlení při obsazenosti dvěma osobami: nájemné za byt vč. příslušenství (parkovací stání v garáži) 23.000,- + zálohy na služby (topení, voda studená i teplá, odvoz odpadu, osvětlení a úklid spol. prostor, provoz výtahu apod.) 5.150 + náklady na elektřinu (odběr převedeme na nájemce) 1.250 = celkem 29.400 (odhad závislý na spotřebě nájemce - stanoveno podle vyúčtování za r.2024
Parametry nemovitosti
| Stáří | 10 - 30 let |
|---|---|
| Stav | Velmi dobrý |
| Dispozice | 2+kk |
| Podlaží | 5. podlaží z 6 |
| Číslo inzerátu | 683284 |
| PENB | C - Úsporná |
| Užitná plocha | 61 m² |
| Dostupné od | 1. 11. 2025 |
|---|---|
| Konstrukce budovy | Cihla |
| Vybaveno | Částečně |
| Provedení | Standardní |
| Vlastnictví | Osobní |
| Umístění | Klidná část |
| Cena za jednotku | 377 Kč / m2 |
Co tato nemovitost nabízí?
| Balkón 5 m² | |
| Garáž | |
| Výtah |
| Sklep 8 m² | |
| MHD 0 minut pěšky |
V okolí nemovitosti najdete
Stále hledáte to pravé?
Nastavte si hlídacího psa. Nabídky vybrané na míru dostanete souhrnně 1× denně e-mailem. S Premium profilem máte k ruce hlídačů rovnou 5 a když se něco objeví, informují vás obratem.
























