Prodej nebytového prostoru • 157 m² bez realitkyMánesova, Praha - Vinohrady
Mánesova, Praha - VinohradyMHD 2 minuty pěškyTato nemovitost již od 85 183 Kč měsíčně s roční úrokovou sazbou od 4,19 %.
Prodej komerčního prostoru – ideální investice
Prodám atraktivní komerční prostor. Perfektní pro showroom, wellness, fitness nebo kancelář, prodejnu, vinotéku, pilates studio, pivní lázně, internetový obchod a další.
- Možnost okamžitého výnosu – prostor pronajatý
- Flexibilní využití – připraveno pro váš vlastní projekt
- Výhodná investice – jistý příjem nebo vlastní podnikání.
Atraktivní komerční prostor je v současné době pronajaty jako masážní salon s měsíční výpovědní lhůtou.
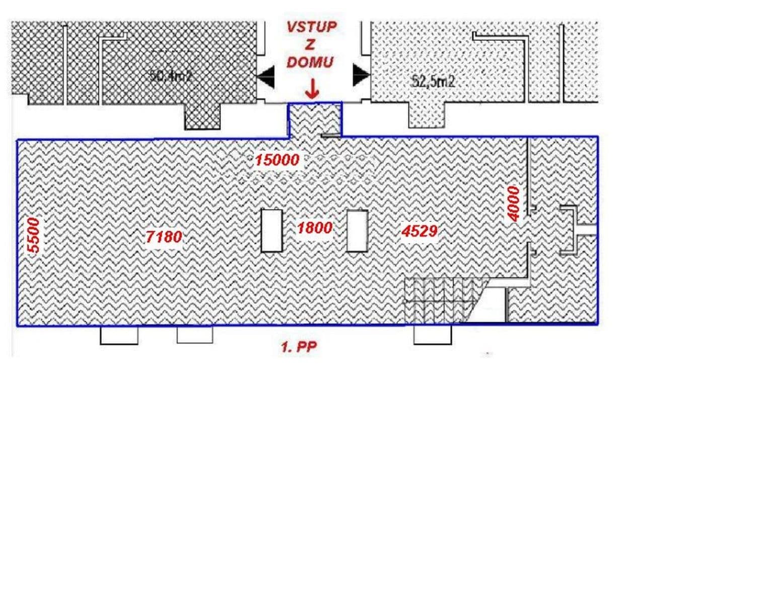
Obchodní prostor o ploše 157,6 m2 se situován v 1. PP a 2.PP budovy.
Vstup je přímo z ulice po schodišti, které vede do hlavní místnosti.
Dispozice se skládá z:
- v 1.PP.: 2x místnosti prodejny, předsíň, WC s předsíňkou a úklidem, technickou místnosti pro kotel;
- v 2.PP.: chodba se schodištěm do 1.PP., vstup z prostoru hlavního schodiště, 3x neprůchozí místnosti, 2x sklad, 2x WC s předsíní.
Topení a ohřev teplé vody vlastním plynovým kotlem.
Nemovitost je v atraktivní lokalitě Prahy 2, Vinohrady, která nabízí veškerou potřebnou občanskou vybavenost, pěší dostupnost MHD a všechny výhody podnikání v klidné části centra města. Dalším velkým plusem je výborná dopravní dostupnost – stanice metra Muzeum je vzdálena 5 minut chůze.
Funguje, vydělává a čeká na nového majitele.
Možnost koupě s nájemcem nebo bez – podle vašich potřeb.
Čisté papíry, vstup z ulice, výborná dostupnost.
Skvělé místo, které si zaslouží nové využití.
RK nevolat
Parametry nemovitosti
| Dostupné od | 2. 9. 2025 | 
|---|---|
| Vybaveno | Nevybaveno | 
| Vlastnictví | Osobní | 
| Umístění | Klidná část | 
| Cena za jednotku | 138 854 Kč / m2 | 
| Stav | Velmi dobrý | 
|---|---|
| Číslo inzerátu | 784230 | 
| PENB | G - Mimořádně nehospodárná | 
| Plocha nebytového prostoru | 157 m² | 
Co tato nemovitost nabízí?
| MHD 2 minuty pěšky | 
V okolí nemovitosti najdete
Tato nemovitost již od 85 183 Kč měsíčně s roční úrokovou sazbou od 4,19 %.
Stále hledáte to pravé?
Nastavte si hlídacího psa. Nabídky vybrané na míru dostanete souhrnně 1× denně e-mailem. S Premium profilem máte k ruce hlídačů rovnou 5 a když se něco objeví, informují vás obratem.










