
Pronájem bytu 3+kk • 69 m² bez realitkyPraha - Michle
Praha - MichleMHD 4 minuty pěšky • Vybaveno • Výtah • Sklep 1,5 m²Vyžadováno pojištění odpovědnostiVyžadováno ověření bezdlužnostiMáte o nabídku zájem?
Ušetřete 28 000 Kč na provizi a komunikujte se všemi majiteli.
Pronájem bytu 3+1, OV, 69 m²- Bítovská, Praha – Michle
Nabízím k pronájmu prostorný a světlý byt 5 minut od metra Budějovická, byt je po kompletní rekonstrukci s užitnou plochou 69 m² v klidné lokalitě Prahy 4 - Michle. Byt se nachází ve třetím patře revitalizovaného panelového domu s výtahem.
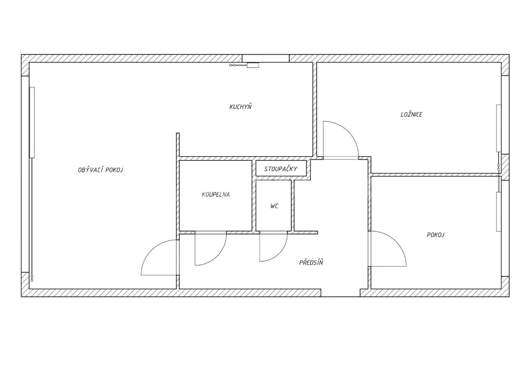
Dispozice bytu je vhodná pro pár, studenty i rodinu - dva samostatné pokoje jsou přístupné z předsíně, kuchyň je spojena s obývacím pokojem a jídelnou, což vytváří velký a vzdušný prostor. Kuchyně je vybavená všemi nezbytnými spotřebiči - elektrickou troubou, plynovým sporákem, lednicí s mrazákem a mikrovlnnou troubou. Koupelna s praktickým sprchovým koutem/vanou je oddělená od toalety. K bytu náleží komora, která je umístěná na chodbě proti hlavním dveřím, která slouží pro uložení větších věcí.
Vybavení bytu je na domluvě, chceme tam nechat veškerý nábytek, ale pokud bude potřeba, můžeme vymyslet alternativní řešení.
Byt se nachází pouhých 450 metrů od stanice metra „C“ Budějovická nebo 900 metrů od stanice metra ,,C“ Kačerov a dalších autobusových spojů, což usnadňuje rychlé spojení do centra města i dalších částí. Doprava autem je také pohodlná díky blízkosti jižní spojky i díky možnosti parkování přímo před domem (s parkovacím oprávněním na P4). V blízkosti se nachází kompletní občanská vybavenost včetně základní školky a školy v Bítovské ulici, obchodního centra DBK, polikliniky, úřadu městské části Praha 4, bank a řadou dalších služeb pro pohodlný život.
Cena nájmu: 28000,- Kč + 6000,- Kč poplatky za služby pro dvě osoby (poplatky za vodu a energie podle skutečné spotřeby – zúčtování je jednou za rok, doplácí se nedoplatky nebo proplácí přeplatky. Záleží na počtu osob.)
Kauce 60 000,- Kč.
Jednotka je připravená k nastěhování od 1.2.2026 pronájem je na dobu určitou a to na 1 rok s možností prodloužení smlouvy.
Byt opouštíme kvůli cestování, vše je na domluvě. Ideálně bez domácích mazlíčků.
Pro více informací ohledně této nemovitosti nebo domluvení prohlídky mě neváhejte kontaktovat.
Parametry nemovitosti
| Dostupné od | 1. 2. 2026 |
|---|---|
| Konstrukce budovy | Panel |
| Vybaveno | Vybaveno |
| Provedení | Standardní |
| Vlastnictví | Osobní |
| Rekonstrukce | Kompletní |
| Užitná plocha | 69 m² |
| Stav | Velmi dobrý |
|---|---|
| Dispozice | 3+kk |
| Podlaží | 4. podlaží z 7 |
| Číslo inzerátu | 811939 |
| PENB | C - Úsporná |
| Umístění | Klidná část |
| Cena za jednotku | 406 Kč / m2 |
Co tato nemovitost nabízí?
| Sklep 1,5 m² | |
| Výtah |
| MHD 4 minuty pěšky |
V okolí nemovitosti najdete
Máte o nabídku zájem?
Ušetřete 28 000 Kč na provizi a komunikujte se všemi majiteli.
Stále hledáte to pravé?
Nastavte si hlídacího psa. Nabídky vybrané na míru dostanete souhrnně 1× denně e-mailem. S Premium profilem máte k ruce hlídačů rovnou 5 a když se něco objeví, informují vás obratem.























