
Pronájem bytu 3+kk • 61 m² bez realitkyNa Míčánkách, Praha - Vršovice
Máte o nabídku zájem?
Ušetřete 26 000 Kč na provizi a komunikujte se všemi majiteli.
Krásný kompletně zrekonstruovaný byt 3+kk o rozloze 61 m2 k dlouhodobému pronájmu.
Byt se nachází v malebné a klidné lokalitě v secesním domě ve Vršovicích. Výborná dopravní dostupnost, blízko na metro A Flora (cca. 800 m), bus na nám. Míru (zastávka za rohem). V blízkosti bytu je občanská vybavenost, městská zeleň, sportovní vyžití, školka a škola, OC Eden.
Byt je vybavený novou kuchyní s myčkou, lednicí a mikrovlnkou. Koupelna má moderní design se sprchovým koutem a pračkou. Byt je dále vybaven stylovým jídelním stolem a židlemi.
Byt je po kompletní rekonstrukci. Rekonstrukce zahrnovala nový systém topení, nové elektro rozvody, nové datové rozvody, nové rozvody vody a odpadu, štuky na stěnách, výmalba, nová kuchyně, nová koupelna a wc, obklady a dlažba. Při rekonstrukci byly citlivě zachovány původní prvky secesní architektury – vysoké stropy, špaletová okna, původní dveře. V domě je možnost připojení internetu přes rozvedené optické kabely.
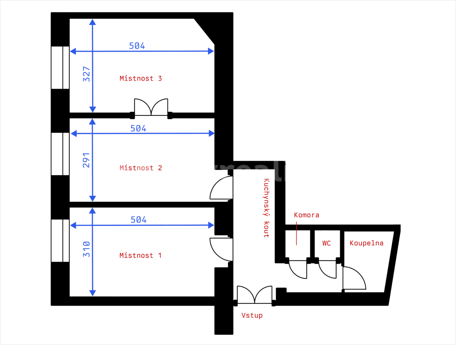
Dispozice bytu je uvedená ve fotogalerii, byt má výhodnou dispozici, vhodnou jak pro jednotlivce, tak pro rodinu. Byt má tři samostatné pokoje z toho jenom jeden průchozí, kuchyň je oddělená. Všechna okna vedou na ulici, kde jsou krásné vzrostlé stromy.
Parametry nemovitosti
| Stáří | Nad 50 let |
|---|---|
| Stav | Velmi dobrý |
| Dispozice | 3+kk |
| Podlaží | 2. podlaží z 6 |
| Vytápění | Elektrické |
| Vlastnictví | Osobní |
| Rekonstrukce | Kompletní |
| Užitná plocha | 61 m² |
| Dostupné od | 4. 4. 2024 |
|---|---|
| Konstrukce budovy | Cihla |
| Vybaveno | Částečně |
| Provedení | Luxusní |
| Číslo inzerátu | 834625 |
| PENB | E - Nehospodárná |
| Umístění | Klidná část |
| Cena za jednotku | 426 Kč / m2 |
Co tato nemovitost nabízí?
| MHD 1 minuta pěšky |
| Výtah |
V okolí nemovitosti najdete
Máte o nabídku zájem?
Ušetřete 26 000 Kč na provizi a komunikujte se všemi majiteli.
Stále hledáte to pravé?
Nastavte si hlídacího psa. Nabídky vybrané na míru dostanete souhrnně 1× denně e-mailem. S Premium profilem máte k ruce hlídačů rovnou 5 a když se něco objeví, informují vás obratem.























