
Prodej bytu 3+kk • 66 m² bez realitkyŽiželická, Praha - Újezd nad Lesy
Žiželická, Praha - Újezd nad LesyČástečně vybaveno • Parkování • Sklep 2,4 m² • Lodžie 5,5 m²Využít program Bydlím hned, koupím později
Nabízím k prodeji atypický byt 3+kk o celkové ploše 72 m², umístěný v 4. patře zděné nástavby zrevitalizovaného a velmi klidného menšího domu. Byt zaujme prostorným obývacím pokojem s kuchyňským koutem a francouzským oknem se vstupem na lodžii. Díky poloze v posledním patře nabízí navíc vlastní půdní prostor, který je jeho velkým benefitem. Půda je přístupná přímo z bytu a poskytuje komfortní úložné prostory pro umístění sezónních věcí či hobby vybavení. I díky tomu je v bytě mimořádný klid a soukromí. Francouzské okno orientované na JV vnáší do bytu rozptýlené denní světlo a příjemné klima.
Vytápění je řešeno radiátory, rozvody jsou v mědi, do kuchyně je zavedený plyn a ve dvou pokojích a na chodbě je dubová podlaha.
Dům je bez výtahu, má vlastní plynovou kotelnu, je zateplený, průběžně udržovaný a vybavený zabezpečeným vstupem s kamerovým systémem.
.
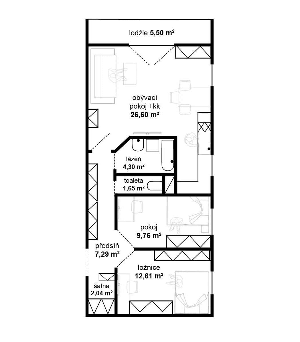
Dispozice bytu
• obývací pokoj + kuchyňský kout (26,60 m²)
• ložnice (12,61 m²)
• pokoj (9,76 m²)
• chodba (7,29 m²)
• šatna (2,04 m²)
• koupelna (4,30 m²)
• samostatné WC (1,65 m²)
• sklep (2 m²)
• lodžie (5,50 m²)
------------------------------
+ vlastní půdní prostor (12m²+)
------------------------------
.
Lokalita
Dům se nachází v klidné a bezpečné části sídliště Rohožník, které umožňuje každodenní kontakt s přírodou. V okolí je výjimečné množství menších hřišť a sportovišť, vč. pumptracku, lanovky, venkovní posilovny nebo Rákosníčkova hřiště.
Do přírody je to doslova pár kroků, skvělé pro běh, relax nebo procházky se psem. Kilometry tras najdete ať už v přírodním parku Škvorecká obora/Králičina nebo v Klánovickém lesoparku. Cyklotrasa A25 vás dovede až do centra města.
.
Dopravní dostupnost
Praktické spojení: kyvadlová doprava na vlak (S1, S2, S61), autobusy k metru (A, B), carsharing Car4Way, nabíjecí stanice pro elektromobily, bezproblémové parkování bez zón. Dokončení přeložky 1/12 v roce 2027 zlepší spojení do centra.
.
Občanská vybavenost
Přímo na sídlišti: obchody, školka, zdravotnické středisko, restaurace. V Újezdě nad Lesy: lesní školka, ZŠ, supermarkety, městský úřad a další služby.
Plánovaná revitalizace Rohožníku (studie z r. 2022) činí tuto nabídku velmi perspektivní investicí.
O studii: https://www.praha21.cz/aktuality/8070-budoucnost-verejnych-prostranstvi-sidliste-rohoznik
Realitní kanceláře prosím nevolat.
.
.
.
„Pro ty, kteří vědí...“
Parametry nemovitosti
| Stáří | 10 - 30 let |
|---|---|
| Stav | Velmi dobrý |
| Dispozice | 3+kk |
| Podlaží | 5. podlaží z 5 |
| Číslo inzerátu | 883848 |
| PENB | C - Úsporná |
| Užitná plocha | 66 m² |
| Cena za jednotku | 110 455 Kč / m2 |
| Dostupné od | 1. 3. 2026 |
|---|---|
| Konstrukce budovy | Cihla |
| Vybaveno | Částečně |
| Vytápění | Ústřední |
| Vlastnictví | Osobní |
| Umístění | Sídliště |
| Rizika | Prověřit » |
Co tato nemovitost nabízí?
| Sklep 2,4 m² | |
| Lodžie 5,5 m² |
| Parkování |
V okolí nemovitosti najdete
Využít program Bydlím hned, koupím později
Stále hledáte to pravé?
Nastavte si hlídacího psa. Nabídky vybrané na míru dostanete souhrnně 1× denně e-mailem. S Premium profilem máte k ruce hlídačů rovnou 5 a když se něco objeví, informují vás obratem.
























