
Prodej bytu 3+1 • 55 m² bez realitkyBohušovická, Praha - Prosek
Bohušovická, Praha - ProsekČástečně vybaveno • Sklep 1,5 m²Využít program Bydlím hned, koupím později
Po převodu ihned volný byt! Slunné 3+kk, 55 m2, obklopené zelení v žádané lokalitě Proseku, se vyznačuje velmi dobrým stavem a částečnou vybaveností, což umožňuje pohodlné a rychlé nastěhování bez nutnosti dalších úprav. Byt se nachází v družstevním vlastnictví a je strategicky umístěn v budově pouze 3 minuty od metra.
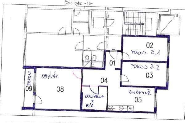
Výhodou jsou nízké poplatky do FO (jen 400,- Kč) z důvodu příjmů družstva ze dvou bytů, které vlastní. Dům je zateplený, má nové stoupačky, plastová okna, vchodové dveře a otevírací systém. Byt má prostorný obývací pokoj (17 m2), dvě ložnice (13 a 10 m2), kuchyň (5,5 m2), která je nyní zařízená kuchyňskou linkou s plynovou troubou a varnou deskou. V ložnicích jsou šatní skříně. V koupelně vana, WC samostatně. Podlahové krytiny plovoucí podlaha, dlažba, v kuchyni PVC. K bytu patří komora na chodbě. Byt nemá lodžii. Možnost využití kočárkárny v přízemí domu. Žádaná lokalita s výbornou dostupností metra i busu, s veškerou občanskou vybaveností v přímém okolí (školka, škola, obchody, lékař, banky), za domem dětské hřiště, dostatek zeleně. Parkování u domu.
Pro bližší informace a sjednání prohlídky mě prosím kontaktujte prostřednictvím zprávy, ozvu se zpět.
Parametry nemovitosti
Dostupné od | 7. 7. 2025 |
---|---|
Konstrukce budovy | Panel |
Vybaveno | Částečně |
Vytápění | Ústřední |
Vlastnictví | Družstevní |
Umístění | Klidná část |
Cena za jednotku | 112 364 Kč / m2 |
Stav | Velmi dobrý |
---|---|
Dispozice | 3+1 |
Podlaží | 4. podlaží z 4 |
Číslo inzerátu | 921951 |
PENB | G - Mimořádně nehospodárná |
Užitná plocha | 55 m² |
Co tato nemovitost nabízí?
Sklep 1,5 m² |
V okolí nemovitosti najdete
Využít program Bydlím hned, koupím později
Stále hledáte to pravé?
Nastavte si hlídacího psa. Nabídky vybrané na míru dostanete souhrnně 1× denně e-mailem. S Premium profilem máte k ruce hlídačů rovnou 5 a když se něco objeví, informují vás obratem.