
Prodej bytu 3+1 • 53 m² bez realitkyNa Malovance, Praha - Střešovice
Na Malovance, Praha - StřešoviceVybaveno • Výtah • Parkování • Balkón 2 m² • Sklep 3 m²Využít program Bydlím hned, koupím později
Prodej bytu 3+1 (53 m²) s balkonem v prestižní lokalitě Praha 6 – Střešovice
Přímý majitel nabízí k prodeji byt v osobním vlastnictví o dispozici 3+1 (původně 2+1) a užitné ploše 53 m², umístěný ve 2. nadzemním podlaží pečlivě udržovaného cihlového domu s výtahem. Nachází se v jedné z nejžádanějších částí Prahy – Střešovicích, jen pár kroků od Strahovského kláštera.
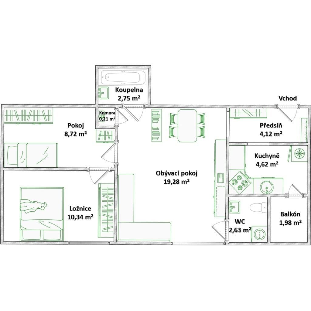
Byt disponuje praktickým uspořádáním – najdete zde prostorný obývací pokoj, kuchyň a ložnici, která byla rozdělena lehkou příčkou. Tím vznikl další pokoj, vhodný například jako dětský pokoj, pracovna nebo šatna. Tento průchozí pokoj je bez okna. Příčku lze však kdykoli snadno odstranit a obnovit původní dispozici 2+1. Součástí bytu je také koupelna, samostatná toaleta a komora. Balkon a severně orientovaná okna zajišťují příjemné klima i během letních měsíců.
V bytě jsou plastová okna s výbornou zvukovou izolací, plovoucí podlahy a plynové vytápění vlastním kondenzačním kotlem s dálkovým ovládáním, pravidelně servisovaným.
K bytu náleží i právo užívání společné zahrady ve vnitrobloku, jež poskytuje ideální místo k relaxaci a grilování. Součástí prodeje je také sklepní kóje o velikosti 3 m² v suterénu domu. Dům je ve velmi dobrém technickém stavu, SVJ hospodaří s vysokou finanční rezervou. Příspěvek do fondu oprav spolu s poplatky na zajištění společného chodu nemovitosti (odvoz odpadu, společná elektřina, úklid, pojištění, apod.) cca 1400 Kč, náklady za energie (voda, elektřina, plyn) cca 5000 Kč v závislosti na počtu osob. Hypoteční financování je možné. Cena je konečná zahrnující komplexní právní služby.
Dům prošel v roce 2012 kompletní rekonstrukcí včetně zateplení, což přispívá k nižším provozním nákladům a pohodlnému bydlení. Vstupní dveře do bytu byly renovovány v roce 2023.
________________________________________
Lokalita s geniem loci
Střešovice nabízejí kompletní občanskou vybavenost, výbornou dopravní dostupnost a dostatek zeleně pro sport i odpočinek – to vše činí z tohoto bytu jak skvělou investiční příležitost, tak i ideální místo pro vlastní bydlení. V docházkové vzdálenosti najdete:
• Strahovský a Břevnovský klášter, Pražský hrad
• Park Ladronka, Oboru Hvězda, koupaliště Petynka, bazén Strahov
• FN Motol, Vojenskou nemocnici a polikliniku
• Restaurace, supermarkety, bary
• Mateřské a základní školy, dětská hřiště
Tramvajová zastávka je vzdálena 3 minuty chůze, autobusová jen 1 minutu. Na metro (Hradčanská, Malostranská, Dejvická) se dostanete pohodlně za 5–10 minut.
________________________________________
Podmínky prodeje
Majitel upřednostní kupujícího, který umožní delší termín vystěhování (alespoň 3 měsíce) z důvodu plánovaného pořízení nové nemovitosti. Prohlídky jsou možné po předchozí domluvě. V případě jakýchkoliv dotazů mne prosím neváhejte kontaktovat. Realitní kanceláře a zprostředkovatelé, prosím, nevolejte.
Parametry nemovitosti
| Dostupné od | 1. 1. 2026 |
|---|---|
| Konstrukce budovy | Cihla |
| Vybaveno | Vybaveno |
| Vytápění | Plynové |
| Vlastnictví | Osobní |
| Umístění | Centrum |
| Rizika | Prověřit » |
| Stav | Velmi dobrý |
|---|---|
| Dispozice | 3+1 |
| Podlaží | 2. podlaží z 5 |
| Číslo inzerátu | 940533 |
| PENB | D - Méně úsporná |
| Užitná plocha | 53 m² |
| Cena za jednotku | 167 736 Kč / m2 |
Co tato nemovitost nabízí?
| Balkón 2 m² | |
| Parkování |
| Sklep 3 m² | |
| Výtah |
V okolí nemovitosti najdete
Využít program Bydlím hned, koupím později
Stále hledáte to pravé?
Nastavte si hlídacího psa. Nabídky vybrané na míru dostanete souhrnně 1× denně e-mailem. S Premium profilem máte k ruce hlídačů rovnou 5 a když se něco objeví, informují vás obratem.





















