
Prodej bytu 4+kk • 80 m² bez realitkyHurbanova, Praha - Krč
Hurbanova, Praha - KrčVybaveno • Výtah • Sklep 2 m² • Lodžie 7 m²Využít program Bydlím hned, koupím později
Hledáte moderní rodinné bydlení, kde se kloubí elegantní design, dechberoucí výhledy a skutečné teplo domova? Tento jedinečný mezonetový byt 4+kk po kompletní nákladné rekonstrukci splní představy i těch nejnáročnějších z Vás.
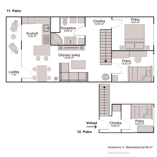
Byt se nachází v 11. a 12. patře třináctipatrového domu v atraktivní lokalitě Praha 4 – Krč, jen pár kroků od budoucí stanice metra D Thomayerova nemocnice. S celkovou plochou 80 m², lodžií 7 m² a sklepem 2 m² zaujme nejen svou vzdušností a moderním designem, ale především nádherným panoramatickým výhledem na Prahu.
Tento mezonet nabízí oddělenou privátní část v horním patře a světlý, prostorný interiér díky velkým oknům a jižní orientaci. Dispozice zahrnuje prostorný obývací pokoj propojený s moderní kuchyní na míru se všemi vestavěnými značkovými spotřebiči – lednicí, mrazákem, troubou, mikrovlnnou troubou, myčkou a indukční deskou. Kuchyň doplňuje ostrůvek s barovými židlemi. Lodžie je ideální pro ranní kávu nebo relaxaci.
Koupelna je vybavena rohovou vanou, toaletou, pračkou a sušičkou. Byt dále nabízí tři samostatné pokoje, které lze využít jako ložnici, dětský pokoj, pracovnu nebo šatnu, a praktickou chodbu. Součástí bytu je také sklep v suterénu domu.
Byt prošel kompletní modernizací v roce 2023 s důrazem na kvalitu a detail. V celém bytě jsou položeny kvalitní vinylové podlahy, v koupelně velkoformátová dlažba. Instalována jsou nová plastová okna s trojskly, podhledy s bodovým osvětlením, dveře na míru značky Sapeli a kompletně nová elektroinstalace.
Dům je vybaven kamerovým systémem a čtyřmi výtahy, což zajišťuje vysokou míru bezpečnosti a komfortu. Měsíční poplatky činí 1 608 Kč do fondu oprav a 4 012 Kč za služby. Parkování je možné před domem, případně si lze pronajmout vyhrazené místo na parkovišti Hurbanova. Zastávka MHD Zálesí nebo Sídliště Krč jsou pouhé 3 minuty chůze od domu.
Lokalita je klidná a nabízí kompletní občanskou vybavenost v docházkové vzdálenosti. Přímo před domem se nachází prestižní školky, v blízkosti školy Nový PORG a U Krčského lesa, obchody jako Lidl (5 minut chůze), Albert (3 minuty), Jysk, Pepco, potraviny, Ovocný Světozor, EUC lékárna a Thomayerova Nemocnice. Okolí nabízí spoustu dětských hřišť a do Kunratického lesa se dostanete během 10 minut chůze. Sportovní nadšenci ocení Form Factory 3 minuty od domu, velké sportoviště Domyno Fitness a nedalekou možnost wellness, golfu a restaurace v Chateau St. Havel v Krčském zámku.
Skvělé dopravní spojení do centra a zároveň blízkost přírody činí tuto adresu ideální pro rodiny i náročné klienty, kteří hledají moderní, pohodlné bydlení s jedinečnou atmosférou.
Byt prodávám přímo jako majitelka, takže se vyhnete provizi realitní kanceláři. Ráda vám poradím a nasměruji na možnosti výhodného financování. Pokud budete mít zájem, neváhejte mě kontaktovat – ráda poskytnu více informací a domluvím si s vámi osobní prohlídku podle vašich možností.
Prodávající si vyhrazuje právo vybrat kupujícího dle vlastního uvážení.
Are you looking for a modern family home that combines elegant design, breathtaking views, and true comfort? This unique 4-bedroom duplex apartment, fully renovated to the highest standards, will exceed the expectations of even the most discerning buyers.
Located on the 11th and 12th floors of a thirteen-story building in the attractive district of Prague 4 – Krč, just steps away from the future Metro D station Thomayerova nemocnice, the apartment offers 80 m² of living space, a 7 m² loggia, and a 2 m² cellar. Its modern layout and stunning panoramic views of Prague make it truly exceptional.
The duplex provides a private upper-level sleeping area and a bright, spacious living space with large windows and southern orientation. The layout includes a generous living room connected to a custom-made kitchen fully equipped with premium built-in appliances: refrigerator, freezer, oven, microwave, dishwasher, and induction hob. A stylish island with bar seating adds functionality and charm. The loggia is perfect for morning coffee or evening relaxation.
The bathroom features a corner bathtub, toilet, washing machine, and dryer. The apartment also offers three additional rooms that can serve as bedrooms, a children’s room, home office, or walk-in closet, plus a practical hallway. A private cellar in the basement is included.
The property was fully modernized in 2023 with a focus on quality and detail. It features high-quality vinyl flooring, large-format bathroom tiles, triple-glazed windows, recessed ceilings with spot lighting, custom Sapeli doors, and a new electrical installation.
The building is secured with a camera system and equipped with four elevators. Monthly fees are CZK 1,608 for the repair fund and CZK 4,012 for services. Parking is available in front of the building or through rental at the Hurbanova parking facility. Public transport stops Zálesí and Sídliště Krč are only a 3-minute walk.
The location is peaceful yet offers full amenities within walking distance: kindergartens, schools such as Nový PORG and U Krčského lesa, Lidl and Albert supermarkets, local shops, pharmacy, and Thomayerova Hospital. Kunratice Forest is just 10 minutes away, and nearby are fitness centers, playgrounds, and Chateau St. Havel with wellness, golf, and fine dining.
With excellent transport connections to the city center and close proximity to nature, this address is ideal for families and clients seeking modern, comfortable living with a unique atmosphere.
The apartment is sold directly by the owner, so you save on agency commission. I’ll be happy to provide advice, guide you through financing options, and arrange a private viewing. Please feel free to contact me.
The seller reserves the right to choose the buyer at their own discretion.
Parametry nemovitosti
| Dostupné od | 4. 9. 2025 | 
|---|---|
| Konstrukce budovy | Panel | 
| Vybaveno | Vybaveno | 
| Provedení | Luxusní | 
| Číslo inzerátu | 941597 | 
| PENB | C - Úsporná | 
| Umístění | Klidná část | 
| Rizika | Prověřit » | 
| Stav | Po rekonstrukci | 
|---|---|
| Dispozice | 4+kk | 
| Podlaží | 12. podlaží z 13 | 
| Vytápění | Ústřední | 
| Vlastnictví | Osobní | 
| Rekonstrukce | Kompletní | 
| Užitná plocha | 80 m² | 
| Cena za jednotku | 143 625 Kč / m2 | 

Co tato nemovitost nabízí?
| Sklep 2 m² | |
| Výtah | 
| Lodžie 7 m² | 
V okolí nemovitosti najdete
Využít program Bydlím hned, koupím později
Stále hledáte to pravé?
Nastavte si hlídacího psa. Nabídky vybrané na míru dostanete souhrnně 1× denně e-mailem. S Premium profilem máte k ruce hlídačů rovnou 5 a když se něco objeví, informují vás obratem.
























