
Pronájem bytu 3+1 • 85 m² bez realitky, Bádensko-Württembersko
, Bádensko-WürttemberskoMHD 1 minuta pěšky2-3 pokojový byt v malé bytové jednotce v atraktivní vnitřní lokalitě Frickenhausen.
Umístění v podkroví, moderní a kvalitní interiérová úprava, technika domácnosti a sanitární vybavení.
Podle předpisů o úspoře energie je budova izolovaná.
Velmi nízké vedlejší náklady!
K bytu náleží společná sklepní místnost a samostatný úložný prostor pro kola a kočárky.
Perlou bytu je světlý, sluncem zalitý obývací pokoj včetně nádherného balkonu a plně zrekonstruované, prosvětlené podkrovní patro s okny ve střeše.
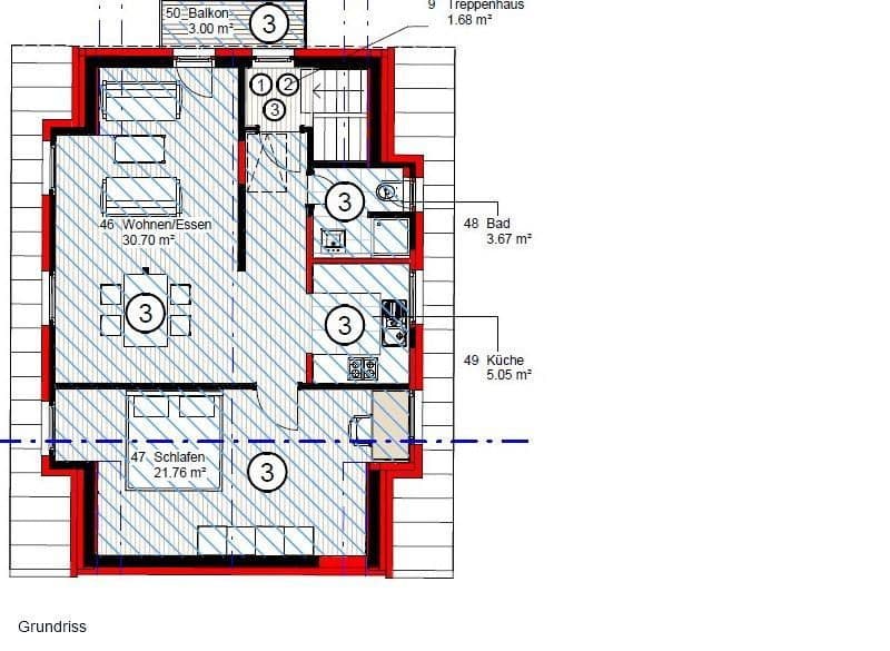
Balkón je větší, než je zobrazeno v půdorysu.
Kuchyň může být převzata od předchozího nájemníka.
Klíčová data:
Bytový komplex: byty ve vlastnictví
Bytové jednotky v domě: 3
Rok výstavby: 2013
Umístění bytu v domě: podkroví
Podlahová plocha: 85 m²
Rozložení místností: viz půdorys
Vybavení místností: stěny a stropy tapetované na bílo, kvalitní podlahová krytina, koupelna obložena dlažbou
Topení: ústřední topení
Tepelné médium: tepelné čerpadlo
Distribuce tepla: podlahové topení
Ohřev teplé vody: přes ústřední topení
Energetický průkaz: k dispozici
Typ energetického průkazu: vypočtená energetická spotřeba budovy
Konečná spotřeba energie: 22,3 kWh/(m²/rok)
Větrání: Ano
Domácí síť: v každé místnosti
Elektrické žaluzie
Vedlejší náklady: 120 €
Žádná domácí zvířata
Služba hospodáře: zatím není možné uvést
Základní nájemné: 1180 €
Kauce nebo podíly družstva: 2500 €
Frickenhausen disponuje dobrou infrastrukturou v oblasti školství, kulturních zařízení a nákupních možností. Jen dvě minuty chůze od domu se dostanete do centra obce, kde můžete vyřídit každodenní potřeby, nakupovat a využít zastávky veřejné dopravy. Frickenhausen se nachází na okraji rekreační oblasti "Schwäbische Alb". Termální lázně Beuren a venkovní muzeum okresu v Beuren leží v bezprostřední blízkosti.
Ostatní:
– Nádražní/autobusová zastávka s napojením do Stuttgartu/Tübingenu je v bezprostřední blízkosti
– Banky, obchody a knihovna jsou dosažitelné v okruhu 400 m
– Mateřská škola: cca 100 m
– Základní škola: cca 300 m
– Společná škola: cca 500 m
Prosím, ucházejte se o byt s výstižnými informacemi na uvedenou e-mailovou adresu. Neúplné žádosti nebudou zodpovězeny.
V okolí nemovitosti najdete
Stále hledáte to pravé?
Nastavte si hlídacího psa. Nabídky vybrané na míru dostanete souhrnně 1× denně e-mailem. S Premium profilem máte k ruce hlídačů rovnou 5 a když se něco objeví, informují vás obratem.













