
Prodej domu 6+1 • 151 m² bez realitkySchlehenweg 6 Augsburg Hammerschmiede Bayern 86169
Schlehenweg 6 Augsburg Hammerschmiede Bayern 86169MHD 2 minuty pěšky • GarážŘadový dům ve čtvrti Hammerschmiede v Augsburgu nabízí rodinné uspořádání se šesti pokoji, třemi koupelnami a dokončeným půdním patrem. Mezi hlavní přednosti patří prostorný obývací a jídelní prostor s přístupem na jižní terasu, možnost flexibilního využití horního patra jako samostatného bytu a zahrada orientovaná na jih s přímým vstupem do garáže. Díky tomu je nemovitost vhodná jak pro rodiny s potřebou většího prostoru, tak pro kupce, kteří zvažují možnost částečného pronájmu.
Dům byl postaven v roce 1954 masivní stavbou a v roce 1995 byl kompletně zmodernizován. V rámci rekonstrukce byly obnoveny okna, instalovány nové žaluzie, kompletně vyměněna elektroinstalace, sanitární zařízení i podlahové krytiny. Půdorys přízemí byl upraven a vznikla prostorná obytná kuchyně. V roce 1999 byla instalována plynová centrální topení s nízkoteplotním kotlem, který je pravidelně udržován. Ve stejném roce bylo podkroví zrekonstruováno, přičemž vznikla ložnice, kuchyňský kout, koupelna a další obytný prostor – následně bylo dodatečně schváleno. Fasáda byla obnovena v roce 2014. Budova je udržovaná a po drobných kosmetických úpravách je připravena k nastěhování. Střecha a okna již byla vyměněna, aktuálně není třeba žádných dalších zásahů. Při budoucí obnově topení lze přejít na moderní kondenzaci, která je slučitelná s obnovitelnými zdroji energie a mohla by získat státní podporu.
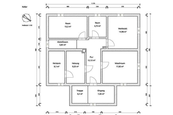
V přízemí se nachází obývací pokoj, obytná kuchyně, komorník a koupelna se sprchou. V horním patře jsou tři ložnice, koupelna s vanou a balkon. Podkroví nabízí samostatnou bytovou jednotku (s připojením kuchyně a koupelnou). Sklep je zcela obložen dlažbou a disponuje třemi místnostmi, připojením pro pračku a přímým vstupem do zahrady. Kromě toho je k dispozici půdní prostor sloužící jako úložná plocha. K domu náleží samostatná garáž se zásuvkou pro elektřinu a studna v zahradě.
Prodej probíhá bez provize přímo od vlastníka.
Nemovitost se nachází ve čtvrti Hammerschmiede v Augsburgu, což je klidná, přesto výborně dostupná obytná oblast na severu města. Okolí je charakterizováno rodinně přívětivou infrastrukturou s krátkými trasami k obchodům, vzdělávacím zařízením a volnočasovým možnostem. Zejména blízkost k několika supermarketům, restauracím a lékařům zvyšuje kvalitu každodenního života. Školy, mateřské školy i Svobodná Waldorfská škola jsou dosažitelné pěšky, což činí lokalitu obzvláště atraktivní pro rodiny.
Pro dojíždějící je lokalita rovněž ideální – nedaleká spolková silnice B2 nabízí rychlé spojení s dálnicí A8, která je dosažitelná během několika minut. Díky tomu jsou významná města v okolí velmi dobře dostupná – Mnichov je vzdálen přibližně 70 km, Ingolstadt asi 60 km a Friedberg jen přibližně 15 km. Lokalita tak kombinuje přednosti klidného obytného prostředí s vynikající dopravní dostupností do celého regionu. Centrum Augsburgu je autem dosažitelné za 10–15 minut. Ze zastávky „Schlössle“ se bez přestupu přímou tramvajovou linkou 1 dostanete na Königsplatz. Autobusová zastávka je pak jen pár minut chůze, odkud se dostanete jak na Königsplatz, tak i na hlavní nádraží přibližně za 15 minut.
Specifikace nemovitosti:
• Masivní konstrukce
• Celkem: 6 pokojů, 3 koupelny
• Obytná plocha cca 150 m², pozemek cca 207 m²
• 2 plné podlaží + dokončené půdní patro + sklep + půdní prostor
• Podlahové krytiny: parkety (obytná část), laminát (ložnice), dlaždice (kuchyně, chodba, koupelny, sklep)
• Okna: plastová (rok 1995) se žaluziemi
• Střecha: izolovaná, dokončená (1999)
• Topení: plynové centrální topení, nízkoteplotní kotel (rok 1999), pravidelně udržováno
• Připojení krbu v obývacím pokoji (krb je v současnosti již nepovolen, ale jeho výměna je možná)
• Koupelny:
- Přízemí: koupelna se sprchou
- Horní patro: koupelna s vanou
- Podkroví: koupelna s denním světlem a vanou
• Kuchyně: prostorná obytná kuchyně v přízemí, dodatečný kuchyňský kout v podkroví
• Balkon: jižní balkon v horním patře
• Terasa: jižní terasa s přístupem do zahrady
• Sklep: kompletně podkellérovaný, 3 místnosti obložené dlažbou, připojením pro pračku, vnější schodiště do zahrady
• Půdní prostor: nezařízený, slouží jako úložná plocha
• Garáž: samostatná garáž se zásuvkou, přístup ze zahrady
• Zahrada: orientovaná na jih, se studnou pro odběr podzemní vody
• Předzahrádka s možností přestavby na parkovací místo
Historie domu v přehledu:
• cca 1954: rok výstavby domu
• cca 1980: vztyčení samostatné garáže se zásuvkou
• 1995 (komplexní rekonstrukce):
– Obnova oken (dřevo → plast)
– Nové vtělněné žaluzie
– Kompletní obnova elektroinstalace (vodiče, zásuvky, pojistky)
– Kompletní renovace koupelen v přízemí a horním patře (sanitární vybavení, dlaždice)
– Obnova podlah (parkety v obytné části, laminát v ložnicích, dlaždice v kuchyni a chodbě)
– Přeuspořádání kuchyně: kuchyň v přízemí byla přesunuta, příčka odstraněna → vznik velkého obytného a jídelního prostoru
– Kuchyň v horním patře byla přestavěna na ložnici
– Vnitřní stěny omítnuty a natřeny
– Vnitřní dveře obroušeny a natřeny
– Balkon opraven
• 1997: instalace střešních oken, vyměněna vstupní vrata (plastová)
• 1999:
– Instalace plynového centrálního topení s nízkoteplotním kotlem včetně radiátorů (nahrada samostatných kamen)
– Rekonstrukce podkroví (obytný/ložnicový prostor, koupelna, kuchyňský kout, elektroinstalace, topení, připojení)
• 2000: Obnova terasy a vstupní oblasti (dlaždice, markýza)
• 2014: Fasáda nově omítnuta a natřena
• Průběžně: pravidelná údržba, výměna jednotlivých žaluzí, obnova plynovodů ve sklepě
V okolí nemovitosti najdete
Stále hledáte to pravé?
Nastavte si hlídacího psa. Nabídky vybrané na míru dostanete souhrnně 1× denně e-mailem. S Premium profilem máte k ruce hlídačů rovnou 5 a když se něco objeví, informují vás obratem.