
Inzerát již není v nabídce
Prodej bytu 3+1 • 110 m² bez realitkyMünchen Isarvorstadt Bayern 80337
München Isarvorstadt Bayern 80337MHD do minuty pěškyPodkrovní byt s nádechem penthousu – s balkonem a zeleným společným dvorem spoluvlastníků, kde je víc než jen „čtyři stěny“.
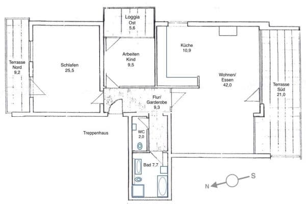
Světlý byt ve 4. patře se zeleným dvořem ve vyhledávané centrální oblasti Isarvorstadt v Mnichově na módní Maistraße. Sto deset metrů čtverečních obytné plochy dle WoFlV na využitelné ploše 120 m² (v důsledku mírného stropního sklonu mansardové střechy) s flexibilně řešeným dispozicemi: tři místnosti, velkorysý kombinovaný obývací-jídelní pokoj s kuchyňským koutem vyrobeným na zakázku, koupelna s toaletou a pračkou, hostinská toaleta, předsíň, komora, balkon, sklepní kóje. Geometrie místností je individuální – s vybudovaným stropem se zřetelními trámy a sloupy s dekorativními přepážkami jako stylovými prvky. Několik vnitřních zdí je nosných (nenosné zdi lze podle potřeby nahradit, posunout nebo otevřít).
Srdcem klidného bytu je obývací-jídelní pokoj o rozloze 35 m², který je okouzlující a útulný. K dispozici je denní světlá koupelna vybavená sprchovým koutem a vanou. Balkon nabízí panoramatický výhled 240° na okolní podkrovní krajinu čtvrti, na Maistraße i do vnitřního dvora – ten přináší další „plus“: zelený dvůr spoluvlastníků se sedacími a hracími zónami, místy pro kola.
K dispozici je také parkovací místo v podzemní garáži vedle domu, které lze od roku 2026 pronajmout (po právě probíhající rekonstrukci); blízko jsou také místa pro carsharing.
Lokalita spojuje městský život s uvolněným útočištěm přímo uprostřed města – neodolatelná nabídka.
Mikro-lokace a orientace: slunce ze strany východ-jih-západ – komunikační zeď k sousedovi na severu, klidná oáza ve vnitřním dvoře.
Isarvorstadt se stala vyhledávanou rezidenční čtvrtí mezi mladší cílovou skupinou. Centrální poloha města v kombinaci s blízkostí k řece Isar, sousedstvím Glockenbach- a Schlachthofviertel činí tuto čtvrť oblíbenou.
Na pulzující a zároveň překvapivě klidné Maistraße najdete restaurace, hospody a kavárny, obchody a dvorní prodejny a mnoho dalšího – za pár minut chůze je i Viktualienmarkt. Lékaři a řada zařízení každodenní potřeby je také po ruce.
Mateřské zahrady, školky, školky s příměstskou školkou a všechny školy (základní až střední) jsou dosažitelné pěšky. Autobusové a tramvajové linky, zastávky metra a centrální uzly jako Marienplatz, Viktualienmarkt a Isartor jsou v docházkové vzdálenosti.
Makro-lokace: Mnichov, centrum.
Poznámka: Vlastnice byla mladá a nečekaně zemřela, dědici prodávají. Podkrovní byt je v celkově upraveném stavu, avšak není připraven k převodu majitele kvůli naléhavému rychlému prodeji. Menší úpravy by však krásnému bytu prospěly (například výměna laminátových podlah ve dvou dětských pokojích za dřevěný parket – jako v ostatních obytných prostorech, vylepšení hostinské toalety, modernizace DFF) – což je již v cenovém odhadu zohledněno (se slevou 40 000 eur). Jinak se jedná o částečně kvalitní vybavení a detaily: parkety/dřevěné podlahy, zakázkové vestavby v kuchyňském a koupelnovém prostoru, spotřebiče značky Miele apod.
Energie a vnitřní klima: plynový kotel na patře značky Vaillant atmoTEC (z roku 2016), spotřeba plynu cca 12 000 kWh ročně = energetická třída C (pouze pro podkrovní byt) = mírné náklady na vytápění. POZOR: energetický průkaz celého domu Maistraße 32 se všemi 5 byty je v přípravě, shromážděné informace k němu jsou na cestě. Energetický průkaz budovy „Maistraße 32“ bude předložen při prohlídce.
Fotovoltaická solární elektrárna na balkoně na střeše. V domě je optické připojení. Mírné měsíční poplatky spojené s dostatečnými rezervami (bez potřebných oprav).
Termické modernizační možnosti lze zvážit, ale nejsou nezbytné (například výměna menších okenních křídel na střeše za moderní trojskla, dodatečná vyfukovaná izolace ve střešním vrcholu): Podkrovní byt, včetně nejvyššího patra společného prostoru spoluvlastníků, je izolován. Bytové klima je dobré, ale při dlouhotrvajících vlnách horka se pod plechovou střechou může stát, že se trochu oteplí. Kromě zlepšení ochrany proti horku mohou být – pro několik relevantních dnů v roce – užitečné ranní překřížené větrání a/nebo přenosná klimatizace.
Vezměte prosím na vědomí: žádné odpovědi na dotazy bez uvedení jména, adresy a telefonního čísla; žádná prohlídka bez krátkého upozornění na plánované financování; žádná prohlídka bez domluveného termínu – dbejte prosím na soukromí spoluvlastníků.
V okolí nemovitosti najdete
Stále hledáte to pravé?
Nastavte si hlídacího psa. Nabídky vybrané na míru dostanete souhrnně 1× denně e-mailem. S Premium profilem máte k ruce hlídačů rovnou 5 a když se něco objeví, informují vás obratem.