
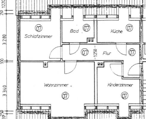
Pronájem bytu 3+1 • 61 m² bez realitkyKarl-Marx-Str. 1b, , Sasko
Karl-Marx-Str. 1b, , SaskoMHD 2 minuty pěškyWir präsentieren Ihnen eine charmante 3-Zimmer-Wohnung in einem gepflegten Mehrfamilienhaus aus den 1960er Jahren, ideal für eine Familie mit einem Kind. Das Gebäude erstreckt sich über vier Wohnetagen und bietet eine angenehme Wohnatmosphäre in Delitzsch. Ein besonderes Highlight ist der gemeinschaftlich nutzbare Garten mit einem praktischen Wäscheplatz, der Raum für Erholung im Freien bietet.
Die Immobilie besticht durch ihre zentrale Lage in Delitzsch, die eine hervorragende Anbindung an öffentliche Verkehrsmittel bietet und somit eine problemlose Erreichbarkeit der Innenstadt und weiterer Ziele gewährleistet. Trotz der Nähe zur Hauptstraße genießen Sie eine schöne Aussicht ins Grüne, die eine willkommene Ruheoase im städtischen Umfeld schafft. Die Kombination aus zentraler Lage und naturnahem Ambiente macht diese Wohnung besonders attraktiv.
Diese frisch sanierte Wohnung überzeugt durch eine hochwertige und moderne Ausstattung. Das Badezimmer ist mit einer Badewanne ausgestattet, die auch zum Duschen geeignet ist, und verfügt über eine Handtuchheizung für zusätzlichen Komfort. In allen Zimmern wurde ein ansprechender Laminatboden in Holzoptik verlegt, der eine warme und einladende Atmosphäre schafft. Für optimalen Schlafkomfort und Privatsphäre sind Außenrollos zum Abdunkeln in allen Zimmern vorhanden. Praktischerweise kann eine Waschmaschine direkt im Badezimmer, in der Küche oder im gemeinschaftlichen Wäscheraum im Keller aufgestellt werden. Die aktuelle Wohnungsanierung umfasst die komplette Neugestaltung des Badezimmers, die Erneuerung der Elektrik, die teilweise Neuinstallation von Heizkörpern, das Tapezieren der Wände sowie die Neuverlegung des Bodenbelags und den Einbau neuer Türen, wodurch die Wohnung in einem neuwertigen Zustand übergeben wird.
DZI GmbH
Am Wallgraben 33
04509 Delitzsch
Amtgericht Leipzig
HRB 44496
Geschäftsführer Florian Thiel
florian.thiel.dzi@web.de
Překlad do češtiny:
Představujeme Vám půvabný 3-pokojový byt v upraveném činžovním domě z 60. let, ideální pro rodinu s jedním dítětem. Budova se rozkládá na čtyřech obytných patrech a nabízí příjemnou atmosféru bydlení v Delitzschu. Zvláštním lákadlem je společná zahrada s praktickým prostorem na sušení prádla, který poskytuje místo pro odpočinek na čerstvém vzduchu.
Nemovitost vyniká svou centrální polohou v Delitzschu, která nabízí vynikající spojení s veřejnou dopravou a tím zajišťuje snadnou dostupnost centra města a dalších cílů. Přes blízkost k hlavní silnici si však užijete krásný výhled do zeleně, což vytváří vítanou oázu klidu uprostřed městského prostředí. Kombinace centrální polohy a kontaktu s přírodou činí tento byt obzvlášť atraktivním.
Tento čerstvě zrekonstruovaný byt zaujme svou kvalitní a moderní výbavou. Koupelna je vybavena vanou, která je zároveň vhodná pro sprchování, a má také ručníkové topení pro zvýšení komfortu. Ve všech místnostech byl položen vkusný laminátový podlahový kryt s dřevěnou optikou, který vytváří teplou a příjemnou atmosféru. Pro optimální pohodlí při spánku a zajištění soukromí jsou ve všech místnostech instalovány venkovní rolety pro úplné zatemnění. Prakticky lze umístit pračku přímo do koupelny, kuchyně nebo do společné prádelny v suterénu. Současná rekonstrukce bytu zahrnovala kompletní přestavbu koupelny, obnovu elektrické instalace, částečnou novou instalaci radiátorů, tapetování stěn, novou pokládku podlahové krytiny a instalaci nových dveří, díky čemuž je byt předán ve stavu jako nový.
DZI GmbH
Am Wallgraben 33
04509 Delitzsch
Okresní soud v Lipsku
HRB 44496
Ředitel Florian Thiel
florian.thiel.dzi@web.de
V okolí nemovitosti najdete
Stále hledáte to pravé?
Nastavte si hlídacího psa. Nabídky vybrané na míru dostanete souhrnně 1× denně e-mailem. S Premium profilem máte k ruce hlídačů rovnou 5 a když se něco objeví, informují vás obratem.