
Prodej domu 6+1 • 185 m² bez realitkyForstweg 3, , Šlesvicko-Holštýnsko
Forstweg 3, , Šlesvicko-HolštýnskoMHD 2 minuty pěšky • ParkováníEin Juwel vor den Toren Hamburgs
Klenot před branami Hamburku
Stilvoll. Modernisiert. Mit Seele.
Stylový. Modernizovaný. S duší.
Willkommen in Ihrem neuen Zuhause – Familienidylle mit Anbau in begehrter Lage von Norderstedt
Vítejte ve vašem novém domově – rodinná idyla s přístavbou v žádané lokalitě Norderstedt
Dieses charmante Einfamilienhaus mit Anbau vereint historischen Charakter, modernen Wohnkomfort und eine Toplage am Hamburger Stadtrand – ideal für Familien, Mehrgenerationenwohnen oder als renditestarke Kapitalanlage.
Tento okouzlující rodinný dům s přístavbou spojuje historický charakter, moderní obytný komfort a skvělou polohu na předměstí Hamburku – ideální pro rodiny, vícegenerační bydlení nebo jako výnosná investice.
In einer ruhigen, gepflegten Seitenstraße von Norderstedt erwartet Sie ein Ort, an dem Wohnen zur Lebensqualität wird. Der U-Bahnhof Richtweg ist bequem fußläufig erreichbar und bietet eine direkte Verbindung mit der U1 in die Hamburger Innenstadt – urbanes Leben und naturnahe Ruhe perfekt vereint.
V klidné, upravené boční ulici v Norderstedt na vás čeká místo, kde se bydlení proměňuje v kvalitu života. Stanice metra Richtweg je pohodlně dostupná pěšky a nabízí přímé spojení s linkou U1 do centra Hamburku – městský život a klid přírody se zde dokonale snoubí.
Tradition trifft Moderne – Ein Zuhause mit Geschichte und Zukunft
Tradice se setkává s modernou – domov s historií a budoucností
Das Haupthaus wurde 1950 erbaut, über die Jahre liebevoll instand gehalten und im Jahr 2020 komplett saniert. Auf ca. 185 m² Wohnfläche, verteilt auf zwei Etagen sowie den modernen Anbau, finden Sie viel Raum für individuelle Wohnideen. Im Mai 2024 wurde eine neue Heizungsanlage installiert – ein Pluspunkt für Energieeffizienz und Werterhalt.
Hlavní dům byl postaven v roce 1950, po celá léta byl s láskou udržován a v roce 2020 kompletně zrekonstruován. Na přibližně 185 m² obytné plochy, rozdělených do dvou pater spolu s moderní přístavbou, naleznete spoustu prostoru pro individuální představy o bydlení. V květnu 2024 byla instalována nová topná jednotka – velké plus pro energetickou účinnost a zachování hodnoty.
Aktuell ist das Haus in zwei Wohneinheiten aufgeteilt wovon eine Einheit vermietet ist. Mit wenigen Handgriffen lässt sich die Immobilie jedoch zu einer großzügigen Familienresidenz zusammenlegen. Diese Flexibilität macht das Objekt besonders attraktiv – ob als Zuhause mit zusätzlicher Einliegerwohnung, für generationsübergreifendes Wohnen oder als Kombination aus Wohnen und Arbeiten.
Aktuálně je dům rozdělen na dvě obytné jednotky, z nichž jedna je pronajata. S několika drobnými úpravami lze však nemovitost sloučit do prostorné rodinné rezidence. Tato flexibilita činí objekt obzvláště atraktivním – ať už jako domov s přídavným bytem pro hosty, pro vícegenerační bydlení nebo jako kombinaci bydlení a práce.
Willkommen im Herzen des Hauses
Vítejte v srdci domu
Die Küche präsentiert sich mit einer eleganten Nolte-Einbauküche und hochwertigen Siemens-Geräten. Hier finden Kochen und Geselligkeit auf hohem Niveau statt – der perfekte Ort für kulinarische Abende mit Familie und Freunden.
Kuchyně se pyšní elegantní vestavěnou kuchyní značky Nolte a vysoce kvalitními spotřebiči Siemens. Zde se vaření a společenské setkávání odehrávají na vysoké úrovni – ideální místo pro kulinářské večery s rodinou a přáteli.
Der angrenzende Wohn- und Essbereich überzeugt durch seine großzügige Raumwirkung. Während auf der einen Seite ein großer Esstisch Platz für gemeinsame Mahlzeiten bietet, lädt auf der anderen eine gemütliche Sofaecke und ein gemütlicher Kamin zum Entspannen ein.
Sousední obývací a jídelní prostor ohromuje svou prostorností. Zatímco na jedné straně velký jídelní stůl nabízí místo pro společné stolování, na druhé vás zve útulný kout se sedačkou a příjemný krb k odpočinku.
Privatsphäre & Rückzugsorte im Obergeschoss
Soukromí a útočiště v patře
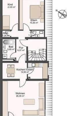
Im Dachgeschoss erwarten Sie drei helle Zimmer sowie ein großzügiges Vollbad mit Badewanne und Dusche. Die Räume werden aktuell als Schlaf- und Kinderzimmer genutzt und bieten flexible Gestaltungsmöglichkeiten – sei es als Elternsuite, Kinderparadies oder Homeoffice.
Na podkroví na vás čekají tři světlé pokoje a prostorná koupelna s vanou a sprchou. Pokoje jsou v současnosti využívány jako ložnice a dětské pokoje, a nabízejí flexibilní možnosti uspořádání – ať už jako rodičovský apartmán, dětský ráj nebo domácí kancelář.
Außenbereich – Entspannen & Genießen
Venkovní prostor – relaxace a užívání
Der Garten ist pflegeleicht angelegt und bietet neben einem kleinen Fußballplatz gleich zwei Terrassenbereiche: eine Terrasse im Vorgarten sowie eine überdachte Terrasse auf der Rückseite – ideal für Grillabende oder ruhige Stunden im Freien. Ein praktisches Gartenhaus ergänzt den Außenbereich. Ihr Fahrzeug parkt sicher und bequem im Carport direkt am Haus.
Zahrada je nenáročně udržovaná a kromě malého fotbalového hřiště nabízí hned dvě terasy: terasu ve předzahrádce a zastřešenou terasu vzadu – ideální pro grilování nebo klidné chvíle na čerstvém vzduchu. Praktický zahradní domek doplňuje venkovní prostor. Vaše vozidlo zaparkujete bezpečně a pohodlně v carportu přímo u domu.
Attraktive Kapitalanlage
Atraktivní investice
Das Haus ist derzeit vermietet und erwirtschaftet monatliche Kaltmieteinnahmen von 2.150 € zuzüglich Nebenkosten. Damit eignet sich das Objekt auch hervorragend für Kapitalanleger, die Wert auf Substanz und Rendite legen.
Dům je v současnosti pronajatý a generuje měsíční nájemné ve výši 2.150 € bez nákladů navíc. Díky tomu se objekt výborně hodí také pro investory, kteří kladou důraz na skutečnou hodnotu a výnos.
Zusätzlicher Wohnkomfort – der Anbau
Dodatečný komfort bydlení – přístavba
Der im Jahr 2000 errichtete Anbau erweitert das Raumangebot um ein weiteres Zimmer mit integrierter Küchenzeile, ein Badezimmer sowie eine Wendeltreppe in den ausgebauten Spitzboden mit Gaube. Diese Einheit wird frei geliefert und eröffnet vielseitige Nutzungsmöglichkeiten: Gästeappartement für die Vermietung, Homeoffice, Atelier oder separate Langzeitvermietung - vieles ist möglich.
Přístavba postavená v roce 2000 rozšiřuje obytný prostor o další pokoj s integrovaným kuchyňským koutem, koupelnu a závitové schodiště vedoucí do zrekonstruovaného podkroví s vikýřem. Tato jednotka je dodávána prázdná a nabízí široké spektrum využití: apartmán pro hosty k pronájmu, domácí kancelář, ateliér nebo samostatný dlouhodobý pronájem – možnosti jsou téměř nekonečné.
Fazit
Závěr
Ob Sie ein neues Zuhause für Ihre Familie suchen oder eine solide Kapitalanlage mit Perspektive – diese Immobilie vereint Charme, Lage und Flexibilität auf ideale Weise. Lassen Sie sich von diesem besonderen Haus in Norderstedt begeistern und entdecken Sie die vielen Möglichkeiten, die es Ihnen bietet.
Ať už hledáte nový domov pro svou rodinu nebo solidní investici s perspektivou – tato nemovitost dokonale spojuje kouzlo, polohu i flexibilitu. Nechte se nadchnout tímto výjimečným domem v Norderstedt a objevte všechny možnosti, které vám nabízí.
Lage & Infrastruktur:
Lokalita a infrastruktura:
Der Forstweg liegt in einem ruhigen, gewachsenen Wohngebiet in Norderstedt – grün, familienfreundlich und gleichzeitig hervorragend angebunden:
Forstweg se nachází v klidné, ustálené obytné čtvrti v Norderstedt – zelené, rodinné a zároveň s vynikající dostupností:
Nur wenige Geh Minuten zur U-Bahn-Linie U1, Haltestelle Richtweg – direkte Anbindung nach Hamburg.
Jen pár minut chůze k metru linky U1, zastávka Richtweg – přímé spojení do Hamburku.
Schulen, Kindergärten, Einkaufsmöglichkeiten – alles fußläufig erreichbar
Školy, mateřské školy, obchody – vše je dostupné pěšky.
Nahe gelegene Wälder und Parks laden zu Spaziergängen oder sportlichen Aktivitäten ein
Blízko se nacházejí lesy a parky, které lákají k procházkám nebo sportovním aktivitám.
Exklusive Highlights:
Exkluzivní přednosti:
Hochwertige Einbauküche mit modernsten Geräten – offen gestaltet, ideal für Gastgeber*innen.
Vysoce kvalitní vestavěná kuchyně s nejmodernějšími spotřebiči – otevřený koncept, ideální pro hostitele.
Gemütlicher Kamin, der im Winter für behagliche Wärme sorgt.
Útulný krb, který v zimě poskytuje příjemné teplo.
Edle Pitchpine-Holzdielen, die dem Haus eine warme, authentische Atmosphäre verleihen.
Vzácné dřevěné podlahy z pitchpine, které dodávají domu teplou, autentickou atmosféru.
2 gemütliche Terrassen und eine Lounge für entspannte Abende
2 útulné terasy a lounge pro relaxační večery.
Carport mit E-Auto-Ladestation – bereit für die Zukunft
Carport s nabíječkou pro elektroauta – připraveno pro budoucnost.
Separate Einliegerwohnung mit eigenem Eingang – ideal für Gäste, Homeoffice oder zur Vermietung - die gezogene Wand kann bei Bedarf sofort wieder rückgebaut werden so das ein gemeinsames Wohnen für die ganze Familie möglich ist.
Samostatný byt s vlastním vchodem – ideální pro hosty, domácí kancelář nebo k pronájmu – oddělená zeď může být dle potřeby ihned odstraněna, což umožní společné bydlení pro celou rodinu.
3 Bäder, 2 Küchen, 3 Terrassen
3 koupelny, 2 kuchyně, 3 terasy
Die derzeit von mir genutzte Wohnung ist frei und somit sofort lieferbar - der vermietete Teil kann nach Absprache mit dem aktuellen Mieter innerhalb von 3 Monaten geliefert werden.
Byt, který v současnosti využívám, je volný a tudíž okamžitě k nastěhování – pronajatá část může být po dohodě s aktuálním nájemníkem uvolněna do 3 měsíců.
V okolí nemovitosti najdete
Stále hledáte to pravé?
Nastavte si hlídacího psa. Nabídky vybrané na míru dostanete souhrnně 1× denně e-mailem. S Premium profilem máte k ruce hlídačů rovnou 5 a když se něco objeví, informují vás obratem.