
Pronájem bytu 2+1 • 57 m² bez realitkyAm Brüggeberge 14, , Dolní Sasko
Am Brüggeberge 14, , Dolní SaskoMHD 5 minut pěšky • VýtahByt 11 – exkluzivní, prostorný, plný světla
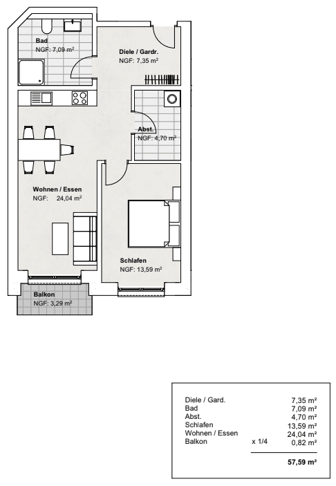
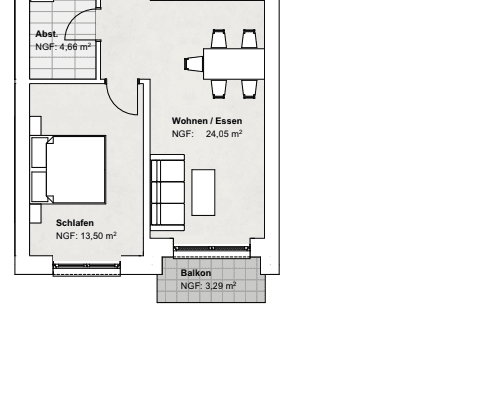
Nový developerský projekt nabízí moderní bydlení s vysokou kvalitou pobytu. Každý byt disponuje otevřeným obývacím a jídelním prostorem s přilehlou kuchyní, moderní koupelnou se sprchou nebo vanou a samostatnou ložnicí. Navíc máte k dispozici praktický úložný prostor přímo v bytě – skutečné plus pro každodenní život a pořádek.
Byty se nacházejí v 1. a 2. patře a jsou opatřeny prostornými balkony orientovanými na jihozápad – ideální místo k relaxaci v přírodě.
Díky bezbariérovému provedení, výtahu v domě a bezprahovým přístupům je nemovitost také ideální pro starší osoby nebo lidi se sníženou mobilitou. Vybavení je moderní, nenáročné na údržbu a zaměřené na příjemné životní prostředí.
V exteriéru přispívají k pohodlí a udržitelnosti upravené chodníky, převážně kryovaná parkovací místa s připravenou infrastrukturou pro elektromobilitu.
Fümmelse se nachází jen několik minut jízdy od centra Wolfenbüttels a zároveň nabízí všechny výhody klidného obytného prostředí. Místo je charakterizováno rodinnými domy, malými bytovými domy a přátelským sousedstvím – ideální pro rodiny s dětmi a pro ty, kteří chtějí trávit důchod v příjemné atmosféře.
V bezprostředním okolí najdete všechna důležitá zařízení:
• Základní škola je dosažitelná během pár minut chůze
• Mateřská škola a zařízení denní péče ASB se nacházejí přímo v okolí
• Hřiště se nachází naproti nemovitosti – perfektní pro mladé rodiny
• Nákupní možnosti, lékaři a další poskytovatelé služeb jsou rychle dostupní
• Vynikající spojení do centra Wolfenbüttels a k silnici B79
Ve Fümmelse objevíte klidné bydlení se všemi výhodami blízkosti města – zasazené do zeleného prostředí s vysokou kvalitou života.
Světlé místnosti s moderními dispozicemi
Bezbariérové přístupy a výtah v domě
Moderní koupelna se sprchou nebo vanou
Úložný prostor přímo v bytě
První užívání, kvalitní podlahové a stěnové obklady
Podlahové vytápění
Zaujalo vás to? Rádi vám zašleme podrobné expoziční informace se všemi detaily o bytě, dispozicích a nájemních podmínkách – napište nám krátkou zprávu.
V okolí nemovitosti najdete
Stále hledáte to pravé?
Nastavte si hlídacího psa. Nabídky vybrané na míru dostanete souhrnně 1× denně e-mailem. S Premium profilem máte k ruce hlídačů rovnou 5 a když se něco objeví, informují vás obratem.









