
Pronájem bytu 2+1 • 57 m² bez realitkyAm Brüggeberge 14, , Dolní Sasko
Am Brüggeberge 14, , Dolní SaskoMHD 5 minut pěšky • VýtahByt 10 – exkluzivní, prostorný, světlý
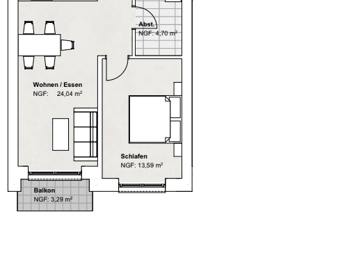
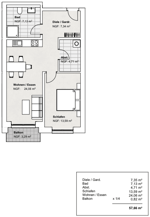
Novostavba nabízí moderní obytné prostory s vysokou kvalitou pobytu. Každý byt má otevřený obývací a jídelní prostor s přilehlou kuchyní, moderní koupelnu se sprchou nebo vanou a samostatnou ložnici. Navíc máte k dispozici praktickou komoru uvnitř bytu – opravdový bonus pro každodenní život a pořádek.
Byty se nacházejí v 1. a 2. podlaží a mají prostorné balkony orientované na jihozápad – ideální pro relaxaci v přírodě.
Díky bezbariérovému designu, výtahu v domě a prahově nízkým vstupům se objekt skvěle hodí i pro starší osoby nebo lidi s omezenou pohyblivostí. Vybavení je moderní, nenáročné na údržbu a zaměřené na příjemné obytné klima.
V exteriéru se udržované cestičky, převážně krytá parkovací místa s připravenou infrastrukturou pro elektromobilitu podílejí na dalším komfortu a udržitelnosti.
Fümmelse se nachází jen několik minut jízdy od centra Wolfenbüttelsu a zároveň nabízí všechny výhody klidného obytného prostředí. Místo je charakterizováno rodinnými domy, malými bytovými domy a přátelským sousedstvím – ideální pro rodiny s dětmi a pro lidi, kteří chtějí strávit důchod v příjemné atmosféře.
V bezprostředním okolí se nachází všechna důležitá zařízení:
• Základní škola je dosažitelná během několika minut chůze
• Mateřská škola a denní stacionář ASB se nacházejí přímo v sousedství
• Hřiště je naproti nemovitosti – ideální pro mladé rodiny
• Obchodní možnosti, lékaři a další poskytovatelé služeb jsou rychle dostupní
• Výborné spojení s centrem Wolfenbüttelsu a silnicí B79
Ve Fümmelse najdete klidnou obytnou oblast se všemi výhodami blízkosti města – zasazenou do zeleného prostředí s vysokou kvalitou života.
• Světlé místnosti s moderními dispozicemi
• Bezbariérové přístupy a výtah v domě
• Moderní koupelna se sprchou nebo vanou
• Komora uvnitř bytu
• První užívání, kvalitní podlahové a stěnové obklady
• Podlahové topení
Máte zájem? Rádi vám zašleme podrobný informační materiál se všemi informacemi o bytu, dispozicích a nájemních podmínkách – napište nám krátkou zprávu.
V okolí nemovitosti najdete
Stále hledáte to pravé?
Nastavte si hlídacího psa. Nabídky vybrané na míru dostanete souhrnně 1× denně e-mailem. S Premium profilem máte k ruce hlídačů rovnou 5 a když se něco objeví, informují vás obratem.









