
Pronájem bytu 2+1 • 57 m² bez realitkyAm Brüggeberge 14, , Dolní Sasko
Am Brüggeberge 14, , Dolní SaskoMHD 5 minut pěšky • VýtahByt 9 – exkluzivní, prostorný, světlý
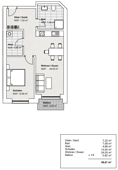
Nový stavební projekt nabízí moderní obytný prostor s vysokou kvalitou pobytu. Každý byt disponuje otevřeným obývacím a jídelním prostorem s přilehlou kuchyní, moderní koupelnou se sprchou nebo vanou a samostatnou ložnicí. Navíc máte k dispozici praktický úložný prostor uvnitř bytu – skutečné plus pro každodenní život a pořádek.
Byty se nacházejí v 1. a 2. patře a disponují prostornými balkony orientovanými na jihozápad – ideální pro relaxaci v přírodě.
Díky bezbariérovému designu, výtahu v domě a bezprahovým vstupům se objekt skvěle hodí také pro starší osoby nebo lidi s omezenou pohyblivostí. Vybavení je moderní, nenáročné na údržbu a navrženo pro příjemné obytné klima.
V exteriéru přispívají upravené chodníky, převážně krytá parkovací místa s předem připravenou infrastrukturou pro elektromobilitu k dalšímu komfortu a udržitelnosti.
Fümmelse se nachází jen pár minut jízdy od centra Wolfenbüttelu a zároveň nabízí všechny výhody klidného obytného prostředí. Místo je charakterizováno rodinnými domy, malými vícegeneračními domy a přátelským sousedstvím – ideální pro rodiny s dětmi a pro ty, kteří chtějí svůj důchod strávit v příjemné atmosféře.
V bezprostřední blízkosti se nachází všechny důležité zařízení:
- Základní škola je dosažitelná za pár minut chůze.
- Mateřská škola a denní stacionář ASB se nacházejí přímo v okolí.
- Hřiště je situováno naproti nemovitosti – perfektní pro mladé rodiny.
- Nákupní možnosti, lékaři a další poskytovatelé služeb jsou rychle dostupní.
- Výborné napojení na centrum Wolfenbüttelu a silnici B79.
V Fümmelse objevíte klidnou obytnou čtvrť se všemi výhodami blízkosti města – zasazenou v zeleném prostředí s vysokou kvalitou života.
Světlé prostory s moderními dispozicemi
Bezbariérové vstupy a výtah v domě
Moderní koupelna se sprchou nebo vanou
Úložný prostor uvnitř bytu
První užívání, kvalitní podlahové a stěnové obklady
Podlahové vytápění
Máte zájem? Rádi vám zašleme podrobné expozé se všemi informacemi o bytě, dispozicích a podmínkách pronájmu – napište nám krátkou zprávu.
V okolí nemovitosti najdete




Pronájem bytuWestfalenstraße 20 Salzgitter Lebenstedt Lebenstedt Niedersachsen 38226- 3+1
- 65 m²
640 € + 140 €
Stále hledáte to pravé?
Nastavte si hlídacího psa. Nabídky vybrané na míru dostanete souhrnně 1× denně e-mailem. S Premium profilem máte k ruce hlídačů rovnou 5 a když se něco objeví, informují vás obratem.




