
Pronájem bytu 2+1 • 57 m² bez realitkyAm Brüggeberge 14, , Dolní Sasko
Am Brüggeberge 14, , Dolní SaskoMHD 5 minut pěšky • VýtahByt 6 – exkluzivní, prostorný, prosvětlený
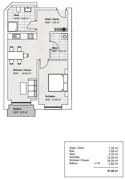
Novostavba nabízí moderní obytný prostor s vysokou kvalitou pobytu. Každý byt má otevřený obývací a jídelní prostor s přilehlou kuchyní, moderní koupelnu se sprchou nebo vanou a samostatnou ložnici. Navíc je v bytě k dispozici praktický úložný prostor – skutečné plus pro každodenní život a pořádek.
Byty se nacházejí v 1. a 2. patře a mají prostorné balkony orientované na jihozápad – ideální pro relaxaci v přírodě.
Díky bezbariérovému uspořádání, výtahu v domě a prahům s nízkým prahovým převodem je objekt také ideální pro starší osoby nebo osoby s omezenou pohyblivostí. Vybavení je moderní, nenáročné na údržbu a zaměřené na příjemné bydlení.
Na venkovním prostoru přispívají udržované chodníky, převážně krytá parkovací místa s připravenou infrastrukturou pro elektromobilitu, což zajišťuje další komfort a udržitelnost.
Fümmelse se nachází jen několik minut jízdy od centra Wolfenbüttels a zároveň nabízí všechny výhody klidného obytného prostředí. Místo je charakteristické rodinnými domy, malými vícebytovými domy a přátelským sousedstvím – ideální pro rodiny s dětmi i pro osoby, které si chtějí užít důchod v příjemné atmosféře.
V bezprostřední blízkosti naleznete všechny důležité zařízení:
- Základní škola je dostupná během několika minut chůze
- Mateřská škola a zařízení denní péče ASB se nacházejí přímo v sousedství
- Hřiště je naproti nemovitosti – ideální pro mladé rodiny
- Obchody, lékaři a další služby jsou rychle dostupné
- Velmi dobré spojení s centrem Wolfenbüttels a silnicí B79
Ve Fümmelse naleznete klidné obytné prostředí se všemi výhodami blízkosti města – zasazené do zeleného okolí s vysokou kvalitou života.
Světlé prostory s moderními půdorysy
Bezbariérové vstupy a výtah v domě
Moderní koupelna se sprchou nebo vanou
Úložný prostor uvnitř bytu
Novostavba, kvalitní podlahové a stěnové obklady
Podlahové vytápění
Máte zájem? Rádi Vám zašleme podrobné informace o bytu, půdorysu a nájemních podmínkách – napište nám jednoduše krátkou zprávu.
V okolí nemovitosti najdete
Stále hledáte to pravé?
Nastavte si hlídacího psa. Nabídky vybrané na míru dostanete souhrnně 1× denně e-mailem. S Premium profilem máte k ruce hlídačů rovnou 5 a když se něco objeví, informují vás obratem.









