
Pronájem bytu 2+1 • 57 m² bez realitkyAm Brüggeberge 14, , Dolní Sasko
Am Brüggeberge 14, , Dolní SaskoMHD 5 minut pěšky • VýtahByt 4 – exkluzivní, prostorný, světlý
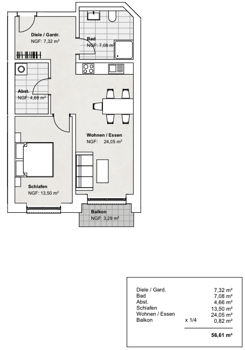
Novostavba nabízí moderní bydlení s vysokou kvalitou pobytu. Každý byt disponuje otevřeným obývacím a jídelním prostorem s přilehlou kuchyní, moderní koupelnou se sprchou nebo vanou a samostatnou ložnicí. Navíc máte k dispozici praktickou úložnou místnost uvnitř bytu – skutečné plus pro každodenní život a pořádek.
Byty se nacházejí v 1. a 2. patře a disponují prostornými balkony orientovanými na jihozápad – ideální k relaxaci uprostřed zeleně.
Díky bezbariérovému provedení, výtahu v domě a bezprahovým přístupům je objekt také ideální pro starší osoby nebo osoby s omezenou mobilitou. Vybavení je moderní, nenáročné na údržbu a zaměřené na příjemné obytné klima.
V exteriéru zajišťují upravené cesty, převážně krytá parkovací místa s připravenou infrastrukturou pro elektromobilitu dodatečný komfort a udržitelnost.
Fümmelse se nachází pouhých pár minut jízdy od centra Wolfenbüttels a zároveň nabízí všechny výhody klidného bydlení. Místo se vyznačuje rodinnými domy, malými bytovými domy a přátelským sousedstvím – ideální pro rodiny s dětmi a pro osoby, které chtějí trávit důchod v příjemné atmosféře.
Všechny důležité zařízení se nacházejí v bezprostřední blízkosti:
- Základní škola je dosažitelná během několika minut pěšky
- Mateřská škola a zařízení denní péče ASB se nacházejí přímo v sousedství
- Hřiště je umístěno naproti nemovitosti – perfektní pro mladé rodiny
- Obchody, lékaři a další poskytovatelé služeb jsou rychle dosažitelní
- Velmi dobré spojení do centra Wolfenbüttels a k silnici B79
Ve Fümmelse naleznete klidné obytné prostředí se všemi výhodami blízkosti města – zasazené do zeleného okolí s vysokou kvalitou života.
Světlé prostory s moderními dispozicemi
Bezbariérové vstupy a výtah v domě
Moderní koupelna se sprchou nebo vanou
Úložná místnost uvnitř bytu
První obsazení, kvalitní podlahové a stěnové obklady
Podlahové vytápění
Zajímá vás to? Rádi vám zašleme podrobné exposé se všemi informacemi o bytu, dispozicích a nájemních podmínkách – stačí nám napsat krátkou zprávu.
V okolí nemovitosti najdete




Pronájem bytuWestfalenstraße 20 Salzgitter Lebenstedt Lebenstedt Niedersachsen 38226- 3+1
- 65 m²
640 € + 140 €
Stále hledáte to pravé?
Nastavte si hlídacího psa. Nabídky vybrané na míru dostanete souhrnně 1× denně e-mailem. S Premium profilem máte k ruce hlídačů rovnou 5 a když se něco objeví, informují vás obratem.




