
Pronájem bytu 2+1 • 57 m² bez realitkyAm Brüggeberge 14, , Dolní Sasko
Am Brüggeberge 14, , Dolní SaskoMHD 5 minut pěšky • VýtahByt 5 – exkluzivní, prostorný, plný světla
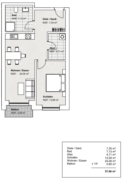
Novostavba nabízí moderní bydlení s vysokou kvalitou pobytu. Každý byt disponuje otevřeným obývacím a jídelním prostorem s přiléhající kuchyní, moderní koupelnou se sprchou nebo vanou a samostatnou ložnicí. Kromě toho máte v bytě k dispozici praktický úložný prostor – opravdové plus pro každodenní život a pořádek.
Byty se nacházejí v prvním a druhém patře a disponují prostornými balkony orientovanými na jihozápad – ideální pro relaxaci v zeleném prostředí.
Díky bezbariérovému řešení, výtahu v domě a bezprahovým vstupům je objekt rovněž ideální pro starší lidi či osoby s omezenou pohyblivostí. Zařízení je moderní, nenáročné na údržbu a zaměřené na příjemné klimatické podmínky bydlení.
Ve venkovní oblasti přispívají k dodatečnému komfortu a udržitelnosti upravené cesty, převážně kryovaná parkovací stání s připravenou infrastrukturou pro elektromobilitu.
Fümmelse se nachází jen několik minut jízdy od centra Wolfenbüttels a zároveň nabízí všechny výhody klidného obytného prostředí. Místo je charakterizováno rodinnými domy, malými bytovými domy a přátelskou sousedskou komunitou – ideální pro rodiny s dětmi a pro ty, kteří chtějí trávit důchod v příjemné atmosféře.
V bezprostředním okolí se nacházejí všechny důležité zařízení:
- Základní škola je dostupná během několika minut chůze
- Mateřská škola a denní péče ASB se nachází přímo v sousedství
- Hřiště se nachází naproti nemovitosti – perfektní pro mladé rodiny
- Obchody, lékaři a další služby jsou rychle dostupné
- Velmi dobré spojení do centra Wolfenbüttels a k silnici B79
Ve Fümmelse naleznete klidné obytné prostředí se všemi výhodami blízkosti k městu – zasazené do zeleného okolí s vysokou kvalitou života.
Prosvětlené místnosti s moderními koncepty dispozic
Bezbariérové přístupy a výtah v domě
Moderní koupelna se sprchou nebo vanou
Úložný prostor uvnitř bytu
První nastěhování, kvalitní podlahové a stěnové obklady
Podlahové vytápění
Máte zájem? Rádi vám zašleme podrobný expozé se všemi informacemi o bytě, dispozicích a nájemních podmínkách – stačí, když nám napíšete krátkou zprávu.
V okolí nemovitosti najdete
Stále hledáte to pravé?
Nastavte si hlídacího psa. Nabídky vybrané na míru dostanete souhrnně 1× denně e-mailem. S Premium profilem máte k ruce hlídačů rovnou 5 a když se něco objeví, informují vás obratem.









