
Prodej domu 5+1 • 135 m² bez realitkyElisabeth-Block-Str.2 Niedernburg-Prutting Niedernburg Bayern 83134
Elisabeth-Block-Str.2 Niedernburg-Prutting Niedernburg Bayern 83134MHD 1 minuta pěšky • Parkování • GarážPopis:
Vítejte ve Vašem novém domově: Tahle půvabná polovina dvoudomku (rok výstavby 1970) v Niedernburgu/Prutting spojuje útulnost, slunce a přírodu – ideální pro rodiny nebo pro všechny, kteří hledají prostor pro život a relaxaci.
Co dělá tento dům tak výjimečný:
Světlo a atmosféra: Od roku 2014 zde najdete prostornou zimní zahradu – ideální pro snídaně uprostřed přírody, uvolněné chvíle s dostatkem denního světla a závěsnými rostlinami.
Bydlení s teplem: Dům je vybaven centrálním topením a dřevěným krbem, který na podzim a v zimě přináší opravdu příjemné chvíle.
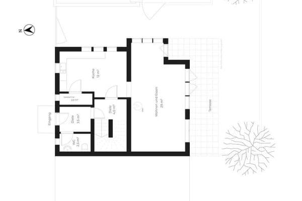
Místo pro rodinu: V horním patře se nacházejí tři ložnice a prostorná koupelna s oddělenou sprchou a vanou – útočiště s maximálním komfortem.
Každodenní život a úložné prostory: Velký, suchý sklep s dílnou a úložnými prostory je ideální pro koníčky, opravy nebo uskladnění věcí.
Slunné venkovní prostory: Zahrada orientovaná na jih – ráno zde proudí světlo, odpoledne pak slunce – ideální pro pobyt venku. Před domem se nachází garáž a na severní straně další parkovací místo.
Lokalita & kvalita života:
Tento dům se nachází v klidné, ale přesto výhodně dostupné lokalitě – okolí je charakterizováno jezery, přírodou a výborným spojením. Relaxace a volný čas jsou doslova na prahu vašeho domu: koupání, procházky, jízda na kole – to vše bez dlouhého dojíždění. Zároveň jsou obchody, školy a další služby snadno dosažitelné.
Proč tato nabídka nebude k dispozici dlouho:
Pečlivě udržovaný stav a solidní vybavení – můžete se nastěhovat bez nutnosti rozsáhlých rekonstrukcí.
Zimní zahrada + zahrada: Pobyt venku se zde připomíná opravdovou dovolenou.
Kombinace útulného krbu a funkčního dispozice vytváří atmosféru, ve které se každodenní rodinný život může harmonicky rozvíjet.
Váš další krok:
Využijte příležitost a sjednejte si osobní prohlídku – sami zažijte, jak může Váš každodenní život zde získat nový rozměr. Těším se na Váš zájem na čísle 0176 / 547 191 69 nebo na emailu thomas1zeller@gmail.com.
V okolí nemovitosti najdete
Stále hledáte to pravé?
Nastavte si hlídacího psa. Nabídky vybrané na míru dostanete souhrnně 1× denně e-mailem. S Premium profilem máte k ruce hlídačů rovnou 5 a když se něco objeví, informují vás obratem.