Prodej bytu 2+1 • 70 m² bez realitkyLousbergstrasse 52, , Severní Porýní-Vestfálsko
Lousbergstrasse 52, , Severní Porýní-VestfálskoMHD 2 minuty pěškyTento výjimečný historický objekt z období mezi lety 1905 a 1910 byl mezi lety 2001 a 2006 kompletně rekonstruován architektem. Ponechaly se jen vnější zdi – celé vnitřní uspořádání bylo zcela nově vybudováno.
Všechny stropy jsou vyrobeny z masivního betonu, konstrukce budovy je vysoce stabilní a byly použity kvalitní materiály, aby byla zajištěna moderní, trvanlivá a stylová obytná kvalita.
Byty spojují půvab historické architektury s moderním komfortem. Vysoké stropy, velká okna a světlé prostory vytvářejí otevřený a přívětivý dojem z bydlení.
Nemovitost se nachází v jedné z nejžádanějších obytných lokalit v Aachu – přímo na Lousbergu.
Okolí je klidné a zelené, s vynikající dostupností do centra města, RWTH, Pontviertelu a lázeňského parku.
Obchodní příležitosti, veřejná doprava a volnočasové nabídky jsou v bezprostřední blízkosti.
Je to dokonalá kombinace klidu, centrální polohy a historického prostředí.
Ideální jak pro uživatele, tak pro investory.
Díky úspěšnému spojení architektonické historie s moderní kvalitou stavby tato nemovitost nabízí dlouhodobou hodnotovou stabilitu a vysoký obytný komfort.
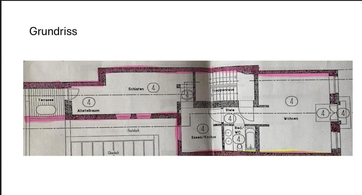
Všechny dokumentace a plány jsou k dispozici a mohou být předvedeny na vyžádání.
V okolí nemovitosti najdete
Stále hledáte to pravé?
Nastavte si hlídacího psa. Nabídky vybrané na míru dostanete souhrnně 1× denně e-mailem. S Premium profilem máte k ruce hlídačů rovnou 5 a když se něco objeví, informují vás obratem.



















