
Pronájem bytu 2+kk • 44 m² bez realitkyAmbrožova, Praha - Žižkov
Máte o nabídku zájem?
Ušetřete 17 500 Kč na provizi a komunikujte se všemi majiteli.
Chcete zkusit bydlení v loftu?
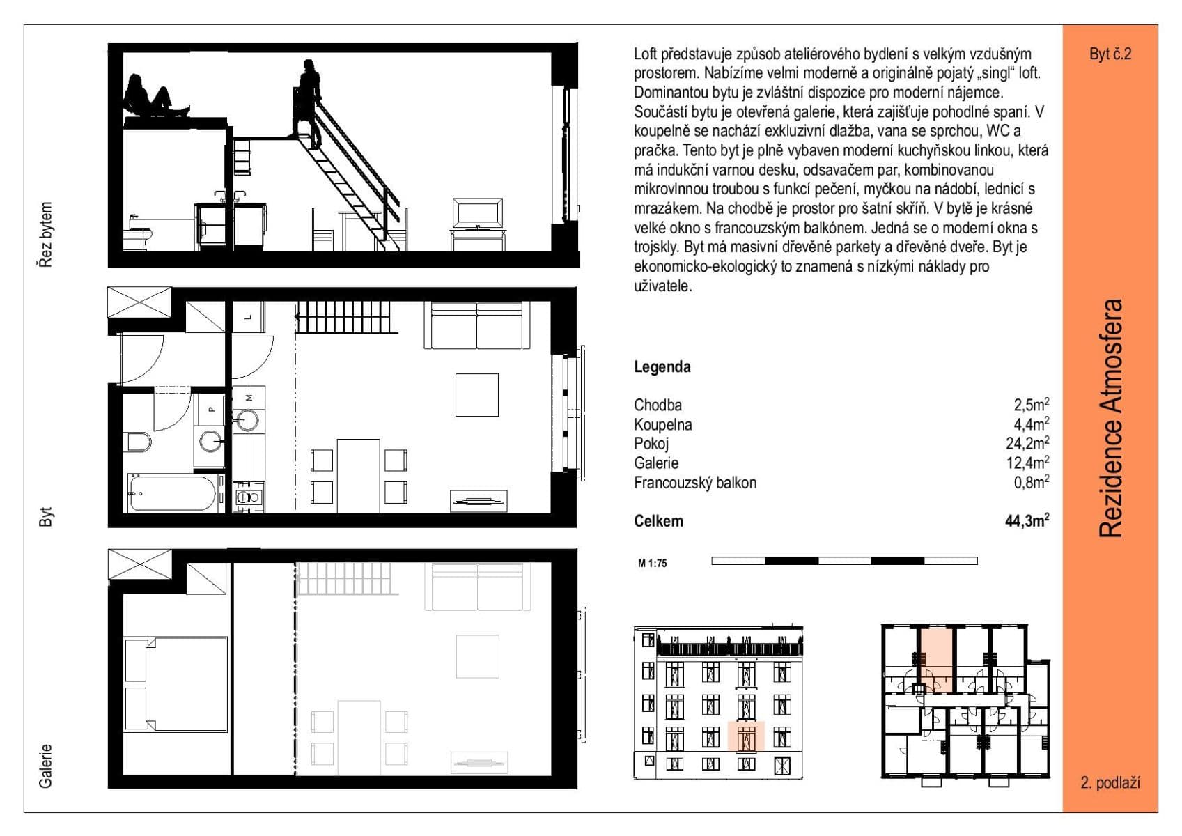
Přímí majitelé nabízí od 1. 2.2026 k dlouhodobému pronájmu „Singl loft“ s galerií na prostorné spaní v moderním areálu Rezidence Atmosféra s výhledem do dvora - do zeleně . Krásný, velmi světlý prosluněný Singl loft s velkými okny, o velikosti 32 m² + galerie na spaní 12 m². Byt se nachází v 2. patře cihlového domu s možností pronájmu sklepní kóje v suterénu domu za příplatek.
Při vstupu se nachází předsíň s místem pro zavěšení kabátů nebo prostorem na skříň a koupelna s exkluzivní dlažbou, vanou se sprchou, pračkou a WC. Vcházíte do obývacího prostoru s krásným výhledem a
moderní kuchyní se spotřebiči: indukční varnou deskou, odsavačem par, kombinovanou troubu a mikrovlnnou s funkcí pečení, myčkou na nádobí a lednicí s mrazákem. Nacházíte se ve velmi zajímavém obývacím prostoru s velkým oknem (trojsklo) s francouzským balkónem o velikosti 0,8 m2. Okno dosahuje rozlohy obou pater a umožňuje tak krásný výhled. Vstup na galerii je po dřevěném schodišti s kovovým zábradlím. Zde se nachází prostor pro Váš spánek. Po celém bytě jsou masivní dřevěné parkety a dřevěné dveře. Postele nejsou součástí vybavení.
Dům je ekonomicko-ekologický, to znamená s nízkými náklady pro uživatele. Provozní náklady jsou cca 2.600 Kč/měsíc včetně topení, vody a internetu. Výše záloh na elektřinu záleží na Vaší spotřebě, současné zálohy jsou stanoveny na 1.000 Kč. Hledáme dlouhodobého nájemce s dobou pronájmu minimálně 2 roky. Požadujeme kauci ve výši 2 nájmů.
Velká občanská vybavenost v okolí - restaurace, obchody, tramvaj (300 m), metro Jana Želivského (5 min.), obchodní centrum Flora (7 min.). Pokud Vás nabídka oslovila, nebo máte nějaké další otázky, neváhejte nás kontaktovat.
Pokud Vás tento byt zaujal, uvítáme krátkou informaci o Vás.
Parametry nemovitosti
| Dostupné od | 1. 2. 2026 |
|---|---|
| Konstrukce budovy | Cihla |
| Vybaveno | Částečně |
| Číslo inzerátu | 955343 |
| Užitná plocha | 44 m² |
| Stav | Novostavba |
|---|---|
| Dispozice | 2+kk |
| Podlaží | 2. podlaží z 5 |
| Umístění | Centrum |
| Cena za jednotku | 398 Kč / m2 |
Co tato nemovitost nabízí?
| Balkón 0,8 m² | |
| Výtah | |
| MHD 1 minuta pěšky |
| Domácí mazlíčci vítáni |
V okolí nemovitosti najdete
Máte o nabídku zájem?
Ušetřete 17 500 Kč na provizi a komunikujte se všemi majiteli.
Stále hledáte to pravé?
Nastavte si hlídacího psa. Nabídky vybrané na míru dostanete souhrnně 1× denně e-mailem. S Premium profilem máte k ruce hlídačů rovnou 5 a když se něco objeví, informují vás obratem.



















