
Prodej domu • 770 m² bez realitkyDuisburg Hochheide Nordrhein-Westfalen 47198
Duisburg Hochheide Nordrhein-Westfalen 47198MHD 1 minuta pěšky • ParkováníDVOJITÝ BYTOVO-KOMERČNÍ DŮM na levém Nízkém Rýně
3 komerční prostory + 3 byty (4. byt ve 2. patře po rekonstrukci možný)
v # 1. patře. KOMERČNÍ PROSTOR s # HALOU o rozloze 130 m², ihned k nastěhování #
Dobré vybavení – centrální poloha
Více než kvalitní nájemníci, včasné platby nájmu
Roční nájem 63 000 tis. € plus veškeré provozní náklady
.
## KOMERČNÍ PROSTOR v 1. patře – volných cca 190 m² ##
včetně malé HALY o rozloze 130 m² ##
........WC, kancelář, šatna, pomocná místnost, 2 vstupy........
(Při mírné přestavbě je také možný obytný prostor)
Přední dům pochází z roku 1906, zadní budova z roku 1936, obě budovy byly v roce 1990 stavebně propojeny a zrekonstruovány.
Střecha, fasáda, všechny elektrické a vodovodní rozvody byly zrekonstruovány.
* * * * * * * * *
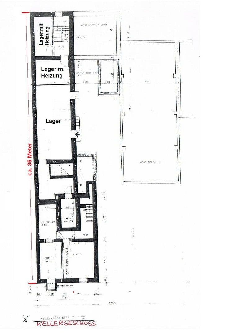
KORET je kompletně průchozí (VYUŽITELNÁ PLOCHA)
(cca 35 m x 5,5 m)
a lze jej využít jako sklad a s vlastním bunkrem (3 VSTUPY).
Ten je přístupný přes přední dům nebo přes dvě samostatné vnější schodiště v zadní části (dvůr).
* * * * * * * * *
Všechny jednotky mají plynové kotle a jsou nové/nebyly výrazně opotřebované.
Komerční prostory jsou částečně zcela modernizovány / elektřina z roku 2021
Fasáda domu je obložena bílými holandskými ručně klínkovanými kameny a přírodním břidlicovým kamenem.
Izolační okna
Obytné i komerční prostory jsou v běžném dobrém stavu.
* * * * * * * * *
Ještě jsou k dispozici prostory pro přístavbu 4. bytu o cca 110 m² (ve 2. patře už jsou přítomny příčky).
Celková plocha:
cca 880 m² obytných/komerčních prostor plus
cca 150 m² využitelné plochy v suterénu
* * * * * * * * *
Více než 40 let v soukromém vlastnictví
Informace poskytneme pouze s úplnými kontaktními údaji + jménem + e-mailem
Před prohlídkou:
- je vyžadováno doložení kapitálu nebo potvrzení o financování
Bez makléře, od soukromé osoby
Parametry nemovitosti
| Stáří | Nad 50 let |
|---|---|
| Stav | Dobrý |
| Užitná plocha | 770 m² |
| Celkem podlaží | 2 |
| Dostupné od | 1. 11. 2025 |
|---|---|
| Číslo inzerátu | 956085 |
| Plocha pozemku | 630 m² |
| Cena za jednotku | 1 273 € / m2 |
Co tato nemovitost nabízí?
| Balkón | |
| MHD 1 minuta pěšky |
| Sklep | |
| Parkování |
V okolí nemovitosti najdete
Stále hledáte to pravé?
Nastavte si hlídacího psa. Nabídky vybrané na míru dostanete souhrnně 1× denně e-mailem. S Premium profilem máte k ruce hlídačů rovnou 5 a když se něco objeví, informují vás obratem.






























