
Pronájem kanceláře • 160 m² bez realitkyStresemannstraße 42 Hamburg Sternschanze Hamburg 22767
Stresemannstraße 42 Hamburg Sternschanze Hamburg 22767MHD 1 minuta pěšky • ParkováníKurzkodobé a dlouhodobé / neurčité pronájmy podle dohody.
Nájemné ve výši 4150,- EUR je uvedeno jako čistá cena včetně všech dodatečných poplatků za elektřinu, vytápění, klimatizaci, týdenní základní úklid, internet a minerální vodu. Uvedené ceny jsou k ceně dané zákonnou DPH. V případě potřeby lze zajistit i dodatečnou kancelářskou a telefonní službu. Parkoviště je zahrnuto v ceně.
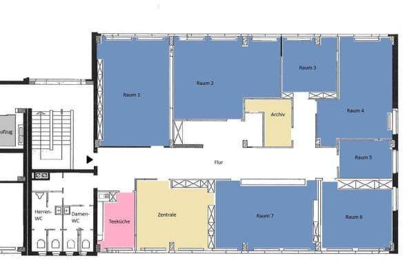
Kancelář poskytuje prostor pro dvě až dvanáct osob. Případně lze pronajmout i jednotlivé pracovní stoly v budově.
Čeká na Vás industriální budova zrekonstruovaná s láskou k detailu, jakou v této lokalitě jen stěží najdete. Nemovitost se nachází na Stresemannstraße, jedné z hlavních tepen Hamburku – zde se setkávají oblíbené čtvrti Sternschanze, City a Altona. Jste přímo u dění a přitom v poklidné lokaci vnitřního dvora.
Budova je vybavena nejnovější solární technikou, která komplex udržitelně zásobuje solární energií. Nemovitost se v současnosti vyznačuje sympatickou, inovativní a nápomocnou mladou komunitou nájemců. Nechte se sami přesvědčit při prohlídce.
Gewerbehof Schilleroper – přímo vedle Carglass – se nachází centrálně uprostřed pulzujících čtvrtí Sternschanze, City a Altona. Navzdory centrální poloze jsou kancelářské prostory velmi klidné díky chráněnému vnitřnímu dvoru. Přístup na dvůr je možný přes velká uzavřená posuvná vrata.
Sternschanze je známá svými pestrými bary a restauracemi – k nim se dostanete pěšky za pouhé 3 minuty. Zastávka autobusu linky 3 je umístěna přímo před budovou. Stanice metra Feldstraße je dosažitelná za 5 minut chůze, stanice S-Bahn Schanze a Holstenstraße jsou vzdáleny přibližně 8–10 minut chůze a dálnice A7 je dosažitelná autem za pouhých 8 minut. Přístav i centrum města jsou také dostupné během několika minut autem nebo pohodlně pěšky.
Minerální voda je součástí paušálu.
Účet se sestavuje jako měsíční ALL-IN nájem:
• týdenní základní úklid kanceláře,
• kancelářská elektřina, 500 mBit optický internet včetně,
• dodávky / převzetí dodávek na úrovni přízemí během běžné otevírací doby je vždy možné.
Krátkodobé parkování (např. při návštěvě zákazníků / konferenci) je možné.
Detailnější informace získáte rádi telefonicky nebo e-mailem.
Parametry nemovitosti
Stáří | Nad 50 let |
---|---|
Stav | Po rekonstrukci |
Plocha kanceláře | 160 m² |
Dostupné od | 21. 10. 2025 |
---|---|
Číslo inzerátu | 956602 |
Cena za jednotku | 19 € / m2 |
Co tato nemovitost nabízí?
MHD 1 minuta pěšky |
Parkování |
V okolí nemovitosti najdete
Stále hledáte to pravé?
Nastavte si hlídacího psa. Nabídky vybrané na míru dostanete souhrnně 1× denně e-mailem. S Premium profilem máte k ruce hlídačů rovnou 5 a když se něco objeví, informují vás obratem.