Prodej domu 6+1 • 195 m² bez realitky, Bádensko-Württembersko
, Bádensko-WürttemberskoMHD 3 minuty pěšky • ParkováníV jedné z nejžádanějších rezidenčních oblastí Nürtingenu vzniká tento exkluzivní rodinný dům ve zdokumentované pevné stavbě, který splňuje požadavky normy GEG 2024. Na pozemku o rozloze cca 345 m² nabízí objekt s obytnou plochou cca 194 m², 6 pokoji a prostorným prostorem pro moderní bydlení na nejvyšší úrovni.
Dům osloví svou jasnou architekturou, energeticky efektivní stavbou a prémiovým vybavením, které nezanechává žádné přání neuspokojené. Velká okna zajišťují prostory naplněné světlem a příjemné obytné klima.
Přehled hlavních předností:
- Pevná stavba dle GEG 2024
- již pro Vás schváleno
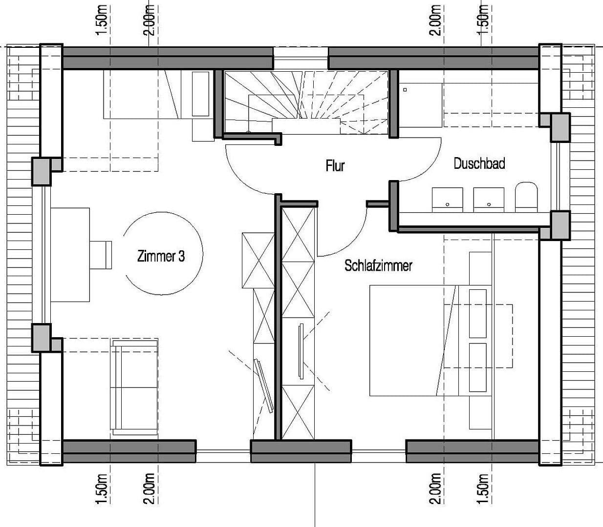
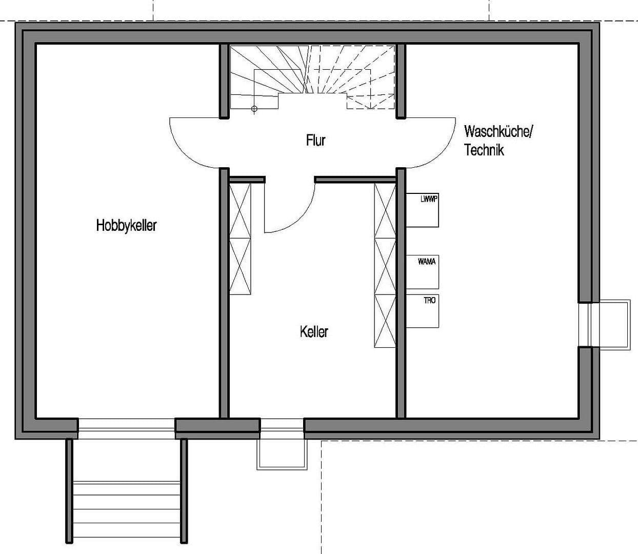
- Cca 194 m² obytné plochy na pozemku o rozloze cca 420 m²
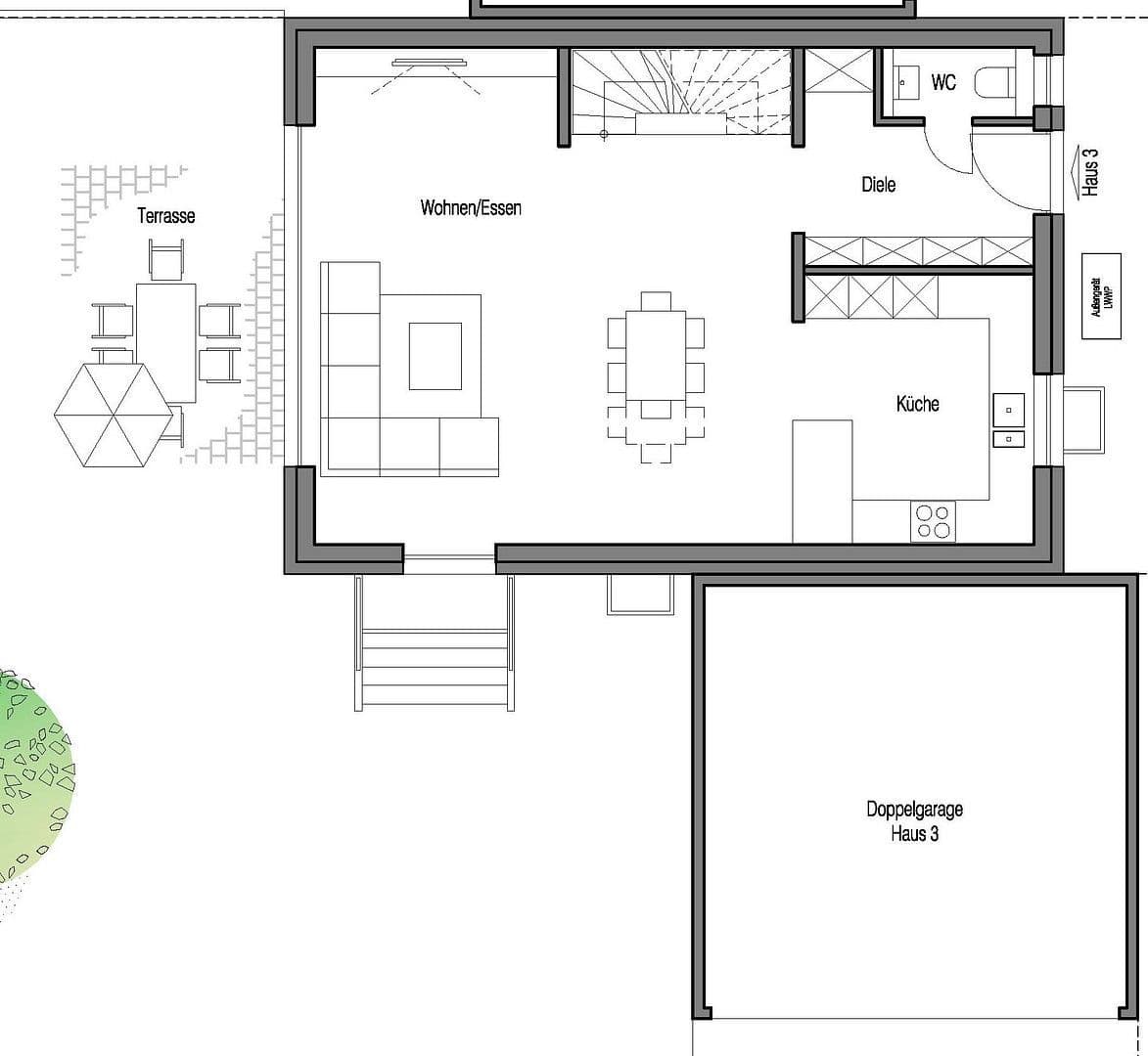
- Moderní, otevřený půdorys s prostorným obývacím/jídelním prostorem
- Vysoce kvalitní materiály a vybavení
- Podlahové topení ve všech místnostech
- Energeticky úsporná technika domu s tepelným čerpadlem
- Fotovoltaická elektrárna (PV)
- Terasa a zahrada orientovaná na jih
- dvě parkovací místa (garáž nebo carport jsou volitelně možné)
- Regionální stavební partner se zárukou pevné ceny
- k tomu cca 40.000 € stavební náklady
Novostavba, která nadchne svou robustní kvalitou, energetickou efektivitou a moderním designem – ideální pro všechny, kdo kladou důraz na styl, komfort a udržitelnost.
Objekt se nachází v klidné a velmi oblíbené rezidenční oblasti Nürtingenu, která osloví svou polohou blízko centra, škol, obchodů i volnočasových možností. Okolí je charakterizováno dobře udržovanými rodinnými domy a hodně zeleně – ideální pro rodiny a pro všechny, kdo oceňují moderní bydlení s vysokou kvalitou života.
Celkem na pozemku o rozloze 1022 m² vzniknou tři samostatně stojící rodinné domy, přičemž Dům 1 již byl prodán a postaven.
Dům 2 se nachází na pozemku o rozloze cca 449 m² je rovněž k prodeji, přičemž kupní cena tohoto domu činí 1.069.000 €.
Uvedené ceny zahrnují:
- Náklady na pozemek
- Náklady na výstavbu domu dle stavebního popisu včetně architektonických služeb
- Stavební kontroling
Zobrazené vnitřní vizualizace nejsou součástí služby, slouží pouze jako ukázka možné vnitřní úpravy.
ODŘEKNUTÍ ODPOVĚDNOSTI: Navzdory pravidelné kontrole dat, obrázků a informací nepřebíráme žádnou odpovědnost za správnost údajů. Stejně tak ani za dostupnost nabídky při pronájmu nebo prodeji. Platí naše obchodní podmínky. Všechny ilustrace a půdorysy jsou bez závazku. Mohou zobrazovat neobsahovaný nábytek a vybavení. Případné chyby a změny vyhrazeny. Všechny plochy a rozměry jsou přibližné a bez záruky.
Těšíme se na Vaši reakci.
V okolí nemovitosti najdete
Stále hledáte to pravé?
Nastavte si hlídacího psa. Nabídky vybrané na míru dostanete souhrnně 1× denně e-mailem. S Premium profilem máte k ruce hlídačů rovnou 5 a když se něco objeví, informují vás obratem.








