
Pronájem bytu 3+1 • 103 m² bez realitky, Porýní-Falc
, Porýní-FalcMHD 1 minuta pěšky • ParkováníDiese liebevoll kernsanierte Altbauwohnung vereint den Charme vergangener Zeiten mit dem Komfort moderner Ausstattung.
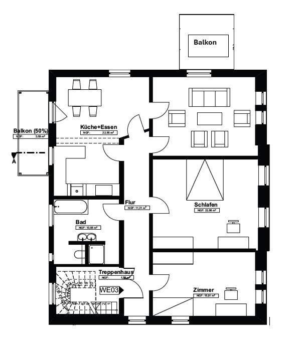
Tento láskyplně kompletně zrekonstruovaný byt v historické budově spojuje kouzlo minulých dob s komfortem moderního vybavení.
Auf rund 103m² im 1. Obergeschoss erwartet Sie:
Na přibližně 103 m² ve 1. patře Vás čeká:
Ein offener Wohn- und Küchenbereich mit hochwertiger Einbauküche, ein großzügiges Wohnzimmer mit kleinem Balkon, ein gemütliches Schlafzimmer, ein weiteres Zimmer das als Büro oder Kinder- bzw. Gästezimmer genutzt werden kann sowie ein modernes Tageslichtbad mit begehbarer Dusche & Badewanne.
Otevřený obývací a kuchyňský prostor s kvalitně vybavenou vestavěnou kuchyní, prostorný obývací pokoj s malým balkonem, útulná ložnice, ještě jedna místnost, která může sloužit jako kancelář, dětský či pokoj pro hosty, a moderní koupelna s denním světlem, s přístupnou sprchou i vanou.
Ab Anfang 2026 wird an die Küche angrenzend ein neuer Balkon verfügbar sein.
Od začátku roku 2026 bude přilehlý k kuchyni k dispozici nový balkon.
Die Wohnung eignet sich ideal für Singles oder Paare mit oder Kind (maximal 3 Personen), die zentral, modern und dennoch charmant wohnen möchten – oder auch als stilvoller Zweitwohnsitz für Berufspendler.
Byt je ideální pro jednotlivce nebo páry s dětmi (maximálně 3 osoby), kteří chtějí bydlet centrálně, moderně a přitom s kouzlem minulosti – nebo jako stylové druhé bydlení pro dojíždějící.
Zur Wohnung gehört ein Caport, welcher voraussichtlich ab Mitte 2026 für 60€ mtl. angemietet werden muss.
K bytu náleží také parkovací stání (carport), které bude pravděpodobně k pronájmu od poloviny roku 2026 za 60 € měsíčně.
Die Wohnung liegt in einer der begehrtesten Straßen Nieder-Olms. Super zentral, alles fußläufig erreichbar: Bahnhof, Einkaufsmöglichkeiten, Cafés, Ärzte und mehr direkt um die Ecke. Trotz zentraler Lage lebt es sich hier angenehm ruhig.
Byt se nachází v jedné z nejžádanějších ulic Nieder-Olms. Velmi centrálně, vše je v docházkové vzdálenosti: nádraží, obchody, kavárny, lékaři a další přímo za rohem. Přestože se nachází v centru, panuje zde příjemný klid.
• Echtholz-Eichenparkett in den Wohnräumen
Parkety z pravého dubového dřeva v obytných prostorech
• Großformatige 60x60 Fliesen im Bad
Velké dlaždice 60x60 cm v koupelně
• Hohe Decken
Vysoké stropy
• Wände mit weißem Malervlies
Stěny potažené bílou malířskou textilní výztuží
• Moderne, voll ausgestattete Einbauküche mit Markengeräten
Moderní plně vybavená vestavěná kuchyně se značkovými spotřebiči
• Fußbodenheizung
Podlahové vytápění
• Elektrische Rollläden
Elektrické rolety
• Tageslichtbad mit Walk-In-Dusche und Badewanne
Koupelna s dostatkem přirozeného světla, s walk-in sprchou a vanou
• Balkon (ab Mitte 2026 fertiggestellt)
Balkon (dokončen od poloviny roku 2026)
• 1 Carport-Stellplatz (verfügbar ab Mitte 2026)
1 parkovací místo pod carportem (k dispozici od poloviny roku 2026)
• Energetisch sanierter Altbau
Energeticky zrekonstruovaná historická budova
V okolí nemovitosti najdete
Stále hledáte to pravé?
Nastavte si hlídacího psa. Nabídky vybrané na míru dostanete souhrnně 1× denně e-mailem. S Premium profilem máte k ruce hlídačů rovnou 5 a když se něco objeví, informují vás obratem.








