
Pronájem bytu 3+1 • 90 m² bez realitky, Bádensko-Württembersko
, Bádensko-WürttemberskoMHD 2 minuty pěšky • ParkováníNovostavba 2024 Wiesenbach: Světlý 3-pokojový byt v přízemí (včetně kvalitní vestavěné kuchyně a koupelnového nábytku, bezbariérový)
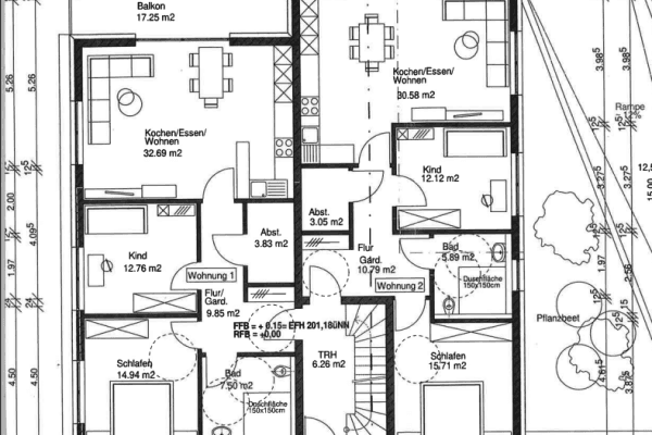
K pronájmu je kvalitně vybavený novostavbový byt z roku 2024 ve Wiesenbachu.
Byt se nachází v přízemí třírodinného domu a nabízí přibližně 90 čtverečních metrů obytné plochy.
Koupelna je vybavena přístupnou sprchou, kvalitně zařízena a navržena jako bezbariérová.
Součástí pronájmu je také kuchyně s prémiovými spotřebiči.
Ve skladové místnosti je připraveno vodovodní připojení a odtok pro pračku a sušičku.
Vaše vozidlo můžete pohodlně zaparkovat přímo před domem.
Díky modernímu tepelnému čerpadlu, větracímu systému s rekuperací tepla a kvalitní izolaci dle nejnovějších standardů neočekávejte vysoké náklady na vytápění.
V rozsáhlém sklepě o přibližně 15 čtverečních metrech najdete dostatek místa pro objemné předměty.
Na terase se zahradou si užijete spoustu prostoru a odpočinete si na slunci.
V nájmu jsou zahrnuty kvalitní vestavěná kuchyně, koupelnové vybavení (s podumyvadlovou skříní, zrcadlovou skříní a držákem na ručníky), sklepní prostor a parkovací místo.
Nemovitost se nachází v klidné předměstské oblasti Heidelbergu – ve Wiesenbachu.
Pěšky se dostanete do centra obce, kde najdete mateřskou školu, základní školu, supermarket, pekárnu, obchod se zeleninou, lékaře, banky, poštu, lékárnu, radnici a mnoho dalšího.
Les i louky jsou v bezprostřední blízkosti, dostupné pěšky.
Do Heidelbergu je 15 km.
Autobusová zastávka se nachází jen pár minut chůze od domu.
V okolí nemovitosti najdete
Stále hledáte to pravé?
Nastavte si hlídacího psa. Nabídky vybrané na míru dostanete souhrnně 1× denně e-mailem. S Premium profilem máte k ruce hlídačů rovnou 5 a když se něco objeví, informují vás obratem.












