
Pronájem bytu 3+1 • 76 m² bez realitkyStuttgart Ost Baden-Württemberg 70186
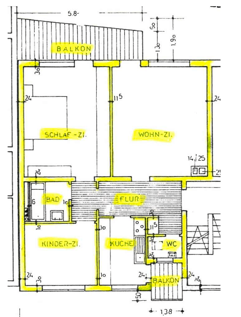
Stuttgart Ost Baden-Württemberg 70186GarážTato okouzlující a dobře dispozovaná 3-pokojová bytová jednotka se nachází ve 2. patře pečlivě udržovaného rodinného domu v žádané čtvrti Stuttgart-Ost. S obytnou plochou přibližně 76 m², dvěma balkóny, moderní vestavěnou kuchyní, garáží a dvěma sklepními místnostmi nabízí komfortní a všestranné bydlení. Byt je ideální pro páry, malé rodiny nebo i spolubydlící. Bydlení je k dispozici od 01.11.2025 a je pronajímáno na dobu neurčitou.
Byt se nachází v klidné boční ulici v oblíbené čtvrti Stuttgart-Ost. Ložnice a balkón jsou orientovány ke straně zahrady, což poskytuje obzvlášť příjemnou atmosféru bydlení. Okolí je charakterizováno pečlivě udržovanou obytnou zástavbou, spoustou zeleně a kvalitní infrastrukturou. Obchody, školy, školky, kavárny a veřejná doprava (autobusy a metro) jsou snadno dostupné. Rovněž centrum města a stuttgartské hlavní nádraží jsou jen několik minut jízdy.
Přehled vybavení:
• Obytná plocha: přibližně 76 m²
• 3 pokoje: ložnice, obývací pokoj se západním balkónem, kancelář/hostinský pokoj
• Koupelna se sprchou a připojením pro pračku
• Samostatné WC s oknem
• Kuchyně s moderní vestavěnou kuchyní (2016)
• Další malý balkón u kuchyně
• Podlahové krytiny: pečlivě udržovaná parketa, PVC v chodbě
• Plastová okna
• Ústřední topení na olej
• Energetická spotřeba: 130 kWh/(m²·rok), energetická třída E
• Dvě velké uzavřené sklepní místnosti
• Sušárna v suterénu
• Jednoprotahová garáž přímo v budově
Podmínky pronájmu:
• Základní nájemné bytu: 1.250 €
• Provozní náklady: 200 € (včetně nákladů na vytápění)
• Vestavěná kuchyně: 50 €/měsíc
• Garáž: 80 €/měsíc
• Celkové teplé nájemné: 1.580 €
• Kauce: 3 měsíční základní nájemné (3.750 €)
• K dispozici od: 01.11.2025
• Doba pronájmu: na dobu neurčitou
Další informace:
• Vhodné pro spolubydlení: ano
• Domácí mazlíčci: povoleni po domluvě
• Kouření: není povoleno
• Prohlídky: již nyní možné
V okolí nemovitosti najdete
Stále hledáte to pravé?
Nastavte si hlídacího psa. Nabídky vybrané na míru dostanete souhrnně 1× denně e-mailem. S Premium profilem máte k ruce hlídačů rovnou 5 a když se něco objeví, informují vás obratem.























