
Pronájem bytu 2+1 • 65 m² bez realitkyHorská, Jablonec nad Nisou - Jablonec nad Nisou, Liberecký kraj
Máte o nabídku zájem?
Ušetřete 13 900 Kč na provizi a komunikujte se všemi majiteli.
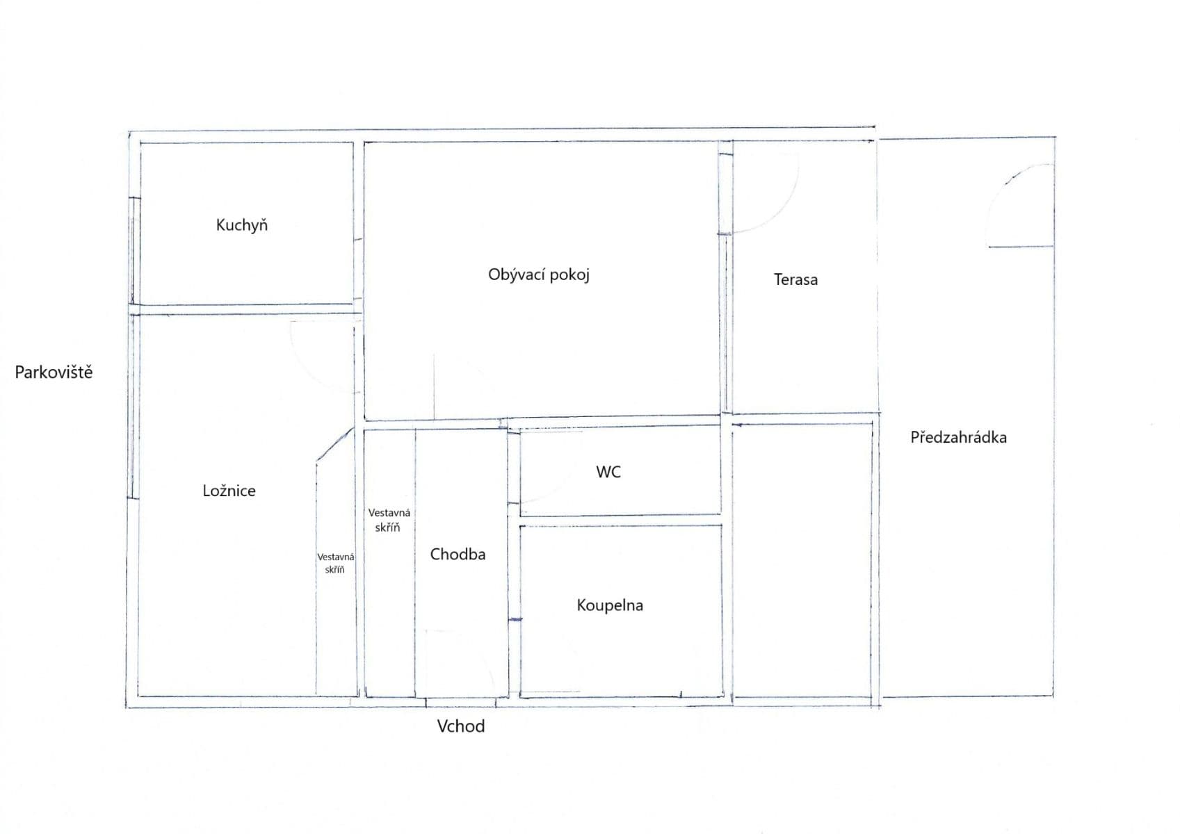
Nabízíme byt v přízemí s oplocenou a uzamykatelnou předzahrádkou 2+1 o velikosti 63 m2 k dlouhodobému podnájmu vhodný pro pár nebo jednotlivce.
V bytě se nikdy nekouřilo a nechovali domácí mazlíčci, ujednání týkající se zákazu kouření a chovu domácích mazlíčků je součástí smlouvy, byt je tedy vhodný pro alergiky a nekuřáky.
Parkování je možné u domu na venkovním parkovišti, dále jsou součástí bytu 2 samostatně uzamykatelné sklepní kóje, jedna vybavena vestavěným regálem. Byt je vybaven viz. fotogalerie, je zde dostatek úložných prostor.
Předzahrádka je vybavena otevíratelnou a uzamykatelnou mříží.
Vchodový prostor bytu je vybaven vestavěnou skříní a korkovou podlahou, z tohoto prostoru se vchází do koupelny a oddělené toalety a dále pak do obytné části bytu, sestávající z obývacího prostoru, ložnice a kuchyně.
Sedací souprava v obývacím pokoji je rozkládací.
Kuchyňská linka je vybavená kvalitní, vestavěnou sklokeramickou varnou deskou společně s troubou, dále digestoří, 45 cm myčkou nádobí, lednicí s mrazákem a volně stojící mikrovlnnou troubou.
Ložnice je vybavena dvoulůžkem s úložným prostorem včetně kvalitních polohovatelných roštů a vestavěnou skříní .V oknech ložnice a obýváku jsou instalovány žaluzie .V koupelně je vana, umyvadlo s koupelnovou skříňkou a místo pro instalaci pračky, žebříkový radiátor a nad vanou rolovací sušák a držák ručníků. Na toaletě skřínka z borového dřeva na sanitární a hygienické potřeby. Ve sklepě je dále společná místnost kde je možné uložit kola a jiné sportovní
vybavení.
Úklid společných prostor v domě je zajištěn úklidovou službou za poplatek.
Aktuální zálohy na služby jsou :
úklid společných prostor 150 Kč/měs.
teplo 1076 Kč/měs.,
teplá voda 380 Kč/měs.
studená voda 100 Kč/měs.
elektřina kotelen 75 Kč/měs.
poplatek za svoz odpadů 93 Kč/os/měs.
pojištění domácnosti a odpovědnosti 150 Kč/měs.
elektřina ( odběrné místo si přepisuje podnájemce na sebe)
Do odpovědi na inzerát prosím uveďte základní informace o sobě včetně informací o předchozím a současném zaměstnání a informaci o předpokládaném počtu spolubydlících osob v bytě.
Od počtu osob se odvíjí záloha na služby, které jsou v inzerátu uvedeny. V případě dalších osob se záloha u položek ( teplá a studená voda zvyšuje o poměrnou část. Zálohy lze později upravit podle skutečných spotřeb za relevantní dobu.
Smlouvu je možné uzavřít pouze s prověřeným uživatelem portálu bezrealitky. Službu ověření bezdlužnosti si jednoduše vyřídíte zde na portálu bezrealitky.
Realitní makléře a firmy které hledají ubytování pro agenturní zaměstnance, žádáme na tento inzerát neodpovídejte, o vaše služby nemáme zájem.
V okolí nemovitosti najdete
Máte o nabídku zájem?
Ušetřete 13 900 Kč na provizi a komunikujte se všemi majiteli.


Pronájem bytuU Kostela, Jablonec nad Nisou - Mšeno nad Nisou, Liberecký kraj- 3+1
- 73 m²
14 500 Kč + 5 000 Kč
Pronájem bytuJosefův Důl - Josefův Důl u Jablonce nad Nisou, Liberecký kraj- 2+kk
- 43 m²
12 000 Kč + 3 000 Kč
Pronájem bytuSpojovací, Jablonec nad Nisou - Jablonecké Paseky, Liberecký kraj- 2+kk
- 38 m²
11 500 Kč + 5 500 Kč
Pronájem bytuPodskalí, Jablonec nad Nisou - Jablonec nad Nisou, Liberecký kraj- 2+kk
- 80 m²
14 000 Kč + 2 000 Kč
Stále hledáte to pravé?
Nastavte si hlídacího psa. Nabídky vybrané na míru dostanete souhrnně 1× denně e-mailem. S Premium profilem máte k ruce hlídačů rovnou 5 a když se něco objeví, informují vás obratem.



















